• Trilocale
  • 90 mq
  • 1 bagno

Appartamento in Vendita a Macherio

Macherio. In contesto tranquillo e ben curato, proponiamo in vendita luminoso trilocale di circa 90 mq situato al secondo ed ultimo piano di una piccola palazzina degli anni ’60, circondata da piacevole giardino condominiale.
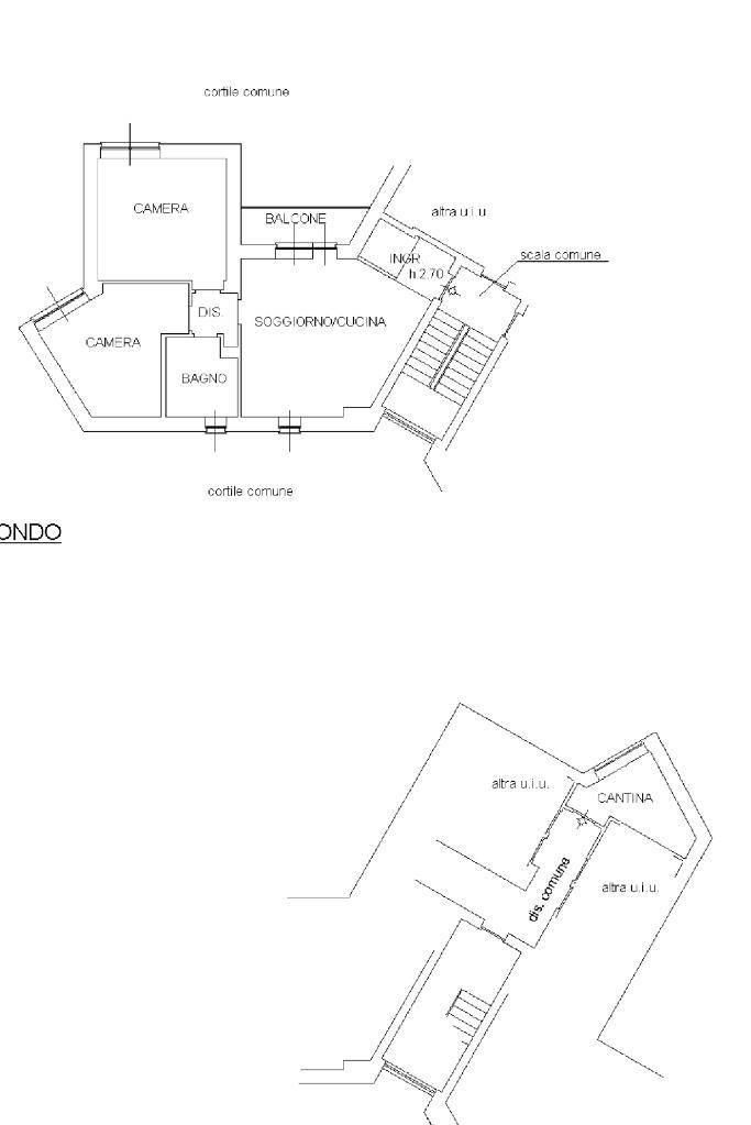
L’appartamento, recentemente ristrutturato, si presenta in ottime condizioni ed è caratterizzato da ambienti ampi e ben distribuiti. L’ingresso conduce direttamente alla zona giorno, composta da un accogliente soggiorno con cucina a vista e accesso al balcone, ideale per momenti di relax. La zona notte è ben separata e comprende due camere da letto spaziose e un bagno finestrato dal taglio moderno.
La doppia esposizione garantisce un’ottima luminosità durante tutta la giornata, mentre le finiture, tra cui la pavimentazione effetto legno, rendono gli ambienti caldi e contemporanei. L’immobile è inoltre dotato di riscaldamento a pavimento, aria condizionata con pompa di calore, soluzioni che assicurano comfort ed efficienza in ogni stagione.
Completa la proprietà un box doppio in lunghezza (ad €. 25.000,00), ideale sia per due auto che come pratico spazio aggiuntivo e la cantina al piano interrato.
La posizione, la tranquillità del contesto e le basse spese condominiali rendono questa soluzione perfetta per famiglie o per chi cerca un’abitazione pronta da vivere, senza necessità di interventi.
Soluzione ideale per chi cerca una casa pronta da vivere, in una zona tranquilla ma ben servita.
Vi invitiamo a cliccare mi piace sui nostri canali social: per essere sempre aggiornati su tutte le nostre proposte immobiliari. Ogni agenzia ha un proprio titolare ed e' autonoma - Le presenti informazioni non costituiscono elemento contrattuale. Grazie

LEGGI TUTTO

CONDIVIDI SUI SOCIAL

DATI PRINCIPALI

Riferimento
133269
Contratto
Vendita
Tipologia
Appartamento
Superficie
90 mq
Locali
3
Camere da letto
2
Cucina
Abitabile
Bagni
1
Piano
2 °
Totale piani
2
Box/Posto auto
Singolo

CARATTERISTICHE

Ascensore

COSTI

Prezzo
€ 165.000,00
Spese condominiali
€ 83,00 / mese

EFFICIENZA ENERGETICA

Stato
Abitabile
Anno costruzione
1960
Riscaldamento
Autonomo
Climatizzazione
Si
Classe energetica
G
IPE
363,56 kWh/m²a

A+

A

B

C

D

E

F

363,56 kWh/m²a | Classe energetica G

G

MAPPA

Macherio comune della Bassa Brianza Centrale Sud

ANNUNCI SIMILI

VENDITA 20
€ 240.000
Appartamento in Vendita a Macherio (Monza e Brianza)
  • Trilocale
  • 90 mq
  • 1 bagno
VENDITA 20
€ 260.000
Appartamento in Vendita a Macherio (Monza e Brianza)
  • Quadrilocale
  • 146 mq
  • 2 bagni
VENDITA 20
€ 516.000
Appartamento in Vendita a Sovico (Monza e Brianza)
  • Trilocale
  • 161 mq
  • 2 bagni