Trilocale con giardino privato e box doppio VENDITA

Via 25 Aprile - Robbiate (Lecco)
€ 240.000
  • Trilocale
  • 110 mq
  • 1 bagno

Appartamento in Vendita a Robbiate

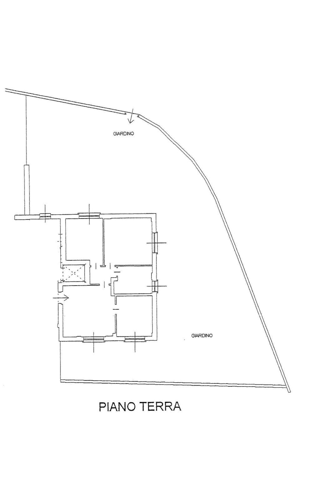
In zona incantevole e comoda con il centro e i principali servizi, proponiamo luminoso trilocale con giardino privato su tre lati, perfetto per chi desidera vivere in un contesto riservato senza rinunciare alla comodità.

L’appartamento si compone di:
- ampio soggiorno con accesso diretto all’area esterna
- cucina abitabile
- due camere da letto, spaziose e ben illuminate
- bagno finestrato con finiture moderne.

All’esterno, il giardino privato, in parte pavimentato, offre uno spazio ideale per stare all’aperto nei momenti di relax.
L’immobile, di recente costruzione, è inserito in una palazzina dotata di ascensore che collega comodamente all’interrato, dove si trovano una cantina ampia compresa nel prezzo e un box doppio in lunghezza in vendita ad € 25.000,00.

Per maggiori informazioni: Tel. 039 511409 - www.ametiacase.it per tante altre soluzioni con un click. Il presente annuncio ha valore indicativo e non costituisce elemento contrattuale.

LEGGI TUTTO

CONDIVIDI SUI SOCIAL

DATI PRINCIPALI

Riferimento
131585
Contratto
Vendita
Tipologia
Appartamento
Superficie
110 mq
Locali
3
Camere da letto
2
Cucina
Abitabile
Bagni
1
Piano
Piano terra
Totale piani
2
Box/Posto auto
Doppio

CARATTERISTICHE

Ascensore

COSTI

Prezzo
€ 240.000,00
Spese condominiali
€ 90,00 / mese

EFFICIENZA ENERGETICA

Stato
Ristrutturato
Anno costruzione
2006
Riscaldamento
Autonomo
Classe energetica
C
IPE
96,51 kWh/m²a

A+

A

B

96,51 kWh/m²a | Classe energetica C

C

D

E

F

G

MAPPA

Robbiate comune della Brianza Meratese

ANNUNCI SIMILI

VENDITA 20
€ 183.000
Appartamento in Vendita a Robbiate (Lecco)
  • Quadrilocale
  • 101 mq
  • 2 bagni
VENDITA 13
€ 169.000
Appartamento in Vendita a Robbiate (Lecco)
  • Quadrilocale
  • 125 mq
  • 2 bagni
VENDITA 13
€ 180.000
Appartamento in Vendita a Merate (Lecco)
  • Quadrilocale
  • 90 mq
  • 2 bagni
VENDITA 9
€ 382.000
Appartamento in Vendita a Merate (Lecco)
  • Quadrilocale
  • 124 mq
  • 2 bagni
VENDITA 20
€ 120.000
Appartamento in Vendita a Imbersago (Lecco)
  • Trilocale
  • 84 mq
  • 2 bagni
VENDITA 20
€ 190.000
Appartamento in Vendita a Merate (Lecco)
  • Trilocale
  • 95 mq
  • 1 bagno
VENDITA 19
€ 228.000
Appartamento in Vendita a Merate (Lecco)
  • Quadrilocale
  • 160 mq
  • 2 bagni