Quattro locali più studio in vendita a Robbiate VENDITA

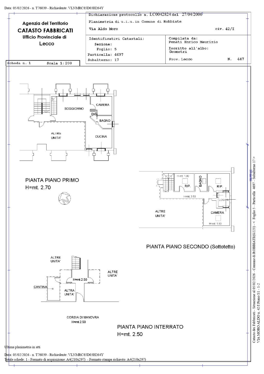
Via Aldo Moro 40 - Robbiate (Lecco)
€ 250.000
  • Quadrilocale
  • 140 mq
  • 2 bagni

Appartamento in Vendita a Robbiate

In vendita a Robbiate, in zona Semi Centro, si trova questo spazioso e luminoso appartamento in ottime condizioni.

La sua posizione strategica permette di raggiungere facilmente tutti i servizi principali e le attività commerciali della zona. L'immobile, libero al rogito, si sviluppa su due livelli ed è stato costruito nel 2004.

Si estende su una superficie totale di 140 metri quadrati, di cui 130 calpestabili, e si compone di 4 locali, tra cui 3 camere da letto e 2 bagni e uno studio, piano primo soggiorno, cucina, studio, bagno e tre balconi, paino mansarda due camere singole, camera matrimoniale, bagno e loggiato.

Grazie alla sua disposizione su due livelli, l'appartamento risulta particolarmente ampio e confortevole. Il riscaldamento è autonomo e alimentato a metano.

L'appartamento è inoltre dotato di infissi e finestre a doppio vetro in legno, per garantire un buon isolamento termico e acustico. Lo stato di conservazione dell'immobile è buono e non richiede particolari interventi di ristrutturazione.

L'appartamento è inoltre venduto non arredato, offrendo così la possibilità di personalizzarlo secondo le proprie esigenze e gusti. L'immobile gode di una doppia esposizione, a nord e sud, che garantisce una buona luminosità in ogni momento della giornata.

Inoltre, sono presenti tre balconi che offrono uno spazio esterno dove poter godere del bel tempo e del panorama circostante. Completa la proprietà una cantina e box auto doppio quantificato in euro 30.000,00, ideale per riporre oggetti di vario genere.

Le spese condominiali ammontano a 85 euro al mese. In sintesi, questo appartamento in vendita a Robbiate è una soluzione ideale per chi cerca un'abitazione spaziosa, ben tenuta e in una posizione comoda e servita.

La sua disposizione su due livelli e la presenza di un box auto e cantina lo rendono perfetto per una famiglia numerosa o per chi desidera avere spazi ampi e confortevoli.

LEGGI TUTTO

CONDIVIDI SUI SOCIAL

DATI PRINCIPALI

Riferimento
131570
Contratto
Vendita
Tipologia
Appartamento
Superficie
140 mq
Locali
4
Camere da letto
3
Cucina
Abitabile
Bagni
2
Piano
1 °
Totale piani
2
Box/Posto auto
Doppio

CARATTERISTICHE

Ascensore

COSTI

Prezzo
€ 250.000,00
Spese condominiali
€ 85,00 / mese

EFFICIENZA ENERGETICA

Stato
Ristrutturato
Anno costruzione
2004
Riscaldamento
Autonomo
Climatizzazione
Predisposizione
Classe energetica
D
IPE
115,79 kWh/m²a

A+

A

B

C

115,79 kWh/m²a | Classe energetica D

D

E

F

G

MAPPA

Robbiate comune della Brianza Meratese

ANNUNCI SIMILI

VENDITA 13
€ 169.000
Appartamento in Vendita a Robbiate (Lecco)
  • Quadrilocale
  • 125 mq
  • 2 bagni
VENDITA 20
€ 183.000
Appartamento in Vendita a Robbiate (Lecco)
  • Quadrilocale
  • 101 mq
  • 2 bagni
VENDITA 13
€ 180.000
Appartamento in Vendita a Merate (Lecco)
  • Quadrilocale
  • 90 mq
  • 2 bagni
VENDITA 9
€ 382.000
Appartamento in Vendita a Merate (Lecco)
  • Quadrilocale
  • 124 mq
  • 2 bagni
VENDITA 20
€ 435.000
Appartamento in Vendita a Merate (Lecco)
  • Quadrilocale
  • 171 mq
  • 2 bagni
VENDITA 20
€ 495.000
Appartamento in Vendita a Merate (Lecco)
  • Quadrilocale
  • 253 mq
  • 2 bagni
VENDITA 20
€ 143.000
Appartamento in Vendita a Merate (Lecco)
  • Quadrilocale
  • 162 mq
  • 1 bagno
VENDITA 20
€ 320.000
Appartamento in Vendita a Merate (Lecco)
  • Quadrilocale
  • 200 mq
  • 2 bagni
VENDITA 14
€ 235.000
Appartamento in Vendita a Imbersago (Lecco)
  • Più di 5 locali
  • 159 mq
  • 2 bagni