• Più di 5 locali
  • 385 mq
  • 4 bagni

Appartamento in Vendita a Vedano al Lambro

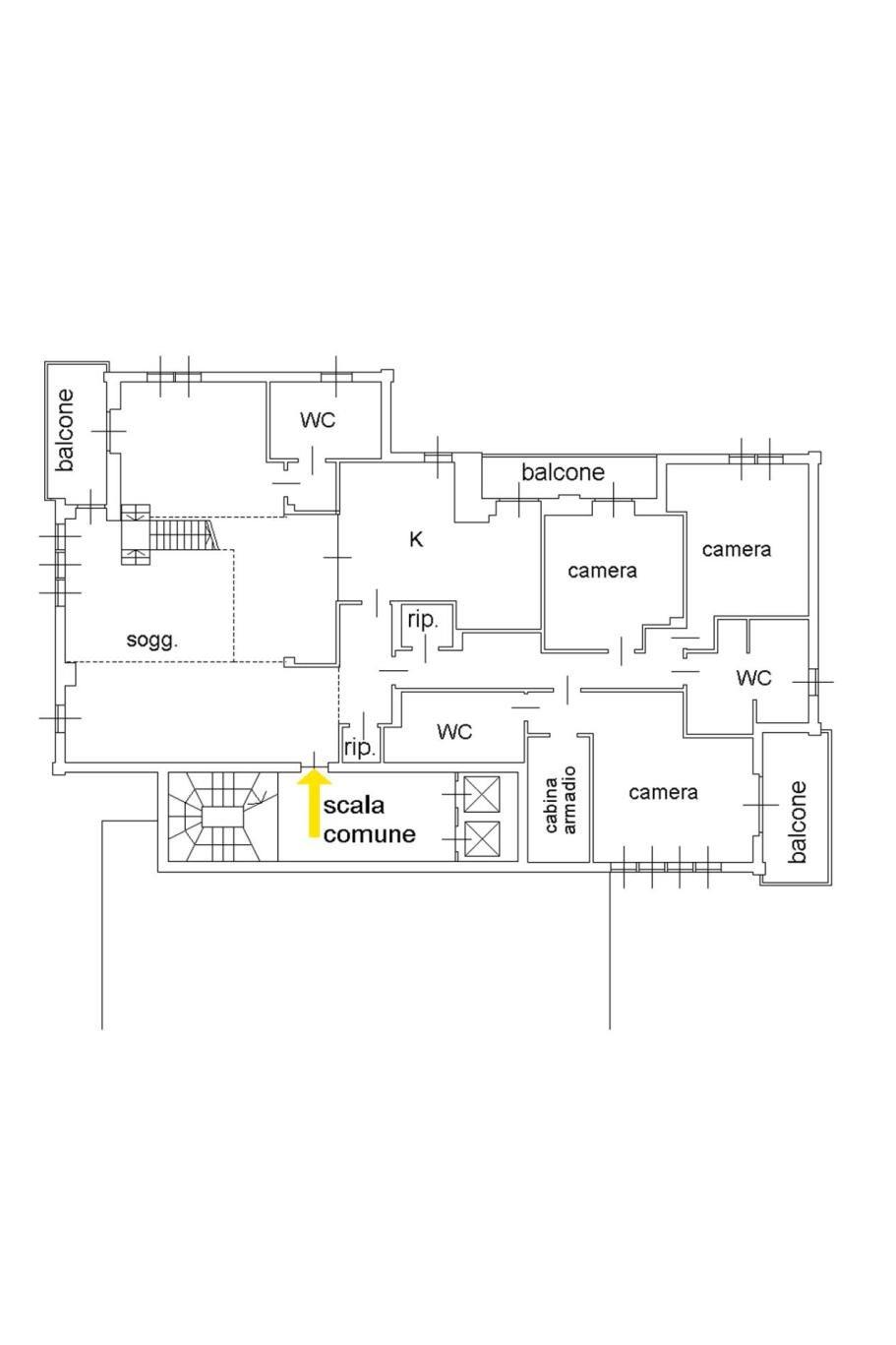
VEDANO AL LAMBRO/PARCO Residenza Riva Verde – ATTICO LUMINOSO di ampia metratura (circa 385 mq) con QUADRUPLA ESPOSIZIONE, così composto: ingresso sul SALONE DOPPIO di circa 55 mq (parzialmente valorizzato dalla scenografica doppia volumetria) con accesso ad un panoramico BALCONE VIVIBILE, guardaroba, ampia SALA DA PRANZO, CUCINA ABITABILE con balcone e passavivande, due ripostigli, BAGNO di servizio; disimpegno di accesso alla zona notte composta dalla SUITE PADRONALE con cabina armadio, balcone e BAGNO PRIVATO e da ulteriori 2 CAMERE (di cui una con balcone) e bagno. La proprietà è arricchita dalla sovrastante mansarda composta da un soppalco in aggetto sul salone, attraverso il quale si accede allo STUDIOLO con ripostiglio e pareti attrezzate ad armadiatura e ad una suggestiva SALA CINEMA. Completano il piano un secondo locale abitabile, una sala da bagno con zona wellness (bagno turco) ed un’ampia lavanderia. Gli ambienti, pensati per coniugare rappresentanza e funzionalità, offrono spazi generosi ed una chiara separazione tra zona giorno, notte e area relax, rendendo questa dimora particolarmente adatta a chi desidera una casa importante, da vivere e da esibire. Eccellenti le dotazioni impiantistiche arricchite dalla domotica su impianto di illuminazione e serrande/tapparelle. Due vani di cantina in dotazione. Possibilità di acquisto fino a 2 BOX nello stabile (prezzo, 35.000 e 50.000 euro, da aggiungere al valore dell’abitazione).
IL CONTESTO: Riva Verde è una Residenza signorile composta da più palazzine, un curato giardino condominiale con zona giochi per bambini, un servizio di portineria full time, spazi comuni ben mantenuti ed un tessuto circostante di livello.
LA ZONA: A pochi passi, l’accesso al Parco di Monza, il centro cittadino ed i principali servizi. Nelle vicinanze, il Polo Ospedaliero/Universitario San Gerardo, negozi, supermercati, scuole, servizi, strutture sportive e ricreative, oltre a comodi collegamenti verso Monza e Milano.
NOTE: La disposizione interna, la presenza di ambienti dedicati (SALA CINEMA, zona wellness con BAGNO TURCO, studiolo soppalcato) e la possibilità di più box rendono questo super attico una dimora ideale per chi cerca una residenza di rappresentanza nella zona Parco, senza rinunciare alla vivibilità quotidiana e alla flessibilità degli spazi.

LEGGI TUTTO

CONDIVIDI SUI SOCIAL

DATI PRINCIPALI

Riferimento
127211
Contratto
Vendita
Tipologia
Appartamento
Superficie
385 mq
Locali
Più di 5
Camere da letto
3
Cucina
Abitabile
Bagni
4
Piano
7
Totale piani
7
Box/Posto auto
Doppio

CARATTERISTICHE

Ascensore

COSTI

Prezzo
€ 850.000,00
Spese condominiali
€ 784,00 / mese

EFFICIENZA ENERGETICA

Stato
Ristrutturato
Anno costruzione
1975
Riscaldamento
Centralizzato
Climatizzazione
Si
Classe energetica
F
IPE
179,31 kWh/m²a

A+

A

B

C

D

E

179,31 kWh/m²a | Classe energetica F

F

G

MAPPA

Vedano al Lambro comune della Bassa Brianza Centrale Sud

ANNUNCI SIMILI

VENDITA 20
€ 850.000
Appartamento in Vendita a Monza, Zona Parco
  • Più di 5 locali
  • 385 mq
  • 4 bagni
VENDITA 20
€ 780.000
Appartamento in Vendita a Monza, Zona San Biagio
  • Più di 5 locali
  • 269 mq
  • 3 bagni
VENDITA 20
€ 495.000
Appartamento in Vendita a Nova Milanese (Monza e Brianza)
  • Più di 5 locali
  • 265 mq
  • 2 bagni
VENDITA 5
€ 580.000
Appartamento in Vendita a Lesmo (Monza e Brianza)
  • Più di 5 locali
  • 280 mq
  • 3 bagni