Tavernerio - Luminoso trilocale con balcone e box auto. VENDITA

Via Provinciale 16/B - Tavernerio (Como)
€ 135.000
  • Trilocale
  • 120 mq
  • 1 bagno

Appartamento in Vendita a Tavernerio

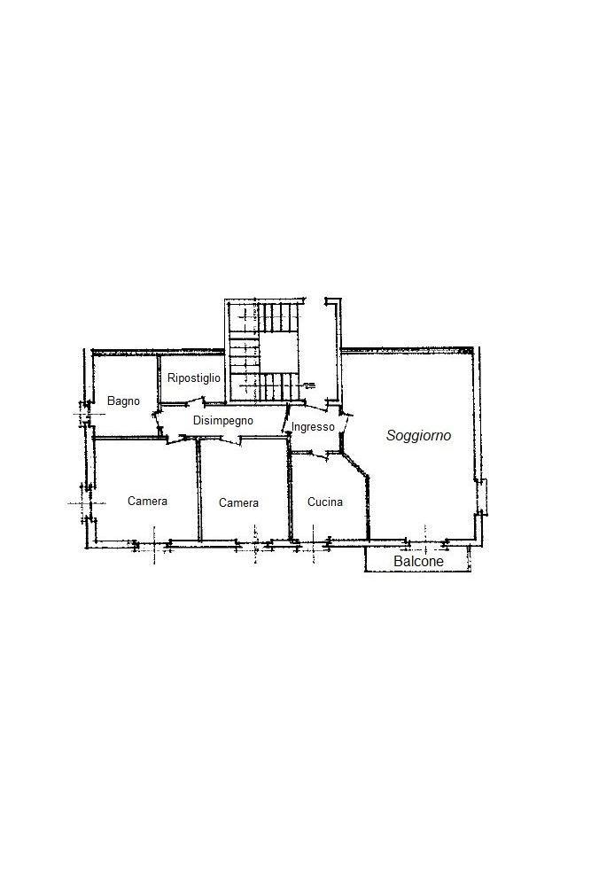
Rif: T1306 - Tavernerio - in centro paese, ubicato in un contesto condominiale comodissimo per raggiungere a piedi tutti i principali servizi proponiamo ampio e luminoso trilocale con balcone con vista panoramica sul verde circostante e box auto. L'immobile, sito al terzo ed ultimo piano senza ascensore, è così disposto: ingresso, ampio soggiorno con annesso balcone, cucina abitabile, due camere da letto, comodo ripostiglio e bagno finestrato.
L'appartamento, presenta infissi in PVC/doppio vetro, porta blindata, riscaldamento centralizzato con termovalvole.
Completa la proprietà il box auto singolo.
Completano la proprietà numerosi posti auto disponibili per i condomini nella piazza sottostante.

BUONI MOTIVI PER ACQUISTARLO:
1- Posizione;
2- Luminosità;
3- Ampia metratura;
4- Balcone;
5- Box auto;
6- Vista.

Per ulteriori informazioni o per fissare un appuntamento puoi chiamarci al numero 031/5477974, mandarci un messaggio su WhatsApp al 328/1992187 oppure passa a trovarci in via Provinciale per Lecco 758 Lipomo. Orari di Apertura: Lunedì – Venerdì: 09:00 – 13:00 / 14:30 – 20:30 Sabato: 09:00 – 13:00 / 14:30 – 17:30. Se fosse interessato ad una valutazione GRATUITA e SENZA IMPEGNO del Suo immobile, siamo a Sua completa disposizione! Le ricordiamo, inoltre, che la nostra struttura offre CONSULENZE DI MUTUO GRATUITE CON TASSI AGEVOLATI. La presente scheda non vincola in alcun modo l'agenzia immobiliare non costituisce forma di contratto, le informazioni qui contenute sono da ritenersi del tutto indicative e non potranno essere utilizzate come parte integrante in un eventuale contratto di vendita o locazione della proprietà.

LEGGI TUTTO

CONDIVIDI SUI SOCIAL

DATI PRINCIPALI

Riferimento
127595
Contratto
Vendita
Tipologia
Appartamento
Superficie
120 mq
Locali
3
Camere da letto
2
Cucina
Abitabile
Bagni
1
Piano
3 °
Totale piani
3
Box/Posto auto
Singolo

CARATTERISTICHE

Ascensore

COSTI

Prezzo
€ 135.000,00
Spese condominiali
€ 250,00 / mese

EFFICIENZA ENERGETICA

Stato
Abitabile
Anno costruzione
1970
Riscaldamento
Centralizzato
Classe energetica
G
IPE
319,04 kWh/m²a

A+

A

B

C

D

E

F

319,04 kWh/m²a | Classe energetica G

G

MAPPA

Tavernerio comune dell'Alta Brianza Comasca

ANNUNCI SIMILI

VENDITA
€ 105.000
Appartamento in Vendita a Tavernerio (Como)
  • Trilocale
  • 75 mq
  • 1 bagno
VENDITA 16
€ 160.000
Appartamento in Vendita a Tavernerio (Como)
  • Trilocale
  • 108 mq
  • 1 bagno
VENDITA 20
€ 260.000
Appartamento in Vendita a Tavernerio (Como)
  • Trilocale
  • 89 mq
  • 2 bagni
VENDITA 20
€ 229.000
Appartamento in Vendita a Tavernerio (Como)
  • Trilocale
  • 85 mq
  • 2 bagni
VENDITA 20
€ 259.000
Appartamento in Vendita a Tavernerio (Como)
  • Quadrilocale
  • 155 mq