QUADRILOCALE PADERNO DUGNANO – CALDERARA VIA PEROSI 15 VENDITA

Via Don Lorenzo Perosi 15 - Paderno Dugnano (Milano)
€ 250.000
  • Quadrilocale
  • 105 mq
  • 2 bagni

Appartamento in Vendita a Paderno Dugnano

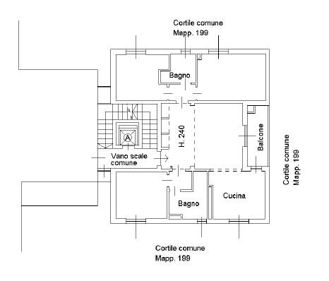
Di fronte al nuovo centro sportivo e a pochi passi da tutti i principali servizi, all’interno di un contesto signorile e ben curato, proponiamo in vendita esclusivo appartamento di quattro locali con cantina e box.

L’immobile si compone di:
ingresso, ampio e luminoso soggiorno impreziosito da bio-camino, cucina abitabile di generose dimensioni, comodo disimpegno, tre camere da letto, doppi servizi finestrati e ampio balcone.

L’appartamento si presenta in condizioni pari al nuovo ed è dotato di numerosi comfort, tra cui caldaia a condensazione, aria condizionata e, nel 2023, sono stati completamente sostituiti serramenti, cassonetti, tapparelle e zanzariere.
Completa la proprietà un arredo su misura, incluso nel prezzo, che valorizza ulteriormente gli spazi.

Una soluzione abitativa unica e difficilmente reperibile, ideale per chi cerca comfort, qualità e una posizione strategica.

Libero da Aprile 2027.

Richiesta € 250.000 euro.

Per ulteriori informazioni o per fissare una visita, non esitate a contattarci. Si precisa che la presente scheda non costituisce un contratto né un impegno vincolante, e le informazioni riportate sono da considerarsi indicative; non potranno essere utilizzate come parte integrante di eventuali contratti di compravendita o locazione, né vincolano in alcun modo la società.

LEGGI TUTTO

CONDIVIDI SUI SOCIAL

DATI PRINCIPALI

Riferimento
131192
Contratto
Vendita
Tipologia
Appartamento
Superficie
105 mq
Locali
4
Camere da letto
3
Cucina
Abitabile
Bagni
2
Piano
1 °
Totale piani
4
Box/Posto auto
Singolo

CARATTERISTICHE

Ascensore

COSTI

Prezzo
€ 250.000,00
Spese condominiali
€ 115,00 / mese

EFFICIENZA ENERGETICA

Stato
Abitabile
Anno costruzione
1988
Riscaldamento
Autonomo
Climatizzazione
Si
Classe energetica
G
IPE
175,00 kWh/m²a

A+

A

B

C

D

E

F

175,00 kWh/m²a | Classe energetica G

G

MAPPA

Paderno Dugnano comune della Brianza Milanese

ANNUNCI SIMILI

VENDITA 13
€ 320.000
Appartamento in Vendita a Paderno Dugnano (Milano)
  • Quadrilocale
  • 133 mq
  • 2 bagni