QUATTRO LOCALI CON TERRAZZO VIA NINO BIXIO, 6 PADERNO D.NO VENDITA

Via Nino Bixio 6 - Paderno Dugnano (Milano)
€ 430.000
  • Quadrilocale
  • 140 mq
  • 2 bagni

Appartamento in Vendita a Paderno Dugnano

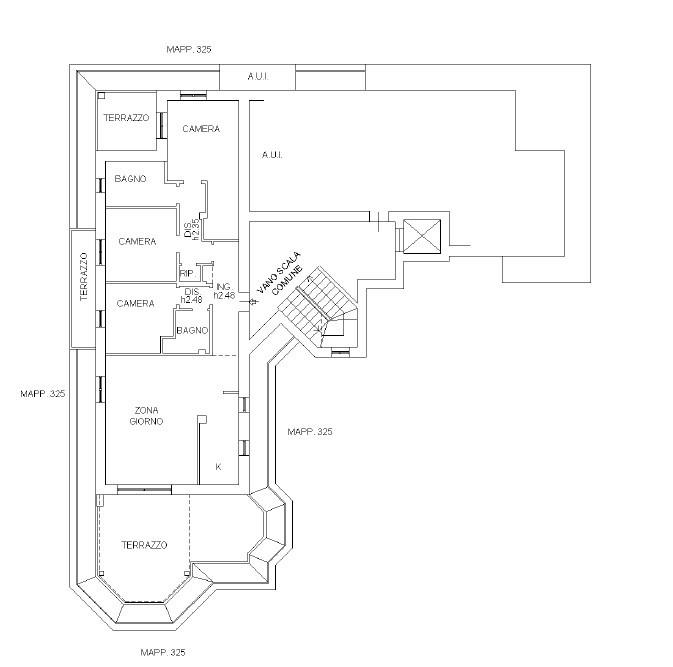
A Paderno Dugnano, nella graziosa frazione di Palazzolo Milanese, all’interno dell’esclusivo complesso Sette Stelle “Residenza Meraviglia”, dotato di palestra condominiale privata, geotermia e impianto fotovoltaico con batteria di accumulo Tesla, proponiamo in vendita un appartamento unico e introvabile. L’immobile, un ampio quattro locali di circa 140 mq, è arricchito da un terrazzo di circa 50 mq, gode di una splendida tripla esposizione e regala una vista mozzafiato sul verde, oltre a comprendere cantina e box doppio.

L’ingresso conduce a un soggiorno luminoso con accesso diretto al terrazzo, affiancato da una cucina a vista moderna e funzionale. Un disimpegno introduce la zona notte composta da tre camere da letto, tutte dotate di terrazzini, tra cui una matrimoniale con cabina armadio. Completano la disposizione interna i doppi servizi e un pratico ripostiglio/lavanderia. La proprietà comprende inoltre un box doppio e una cantina.

L’appartamento vanta finiture e dotazioni di livello superiore, tra cui serramenti con triplo vetro e gas Argon, riscaldamento e raffrescamento a pavimento, ventilazione meccanica controllata, tapparelle motorizzate e sistema d’allarme con sensori volumetrici e perimetrali. Un’abitazione che coniuga gusto, eleganza e comfort, offrendo un’esperienza abitativa raffinata in un contesto davvero esclusivo.

Richiesta: € 430.000,00

La presente scheda non costituisce forma di contratto. Le informazioni qui contenute sono da ritenersi del tutto indicative e non potranno essere utilizzate come parte integrante in un eventuale contratto di vendita o locazione della proprietà. La presente non vincola in alcun modo la società.

LEGGI TUTTO

CONDIVIDI SUI SOCIAL

DATI PRINCIPALI

Riferimento
131188
Contratto
Vendita
Tipologia
Appartamento
Superficie
140 mq
Locali
4
Camere da letto
3
Cucina
Cucinotto
Bagni
2
Piano
2 °
Totale piani
3
Box/Posto auto
Doppio

CARATTERISTICHE

Ascensore

COSTI

Prezzo
€ 430.000,00
Spese condominiali
€ 266,00 / mese

EFFICIENZA ENERGETICA

Stato
Ristrutturato
Anno costruzione
2019
Riscaldamento
Centralizzato
Climatizzazione
Si
Classe energetica
A4
IPE
351,00 kWh/m²a
351,00 kWh/m²a | Classe energetica A4

A4

A3

A2

A1

B

C

D

E

F

G

MAPPA

Paderno Dugnano comune della Brianza Milanese

ANNUNCI SIMILI

VENDITA 20
€ 426.000
Appartamento in Vendita a Paderno Dugnano (Milano)
  • Quadrilocale
  • 152 mq
  • 2 bagni
VENDITA 20
€ 435.000
Appartamento in Vendita a Paderno Dugnano (Milano)
  • Quadrilocale
  • 150 mq
  • 3 bagni
VENDITA 20
€ 440.000
Appartamento in Vendita a Paderno Dugnano (Milano)
  • Quadrilocale
  • 150 mq
  • 2 bagni
VENDITA 6
Trattativa Riservata
Appartamento in Vendita a Paderno Dugnano (Milano)
  • Quadrilocale
  • 128 mq
  • 2 bagni
VENDITA 16
€ 610.000
Appartamento in Vendita a Paderno Dugnano (Milano)
  • Quadrilocale
  • 172 mq
  • 2 bagni