QUADRILOCALE CON TERRAZZO E BOX DOPPIO VENDITA

Via Milano - Carate Brianza (Monza e Brianza)
€ 447.000
  • Quadrilocale
  • 143 mq
  • 2 bagni

Appartamento in Vendita a Carate Brianza

Carate Brianza: vi presentiamo la RESIDENZA IL KATAMARANO: un complesso moderno ed elegante di nuova costruzione che ospita quattro mini-palazzine di 5 appartamenti ciascuna, oltre ad attico, 1 villa singola e 4 ville singole unite a due a due dai box.
La Residenza Katamarano offre ogni confort dovuti alla vicinanza del centro paese con i suoi principali servizi, mettendo a disposizione uno spazio immerso nel verde.

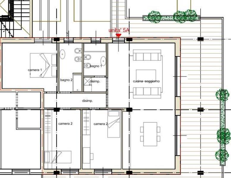
L'appartamento che presentiamo è un quadrilocale, posto al piano primo ed è così composto: l'ingresso si apre sull'ampia e luminosa zona giorno living con cucina a vista, completa di portafinestra con accesso al terrazzo. A servire la zona giorno abbiamo un primo bagno finestrato.
Attraverso un comodo disimpegno si accede alla zona notte dove troviamo una camera matrimoniale, un secondo bagno finestrato e due camere singole.

Completa la proprietà e ne accresce il valore una cantina di pertinenza e la possibilità di avere un box doppio in larghezza (al valore di € 55.000,00)

Le soluzioni presenteranno il riscaldamento a pavimento (pompa di calore), cappotto termico e ventilazione meccanica controllata, in più ogni unità avrà i propri pannelli fotovoltaici dedicati.

Grazie ad un ampio e ricco capitolato sarà ampiamente possibile personalizzare ogni soluzione.

L’Agenzia Mirabella Case di Mirabella Andrea, associato F.I.M.A.A. , offre servizi di intermediazione immobiliare e consulenza con la più totale professionalità, sicurezza e scrupolosità.

Il nostro obbiettivo è seguire ogni cliente e ogni trattativa garantendo puntualità, trasparenza, serietà per tutto il percorso di tutte le trattative. Utilizzando ogni forma di pubblicità possibile da quella cartacea, al nostro sito internet sempre in aggiornamento fino ai migliori portali immobiliari.

Ci impegniamo ad accompagnare il cliente step by step, dall’inizio della trattativa fino alla Stipula del Rogito Notarile, restando sempre a disposizione anche dopo la conclusione cosicché che abbia la tranquillità e la sicurezza di affidarsi ad una figura professionale per la cura del suo bisogno patrimoniale immobiliare.

LEGGI TUTTO

CONDIVIDI SUI SOCIAL

DATI PRINCIPALI

Riferimento
130416
Contratto
Vendita
Tipologia
Appartamento
Superficie
143 mq
Locali
4
Camere da letto
3
Cucina
Abitabile
Bagni
2
Piano
1 °
Totale piani
3
Box/Posto auto
Doppio

CARATTERISTICHE

Ascensore

COSTI

Prezzo
€ 447.000,00

EFFICIENZA ENERGETICA

Stato
Nuovo/In costruzione
Anno costruzione
2026
Riscaldamento
Autonomo
Climatizzazione
Si
Classe energetica
A+
IPE
175,00 kWh/m²a
175,00 kWh/m²a | Classe energetica A+

A+

A

B

C

D

E

F

G

MAPPA

Carate Brianza comune della Bassa Brianza Centrale Nord

ANNUNCI SIMILI

VENDITA 12
€ 435.000
Appartamento in Vendita a Carate Brianza (Monza e Brianza)
  • Più di 5 locali
  • 157 mq
  • 2 bagni
VENDITA 20
€ 139.000
Appartamento in Vendita a Carate Brianza (Monza e Brianza)
  • Quadrilocale
  • 132 mq
  • 1 bagno
VENDITA 3
€ 497.000
Appartamento in Vendita a Carate Brianza (Monza e Brianza)
  • Più di 5 locali
  • 163 mq
  • 2 bagni
VENDITA 11
€ 445.000
Appartamento in Vendita a Verano Brianza (Monza e Brianza)
  • Più di 5 locali
  • 160 mq
  • 2 bagni
VENDITA 20
€ 179.000
Appartamento in Vendita a Verano Brianza (Monza e Brianza)
  • Quadrilocale
  • 155 mq
  • 2 bagni