Appartamento in Villa Stanga Busca, Carate Brianza VENDITA

Via Stanga Busca 2 - Carate Brianza (Monza e Brianza)
€ 580.000
  • Più di 5 locali
  • 307 mq
  • 3 bagni

Appartamento in Vendita a Carate Brianza

Carate Brianza – fraz. Costa Lambro, all’interno della prestigiosa Villa Stanga Busca, viene proposto un raffinato appartamento in contesto d’epoca, dove storia, arte e comfort contemporaneo si incontrano in perfetta armonia.

La villa, risalente al XVII secolo e ampliata nei secoli successivi, rappresenta una delle dimore storiche più affascinanti della Brianza. Un tempo residenza nobiliare immersa in un ampio parco secolare, conserva ancora oggi il suo impianto originario e dettagli architettonici di grande pregio, testimoni della tradizione lombarda.

L’appartamento si distingue per gli ambienti ampi e luminosi, con soffitti in legno con cassettoni e travi a vista o con volte impreziosite da finiture autentiche dell’epoca. Gli spazi interni sono stati oggetto di un attento recupero conservativo, che ha valorizzato elementi originali come pavimentazioni in cotto lombardo, serramenti in legno e dettagli in pietra.

L’immobile proposto in vendita si compone di due unità abitative adiacenti e tra loro collegate, offrendo così una straordinaria versatilità d’uso, capace di adattarsi alle più diverse esigenze di vita.

Questa configurazione offre grande versatilità e si adatta a diverse esigenze abitative. La proprietà risulta ideale sia per chi è alla ricerca di ampi spazi, sia per chi desidera integrare un’area lavorativa direttamente collegata all’abitazione. Si presta inoltre perfettamente a nuclei familiari composti da due unità, consentendo di condividere lo stesso contesto mantenendo al contempo autonomia, privacy e indipendenza.

La distribuzione degli ambienti è studiata per offrire comfort e funzionalità:

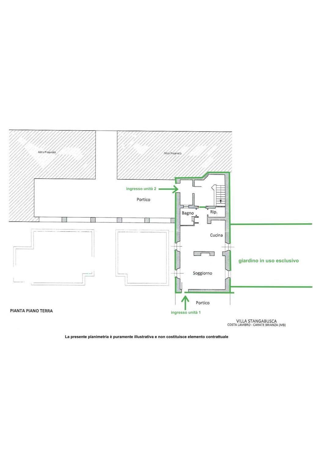
PIANO TERRA
L'unità immobiliare si apre su un ampio e luminoso open-space con doppia esposizione, con cucina a vista ed è ulteriormente valorizzato da un suggestivo camino centrale, elemento di grande fascino e carattere.
Completano il piano un disimpegno, un bagno e un pratico ripostiglio. Dal disimpegno, tramite porta di collegamento interno, si accede direttamente al vano scala che collega al piano primo.
La proprietà gode, inoltre, di un giardino in uso esclusivo, ideale per momenti di relax all’aperto e per vivere appieno la tranquillità del contesto.

PIANO PRIMO
Il piano primo (ed ultimo) è servito da un elegante e accogliente ingresso indipendente al piano terra, concepito anche come pratica zona guardaroba, capace di coniugare funzionalità e ordine; da qui si accede alla scala rivestita in pietra che conduce all’abitazione principale.
L’appartamento si configura come un ampio trilocale, caratterizzato da ambienti generosi e ben distribuiti.
La zona giorno accoglie un luminoso living open-space con cucina a vista, progettato per favorire convivialità e comfort, con accesso al balcone affacciato sulla caratteristica corte rustica a pianta quadrata.
La zona notte, ben separata, comprende due spaziose camere matrimoniali dalle generose metrature; una delle quali si distingue come master room, completa di bagno privato e cabina armadio. A servizio dell’abitazione, un secondo bagno, finestrato.

Il contesto, con servizio custode h.24, è esclusivo e riservato, caratterizzato da un’atmosfera d’altri tempi: cortili interni, porticati, giardini curati e scorci architettonici di grande charme ed un’area condominiale dotata di serra da utilizzarsi su prenotazione per eventi privati, rendono questa proprietà unica nel suo genere.

Classe energetica:
unità 1) classe F, indice EP gl. Nren 248,29 kWh/m2 anno;
unità 2) classe G, indice EP gl, nren 477,60 kWh/m2 anno.

Prezzo € 580.000,00 compreso box di 30mq., posto auto coperto e due cantine/ripostigli.

Ideale per chi desidera vivere in un ambiente ricco di storia senza rinunciare al comfort moderno, a pochi minuti dai principali servizi e collegamenti.

Alessandro Mantegazza
tel. 328/4571043
info@alessandromantegazza.it
www.alessandromantegazza.it

LEGGI TUTTO

CONDIVIDI SUI SOCIAL

DATI PRINCIPALI

Riferimento
132239
Contratto
Vendita
Tipologia
Appartamento
Superficie
307 mq
Locali
Più di 5
Camere da letto
4
Cucina
Abitabile
Bagni
3
Piano
1 °
Totale piani
2
Box/Posto auto
Doppio

CARATTERISTICHE

Ascensore

COSTI

Prezzo
€ 580.000,00
Spese condominiali
€ 1,00 / mese

EFFICIENZA ENERGETICA

Stato
Abitabile
Anno costruzione
1981
Riscaldamento
Autonomo
Classe energetica
F
IPE
248,29 kWh/m²a

A+

A

B

C

D

E

248,29 kWh/m²a | Classe energetica F

F

G

MAPPA

Carate Brianza comune della Bassa Brianza Centrale Nord

ANNUNCI SIMILI

VENDITA 20
€ 550.000
Appartamento in Vendita a Seregno (Monza e Brianza)
  • Più di 5 locali
  • 194 mq
  • 2 bagni
VENDITA 20
€ 380.000
Appartamento in Vendita a Seregno (Monza e Brianza)
  • Più di 5 locali
  • 211 mq
  • 3 bagni
VENDITA 15
€ 480.000
Appartamento in Vendita a Camparada (Monza e Brianza)
  • Più di 5 locali
  • 850 mq
  • 3 bagni