Porzione di casa di due locali più rustico e box auto mq 22 VENDITA

Vicolo Piave 54 - Misinto (Monza e Brianza)
€ 67.000
  • Bilocale
  • 120 mq
  • 1 bagno

Appartamento in Vendita a Misinto

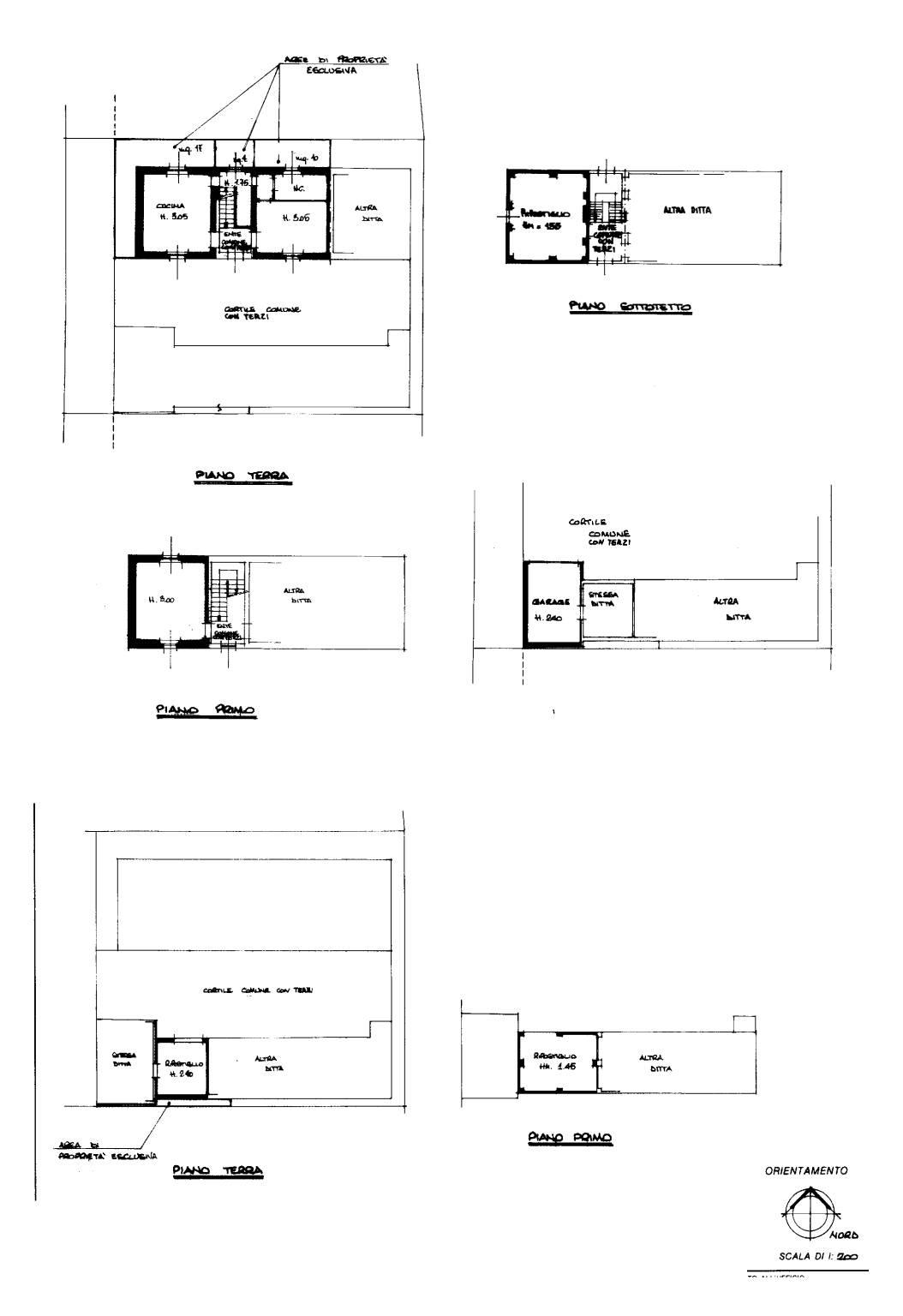
Collocata nel centro del comune di Misinto, in un contesto di piccolo cortile bifamigliare, la porzione di casa è priva di spese condominiali di gestione. L’abitazione principale si sviluppa al piano terra ed è composta da due locali, separati dalla scala in comune, divisi in soggiorno con angolo cottura da un lato, bagno e camera da letto dall’altro lato per una metratura totale di circa 75 metri quadrati. E’ comunque presente un passaggio diretto tra la zona giorno e la zona notte tramite il sottoscala all’interno dell’unità immobiliare. Al piano primo è presente un altro locale di circa 30 metri quadrati, accessibile sempre dalla scala comune ma eventualmente collegabile internamente con il soggiorno. A corpo staccato, ma all’interno del cortile, è presente un rustico su due livelli per un totale di mq 35 con adiacente il box auto di mq 22. Completa la proprietà il sottotetto e un’area esterna di pertinenza già recintata con accesso dal soggiorno o dalla corte comune. L’immobile è in pronta consegna e funzionante, ma necessita di lavori di riammodernamento su serramenti, impianti e finiture.

LEGGI TUTTO

CONDIVIDI SUI SOCIAL

DATI PRINCIPALI

Riferimento
129790
Contratto
Vendita
Tipologia
Appartamento
Superficie
120 mq
Locali
2
Camere da letto
1
Cucina
Angolo cottura
Bagni
1
Piano
2 °
Totale piani
2
Box/Posto auto
Doppio

CARATTERISTICHE

Ascensore

COSTI

Prezzo
€ 67.000,00

EFFICIENZA ENERGETICA

Stato
Abitabile
Anno costruzione
1960
Riscaldamento
Autonomo
Classe energetica
G
IPE
317,05 kWh/m²a

A+

A

B

C

D

E

F

317,05 kWh/m²a | Classe energetica G

G

MAPPA

Misinto comune della Bassa Brianza Occidentale

ANNUNCI SIMILI