Appartamento in vendita a Misinto VENDITA

Via Vicolo Piave - Misinto (Monza e Brianza)
€ 225.000
  • Quadrilocale
  • 154 mq
  • 3 bagni

Appartamento in Vendita a Misinto

Porzione di casa indipendente con charme in Misinto
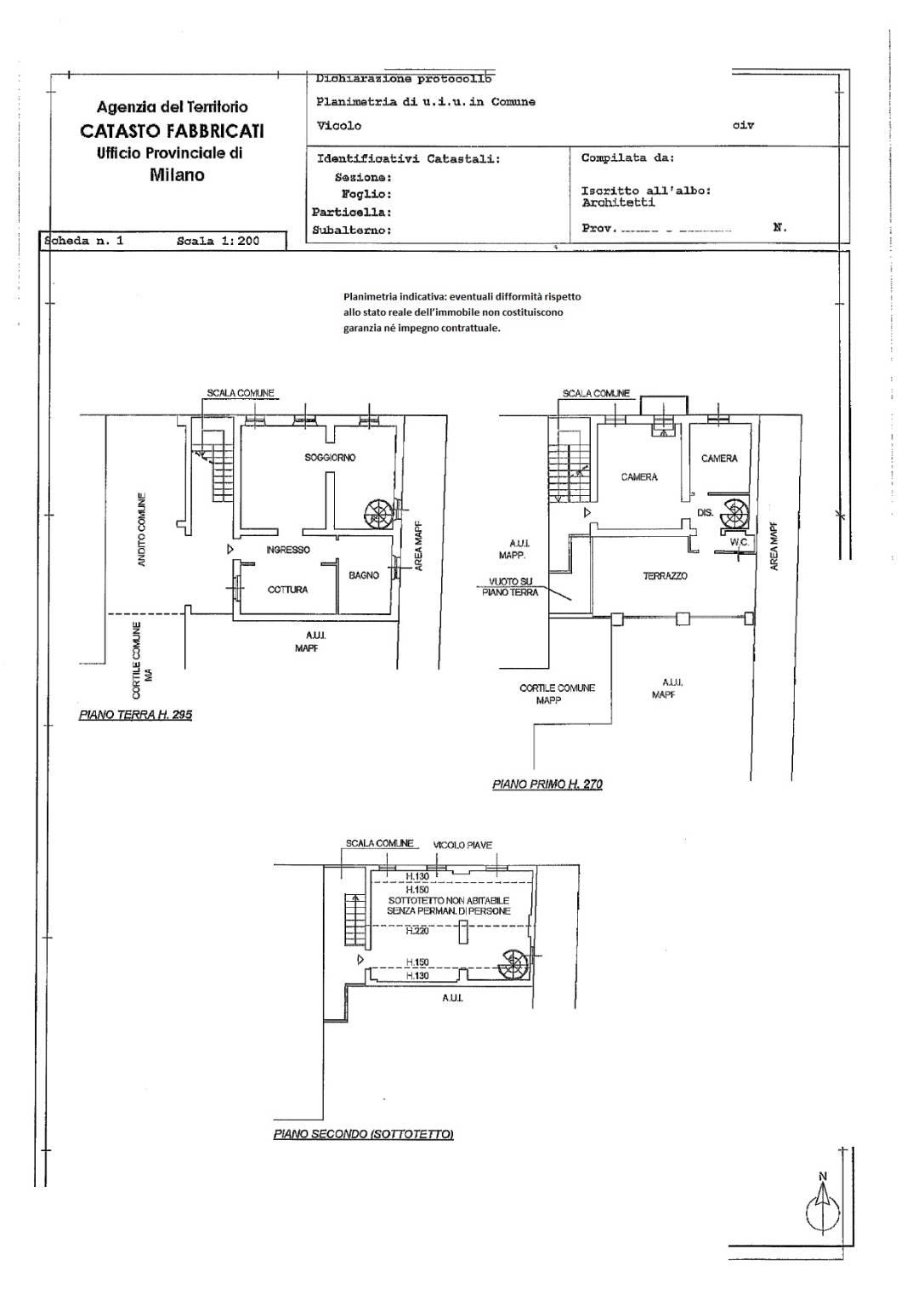
A due passi dal centro di Misinto, in posizione tranquilla e riservata, proponiamo in vendita una splendida porzione di casa indipendente disposta su due livelli oltre sottotetto, ideale per chi cerca spazi funzionali, indipendenza e zero spese condominiali.
Descrizione immobile
L'ingresso, completamente autonomo, si apre su un grazioso portico coperto, perfetto per godersi momenti di relax all'aperto.
Al piano terra troviamo un accogliente soggiorno con camino, una sala da pranzo, cucina e bagno, ambienti caldi e ben distribuiti che creano un'atmosfera familiare e confortevole.
Una scala a chiocciola in legno conduce al piano primo, dove si sviluppa la zona notte composta da due camere da letto, un piccolo bagno di servizio e l'accesso a un terrazzo riservato.
Il piano sottotetto, non abitabile, è stato sapientemente sfruttato con un ampio locale hobby e una pratica lavanderia, ideali come spazi aggiuntivi per il tempo libero o per esigenze di famiglia. Completano la proprietà
Box doppio in lunghezza
Ripostiglio sovrastante il box
Impianto fotovoltaico da 5 kW con accumulo da 10 kW
Climatizzatore, impianto d'allarme, serramenti in legno interni ed esterni
Riscaldamento a caloriferi e camino a legna
Punti di forza
Nessuna spesa condominiale
Ingresso indipendente
Ottimo stato manutentivo
Posizione strategica: comoda per raggiungere il centro cittadino e i principali servizi
Soluzione ideale per famiglie o coppie in cerca di comfort, autonomia e risparmio energetico
Ottima opportunità per chi desidera una casa accogliente, sostenibile e pronta da abitare
Misinto zona centrale ma tranquilla
Non perdere l'occasione. Contattaci subito per visionare l'immobile, saremo lieti di organizzare la tua visita con la massima cura e disponibilità.

LEGGI TUTTO

CONDIVIDI SUI SOCIAL

DATI PRINCIPALI

Riferimento
129685
Contratto
Vendita
Tipologia
Appartamento
Superficie
154 mq
Locali
4
Camere da letto
2
Cucina
Abitabile
Bagni
3
Piano
1 °
Totale piani
3
Box/Posto auto
Doppio

CARATTERISTICHE

Ascensore

COSTI

Prezzo
€ 225.000,00

EFFICIENZA ENERGETICA

Stato
Abitabile
Anno costruzione
1970
Riscaldamento
Autonomo
Climatizzazione
Si
Classe energetica
G
IPE
210,28 kWh/m²a

A+

A

B

C

D

E

F

210,28 kWh/m²a | Classe energetica G

G

MAPPA

Misinto comune della Bassa Brianza Occidentale

ANNUNCI SIMILI

VENDITA 20
€ 370.000
Appartamento in Vendita a Lazzate (Monza e Brianza)
  • Più di 5 locali
  • 236 mq
  • 3 bagni