OSNAGO APPARTAMENTO QUATTROLOCALI IN VILLA VENDITA

Via Vignola - Osnago (Lecco)
€ 238.000
  • Quadrilocale
  • 195 mq
  • 2 bagni

Appartamento in Vendita a Osnago

Osnago Zona Orane, Immerso nel verde proponiamo in vendita appartamento in Villa degli anni 70, ristrutturata nel 2008 (bagni e impianti) con giardino in comune.
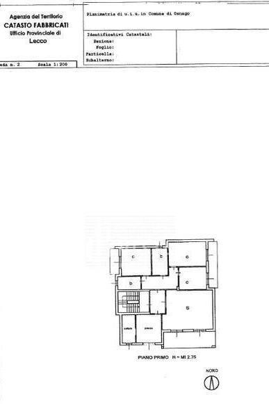
L'immobile, libero al rogito, ha una superficie 195 metri quadrati ed è composto da quattro locali, di cui tre camere da letto e due bagni.

Entrando nell'Appartamento ci accoglie un luminoso soggiorno doppio con zona pranzo e uscita sul terrazzo coperto comunicante con la cucina abitabile, procedendo nel disimpegno zona notte troviamo una camera con uscita sul balcone, una camera matrimoniale con uscita sul balcone e una terza camera con uscita sul balcone , tutte le camere hanno l'uscita sul balcone, due bagni finestrati uno con doccia l'altro con la vasca.
Piano seminterrato troviamo ampi locali cantina/ ripostiglio/taverna
L'appartamento è dotato di impianto a radiatori, il riscaldamento è autonomo a metano.
Lo stato di manutenzione dell'appartamento è parzialmente buono, i serramenti in legno vetro singolo sono da sostituire sia internamente che esternamente. Libero al rogito.
Dal balcone e dal terrazzo si può godere di una piacevole vista sul giardino comune, ideale per rilassarsi e trascorrere momenti all'aria aperta con vista montevecchia.
Classe energetica "G".

La Villa è composta da soli due appartamenti con giardino in comune. Non c'è possibilità box.
Questa è un'opportunità imperdibile per chi desidera acquistare un appartamento spazioso, luminoso e ben tenuto in una zona verde di Osnago.
Non esitare a contattarci per ulteriori informazioni e per prenotare una visita.
Questo immobile viene venduto in collaborazione con S.A. Real estate Como

LEGGI TUTTO

CONDIVIDI SUI SOCIAL

DATI PRINCIPALI

Riferimento
131854
Contratto
Vendita
Tipologia
Appartamento
Superficie
195 mq
Locali
4
Camere da letto
3
Cucina
Abitabile
Bagni
2
Piano
1 °
Totale piani
2

CARATTERISTICHE

Ascensore

COSTI

Prezzo
€ 238.000,00

EFFICIENZA ENERGETICA

Stato
Abitabile
Anno costruzione
1980
Riscaldamento
Autonomo
Classe energetica
G
IPE
175,00 kWh/m²a

A+

A

B

C

D

E

F

175,00 kWh/m²a | Classe energetica G

G

MAPPA

Osnago comune della Brianza Meratese

ANNUNCI SIMILI

VENDITA 20
€ 329.000
Appartamento in Vendita a Osnago (Lecco)
  • Più di 5 locali
  • 229 mq
  • 3 bagni
VENDITA 19
€ 240.000
Appartamento in Vendita a Montevecchia (Lecco)
  • Quadrilocale
  • 142 mq
  • 2 bagni
VENDITA 20
€ 495.000
Appartamento in Vendita a Merate (Lecco)
  • Quadrilocale
  • 253 mq
  • 2 bagni
VENDITA 20
€ 143.000
Appartamento in Vendita a Merate (Lecco)
  • Quadrilocale
  • 162 mq
  • 1 bagno
VENDITA 20
€ 320.000
Appartamento in Vendita a Merate (Lecco)
  • Quadrilocale
  • 200 mq
  • 2 bagni
VENDITA 19
€ 228.000
Appartamento in Vendita a Merate (Lecco)
  • Quadrilocale
  • 160 mq
  • 2 bagni
VENDITA 20
€ 198.000
Appartamento in Vendita a Merate (Lecco)
  • Più di 5 locali
  • 165 mq
  • 2 bagni
VENDITA 20
€ 435.000
Appartamento in Vendita a Merate (Lecco)
  • Quadrilocale
  • 171 mq
  • 2 bagni