NUOVO TRILOCALE DI 95 MQ CON DOPPI SERVIZI E POSTO AUTO VENDITA

Via Gianluca Padulli 63 - Cabiate (Como)
€ 280.000
  • Trilocale
  • 95 mq
  • 2 bagni

Appartamento in Vendita a Cabiate

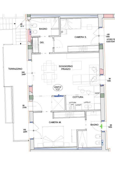
CABIATE: al confine con Perticato, proponiamo in vendita un NUOVO trilocale di 95 mq posto al piano primo in contesto privato di sole sei unità abitative di NUOVA costruzione.
L’appartamento è composto da ingresso da terrazzo di 20 mq, ampio soggiorno con cucina a vista, disimpegno, camera matrimoniale con bagno, cameretta, ed un ulteriore bagno. La soluzione è collegata al sottotetto di altri 80 mq da rifinire con pavimentazione.
Possibilità di scegliere le finiture interne secondo il proprio gusto.
L’abitazione dispone di cappotto, riscaldamento A PAVIMENTO, ventilazione meccanica per il ricircolo dell’aria, serramenti e tapparelle in alluminio.
Posto auto coperto di proprietà.
*
*
Stai pensando di vendere o affittare il tuo immobile? Siamo al tuo fianco nel momento più importante: la valutazione…affidati a noi per una stima gratuita e non impegnativa. Scopri quale mutuo puoi richiedere e con i nostri consulenti del credito Monety, ti accompagniamo in ogni fase della ricerca del finanziamento più idoneo alle tue esigenze: un processo delicato che spesso richiede del tempo, snellito dalla supervisione di un team professionale ed esperto. Il nostro team di consulenti del credito lavora in collaborazione con diverse banche e istituti finanziari, così da individuare sempre le migliori opzioni di finanziamento disponibili sul mercato. Gabetti Franchising Agency è un brand capace di rinnovarsi ed emergere per fronteggiare i rapidi cambiamenti del mercato immobiliare, attraverso la riconosciuta professionalità dei suoi imprenditori concretizza e applica i valori della tradizione, della società e dell'affidabilità, coniugandoli con quelli della modernità, dell'innovazione e del dinamismo.

LEGGI TUTTO

CONDIVIDI SUI SOCIAL

DATI PRINCIPALI

Riferimento
131340
Contratto
Vendita
Tipologia
Appartamento
Superficie
95 mq
Locali
3
Camere da letto
2
Cucina
A vista
Bagni
2
Piano
1 °
Totale piani
1
Box/Posto auto
Singolo

CARATTERISTICHE

Ascensore

COSTI

Prezzo
€ 280.000,00

EFFICIENZA ENERGETICA

Stato
Nuovo/In costruzione
Anno costruzione
2025
Riscaldamento
Autonomo
Climatizzazione
Predisposizione
Classe energetica
A
IPE
175,00 kWh/m²a

A+

175,00 kWh/m²a | Classe energetica A

A

B

C

D

E

F

G

MAPPA

Cabiate comune della Bassa Brianza Comasca

ANNUNCI SIMILI

VENDITA 9
€ 135.000
Appartamento in Vendita a Cabiate (Como)
  • Trilocale
  • 75 mq
  • 1 bagno
VENDITA 20
€ 165.000
Appartamento in Vendita a Cabiate (Como)
  • Trilocale
  • 87 mq
  • 1 bagno
VENDITA 11
€ 175.000
Appartamento in Vendita a Cabiate (Como)
  • Quadrilocale
  • 100 mq
  • 1 bagno
VENDITA 20
€ 289.000
Appartamento in Vendita a Cabiate (Como)
  • Trilocale
  • 102 mq
  • 2 bagni
VENDITA 20
€ 250.600
Appartamento in Vendita a Cabiate (Como)
  • Trilocale
  • 90 mq
  • 2 bagni
VENDITA 20
€ 385.450
Appartamento in Vendita a Cabiate (Como)
  • Trilocale
  • 135 mq
  • 2 bagni
VENDITA 20
€ 404.600
Appartamento in Vendita a Cabiate (Como)
  • Quadrilocale
  • 145 mq
  • 2 bagni