TRILOCALE CON TERRAZZINO E DOPPI SERVIZ VENDITA

Via Giacomo Matteotti 13 - Cabiate (Como)
€ 309.000
  • Trilocale
  • 101 mq
  • 2 bagni

Appartamento in Vendita a Cabiate

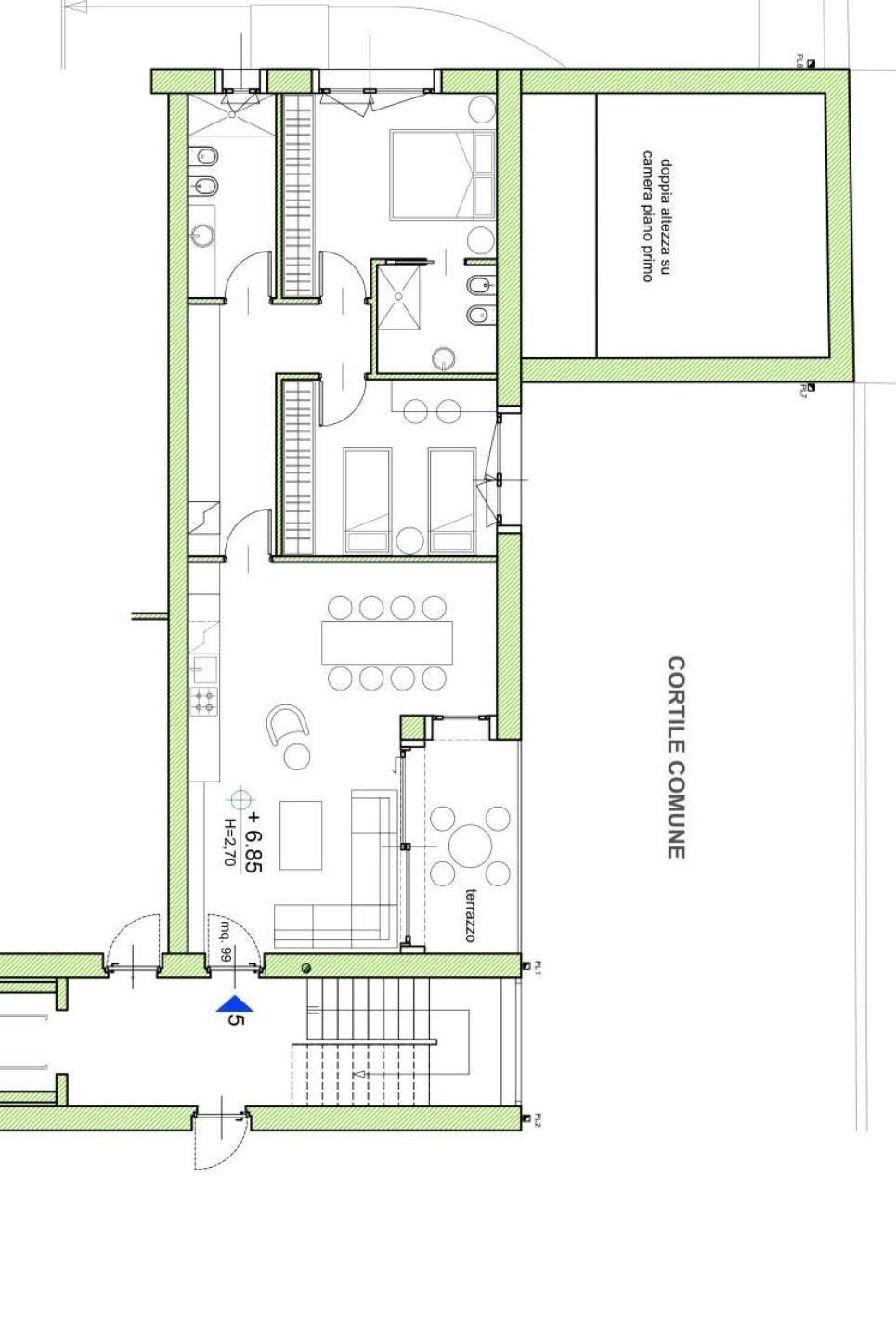
IN PRONTA CONSEGNA ( APPARTAMENTO N. 5 – SECONDO PIANO )

Zona centrale di Cabiate, comoda con i principali servizi e la stazione ferroviaria.
In palazzina dallo stile moderno, di sole 8 unità abitative ben rifinita in classe energetica A, vi proponiamo varie tipologie di appartamenti tutti dotati di ampi spazi e molto luminosi.

L’ appartamento n. 5 sito al primo secondo è di circa 99 metri ed è composto soggiorno con cucina a vista con uscita sul terrazzino di circa 9 metri, due comode camere e due bagni.

Riscaldamento a pavimento con termostato separato per ogni locale e scalda-salviette nei bagni, predisposizione aria condizionata e impianto di allarme. Infissi triplo vetro in alluminio con tapparelle elettriche.
Impianto fotovoltaico per parti comuni del condominio.
Possibilità acquisto box e cantine
Internamente le soluzioni sono personalizzabili nella scelta dei pavimenti / rivestimenti e porte da ampio capitolato.

In Pronta consegna

Rif. 66

( VISITA IL NOSTRO SITO www.edilhouse.net )

In agenzia tante altre proposte per trovare la tua casa! Abbiamo anche il mutuo su misura per te! Se invece hai bisogno di vendere casa tua al miglior prezzo e nel minor tempo chiamaci allo 031.751441 per una VALUTAZIONE GRATUITA e una consulenza professionale. Ci trovi a Mariano Comense (CO), Via VI Novembre 11, visita il nostro sito www.edilhouse.net , mandaci una e-mail all’indirizzo: mediatore.rusconi@libero.it

Tutto il nostro staff è tua completa disposizione
La nostra agenzia immobiliare tratta la vendita e gli affitti di ogni tipo di immobile: appartamenti ,ville, uffici e capannoni a Mariano Comense e in provincia di Como , Monza e Brianza

( Edil House 031 / 751441 ---- www.edilhouse.net )

LEGGI TUTTO

CONDIVIDI SUI SOCIAL

DATI PRINCIPALI

Riferimento
132020
Contratto
Vendita
Tipologia
Appartamento
Superficie
101 mq
Locali
3
Camere da letto
2
Cucina
A vista
Bagni
2
Piano
2 °
Totale piani
4

CARATTERISTICHE

Ascensore

COSTI

Prezzo
€ 309.000,00
Spese condominiali
€ 1,00 / mese

EFFICIENZA ENERGETICA

Stato
Nuovo/In costruzione
Anno costruzione
2023
Riscaldamento
Autonomo
Climatizzazione
Predisposizione
Classe energetica
A4
IPE
29,27 kWh/m²a
29,27 kWh/m²a | Classe energetica A4

A4

A3

A2

A1

B

C

D

E

F

G

MAPPA

Cabiate comune della Bassa Brianza Comasca

ANNUNCI SIMILI

VENDITA 20
€ 289.000
Appartamento in Vendita a Cabiate (Como)
  • Trilocale
  • 102 mq
  • 2 bagni
VENDITA 20
€ 250.600
Appartamento in Vendita a Cabiate (Como)
  • Trilocale
  • 90 mq
  • 2 bagni
VENDITA 20
€ 385.450
Appartamento in Vendita a Cabiate (Como)
  • Trilocale
  • 135 mq
  • 2 bagni
VENDITA 20
€ 404.600
Appartamento in Vendita a Cabiate (Como)
  • Quadrilocale
  • 145 mq
  • 2 bagni
VENDITA 20
€ 424.600
Appartamento in Vendita a Cabiate (Como)
  • Più di 5 locali
  • 142 mq
  • 2 bagni
VENDITA 20
€ 220.000
Appartamento in Vendita a Cabiate (Como)
  • Quadrilocale
  • 156 mq
  • 2 bagni
VENDITA 20
€ 293.000
Appartamento in Vendita a Cabiate (Como)
  • Trilocale
  • 95 mq
  • 2 bagni
VENDITA 20
€ 429.500
Appartamento in Vendita a Cabiate (Como)
  • Quadrilocale
  • 144 mq
  • 2 bagni
VENDITA 20
€ 293.000
Appartamento in Vendita a Cabiate (Como)
  • Trilocale
  • 95 mq
  • 2 bagni
VENDITA 20
€ 424.500
Appartamento in Vendita a Cabiate (Como)
  • Quadrilocale
  • 144 mq
  • 2 bagni
VENDITA 20
€ 309.000
Appartamento in Vendita a Cabiate (Como)
  • Trilocale
  • 103 mq
  • 2 bagni