• Monolocale
  • 45 mq
  • 1 bagno

Appartamento in Vendita a Sesto San Giovanni

Rif 1/135 L'Abbruzzi Gruppo Immobiliare propone in Sesto San Giovanni, viale Marelli, a soli mt.300 dalla fermata della metropolitana, ottima soluzione per INVESTIMENTO. appartamento a reddito, attualmente occupato con contratto di locazione scadente nel 2027, con canone mensile di euro 730 più spese.
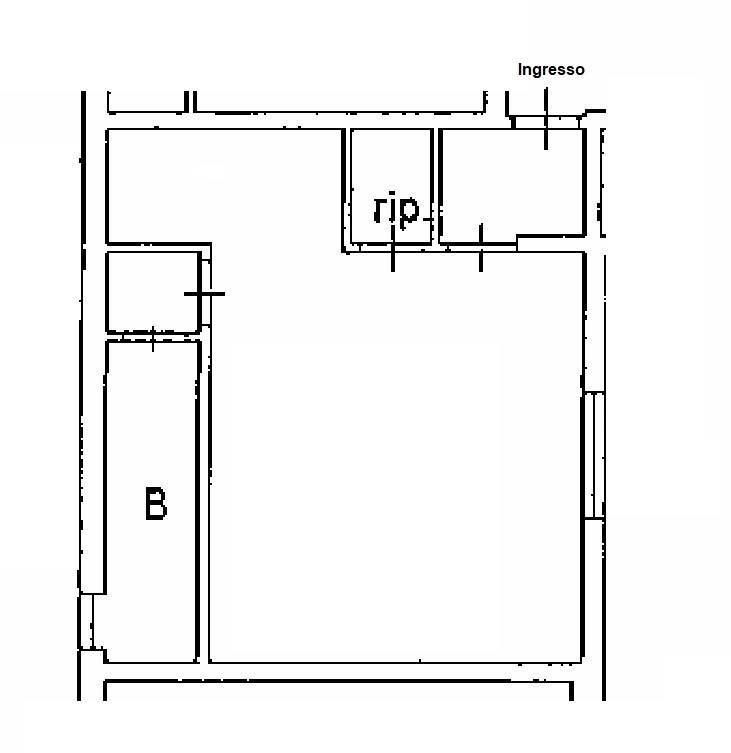
L'immobile sito al piano terra nell'interno cortile di una palazzina d'epoca di mq.45 è così composto: ingresso, zona giorno/notte con angolo cottura, antibagno, bagno e ripostiglio.

Al prezzo di Euro 130.000,00

Rifiniture:
pavimentazione in parquet e ceramica in bagno, serramenti in alluminio doppio vetro, riscaldamento autonomo ed aria condizionata.

L'ABBRUZZI GRUPPO IMMOBILIARE di
Alessandro L'Abbruzzi
Via Fiorani, 119 Sesto S. Giovanni (MI)
tel. 02.26265020 fax 02/24308819
info@labbruzzi.it www.labbruzzi.it

GESTIAMO LA VENDITA E LA LOCAZIONE DEI VOSTRI IMMOBILI COMMERCIALI, RESIDENZIALI E INDUSTRIALI!
Classe Energetica: F

LEGGI TUTTO

CONDIVIDI SUI SOCIAL

DATI PRINCIPALI

Riferimento
118575
Contratto
Vendita
Tipologia
Appartamento
Superficie
45 mq
Locali
1
Cucina
Angolo cottura
Bagni
1
Piano
Piano terra
Totale piani
1

CARATTERISTICHE

Ascensore

COSTI

Prezzo
€ 130.000,00
Spese condominiali
€ 125,00 / mese

EFFICIENZA ENERGETICA

Stato
Ristrutturato
Anno costruzione
1960
Riscaldamento
Autonomo
Classe energetica
F
IPE
215,31 kWh/m²a

A+

A

B

C

D

E

215,31 kWh/m²a | Classe energetica F

F

G

MAPPA

Sesto San Giovanni comune della Brianza Milanese

ANNUNCI SIMILI

VENDITA 16
€ 240.000
Appartamento in Vendita a Sesto San Giovanni (Milano)
  • Trilocale
  • 95 mq
  • 1 bagno
VENDITA 20
€ 340.000
Appartamento in Vendita a Sesto San Giovanni (Milano)
  • Trilocale
  • 130 mq
  • 2 bagni
VENDITA 20
€ 339.000
Appartamento in Vendita a Sesto San Giovanni (Milano)
  • Trilocale
  • 113 mq
  • 2 bagni
VENDITA 20
€ 365.000
Appartamento in Vendita a Sesto San Giovanni (Milano)
  • Quadrilocale
  • 125 mq
  • 2 bagni
VENDITA 15
€ 355.000
Appartamento in Vendita a Sesto San Giovanni (Milano)
  • Trilocale
  • 90 mq
  • 2 bagni
VENDITA 20
€ 175.000
Appartamento in Vendita a Sesto San Giovanni (Milano)
  • Bilocale
  • 62 mq
  • 1 bagno