LISSONE: VIA FERMI - OTTIMO APPARTAMENTO A REDDITO VENDITA

Via Enrico Fermi 32 - Lissone (Monza e Brianza)
€ 160.000
  • Trilocale
  • 90 mq
  • 2 bagni

Appartamento in Vendita a Lissone

LISSONE: Zona Pacinotti. Via Fermi n. 32.
Nella ricercata e servita zona Pacinotti proponiamo in mini palazzina splendido appartamento AFFITTATO.
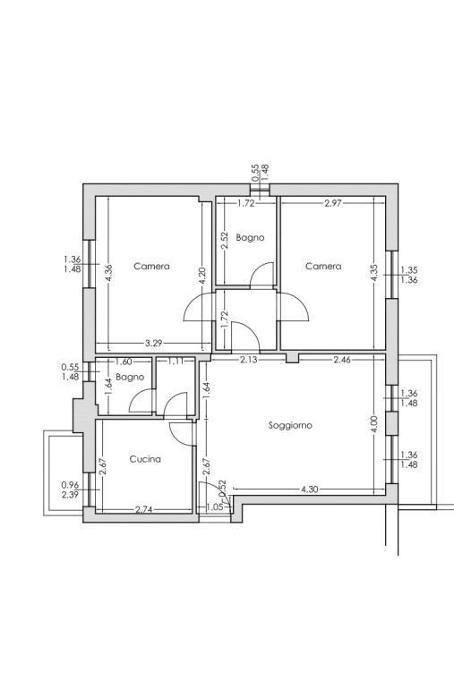
L’abitazione al piano primo ha una tripla esposizione ed è composta da soggiorno con balcone, cucina semi abitabile con balcone, due camere e due bagni.
L’appartamento verte in buone condizioni generali ed è rifinito con pavimentazione in ceramica e in parquet.
I serramenti sono in legno con doppi vetri.
Il riscaldamento è di tipo autonomo con caldaia e distribuzione a radiatori.
La palazzina è stata oggetto di recentissimo rifacimento della facciata.
Lo stabile si trova a pochi passi da tutti i servizi, dalle scuole ai negozi di piccola e media distribuzione.
Il Parco di Monza, l’Ospedale di Monza e il Polo Universitario Bicocca distaccamento di Monza sono a breve distanza.
L’unità è dotata di cantina e ha la possibilità di un box singolo.

Ottima opportunità! PREZZO €. 160.000,00 oltre a box €. 14.000,00
L'appartamento viene venduto AFFITTATO con contratto scadente nel 2030.

CANONE 2026 €. 10.800,00 con redditività del 6,20%
CANONE ANNUALITA' SUCCESSIVE €. 13.200,00 con redditività del 7,58%

CLASSE ENERGETICA F EPglnren 159,12 kwh/mqa EPglren 0,986 kwh/mqa
Prestazioni fabbricato inverno bassa - estate media

PARADISO CASE LISSONE
Lissone via Loreto 72
Telefono 039 462509 Cellulare 335 5342734
Web www.paradisocaselissone.it Mail paradisocase.lissone@gmail.com

LEGGI TUTTO

CONDIVIDI SUI SOCIAL

DATI PRINCIPALI

Riferimento
133204
Contratto
Vendita
Tipologia
Appartamento
Superficie
90 mq
Locali
3
Camere da letto
2
Cucina
Abitabile
Bagni
2
Piano
1 °
Totale piani
3
Box/Posto auto
Singolo

CARATTERISTICHE

Ascensore

COSTI

Prezzo
€ 160.000,00
Spese condominiali
€ 125,00 / mese

EFFICIENZA ENERGETICA

Stato
Abitabile
Anno costruzione
1984
Riscaldamento
Autonomo
Classe energetica
F
IPE
159,12 kWh/m²a

A+

A

B

C

D

E

159,12 kWh/m²a | Classe energetica F

F

G

MAPPA

Lissone comune della Bassa Brianza Centrale Sud

ANNUNCI SIMILI

VENDITA 20
€ 399.000
Appartamento in Vendita a Lissone (Monza e Brianza)
  • Quadrilocale
  • 209 mq
  • 3 bagni
VENDITA 20
€ 220.000
Appartamento in Vendita a Lissone (Monza e Brianza)
  • Trilocale
  • 91 mq
  • 2 bagni