APPARTAMENTO ZONA PACINOTTI PARZIALMENTE RISTRUTTURATO VENDITA

Via Lazzaro Spallanzani 44 - Lissone (Monza e Brianza)
€ 169.000
  • Trilocale
  • 78 mq
  • 1 bagno

Appartamento in Vendita a Lissone

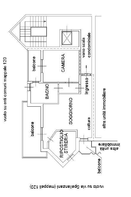
Lissone, nel cuore della zona Pacinotti, a pochi passi da tutti i servizi di prima necessità e con le scuole raggiungibili a piedi, proponiamo appartamento di 3 locali al Piano Terzo di una palazzina di metà anni '90, con Ascensore e così composto: Ingresso, Soggiorno con angolo cottura, Locale Ripostiglio/Stireria finestrato (attualmente adibito a Cameretta), Balcone principale di generose dimensioni e secondo Balconcino di servizio nella zona cottura, completano la Zona Giorno. Zona notte composta da Disimpegno, Camera Matrimoniale con terzo Balcone e Bagno.

L’appartamento dispone di infissi in alluminio doppio vetro con tapparelle elettriche, impianto di condizionamento in zona giorno e camera matrimoniale ) ed impianto d'allarme.
Riscaldamento Autonomo.

Negli ultimi anni sono state apportate migliorie all’appartamento, tra le quali:
- Videocitofoni recentemente installati
- Zona notte totalmente ristrutturata 2 anni fa
- Bagno completamente ristrutturato, impiantistica compresa
- Elettrificazione di tutte le tapparelle
- Installazione impianto domotica

NO Cantina e Box di pertinenza.
Possibilità di Box in affitto all'interno del Condominio.

Possibilità parte del mobilio e aria condizionata con prezzo da quantificare a parte.

Libero a 6 mesi dal Preliminare.

Nonostante il nostro impegno nel fornire tutte le informazioni relative all’immobile in modo dettagliato e preciso, potrebbe capitare qualche piccola imprecisione. Per questo motivo, questa pubblicità ha carattere puramente indicativo e non costituisce in nessun caso un vincolo contrattuale.

LEGGI TUTTO

CONDIVIDI SUI SOCIAL

DATI PRINCIPALI

Riferimento
129536
Contratto
Vendita
Tipologia
Appartamento
Superficie
78 mq
Locali
3
Camere da letto
1
Cucina
A vista
Bagni
1
Piano
3 °
Totale piani
4

CARATTERISTICHE

Ascensore

COSTI

Prezzo
€ 169.000,00
Spese condominiali
€ 125,00 / mese

EFFICIENZA ENERGETICA

Stato
Abitabile
Anno costruzione
1995
Riscaldamento
Autonomo
Climatizzazione
Si
Classe energetica
D
IPE
160,93 kWh/m²a

A+

A

B

C

160,93 kWh/m²a | Classe energetica D

D

E

F

G

MAPPA

Lissone comune della Bassa Brianza Centrale Sud

ANNUNCI SIMILI

VENDITA 20
€ 220.000
Appartamento in Vendita a Lissone (Monza e Brianza)
  • Trilocale
  • 91 mq
  • 2 bagni