Interessante trilocale ad.ze centro e stazione VENDITA

Via Solferino 8 - Monza (Monza e Brianza)
€ 245.000
  • Trilocale
  • 115 mq
  • 1 bagno

Appartamento in Vendita a Monza

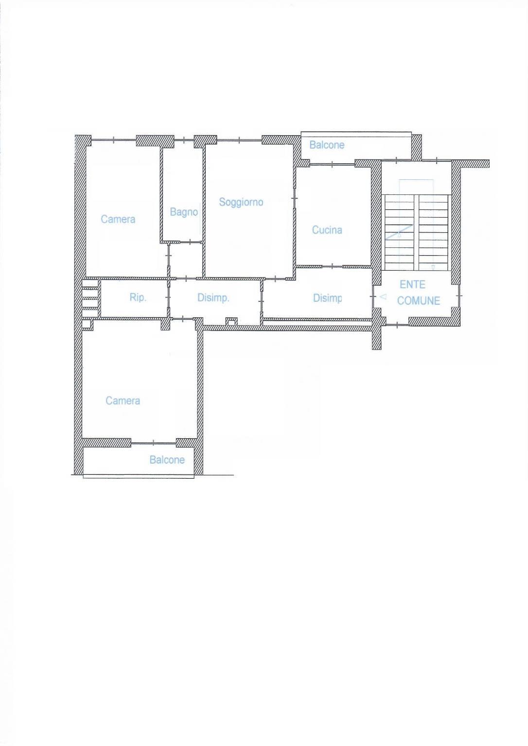
Via Solferino, quartiere San Carlo, in posizione tranquilla ma allo stesso tempo comoda per le strade di collegamento, a pochi passi dalla stazione e dal centro città, servita da mezzi di trasporto, scuole ed attività di vario genere proponiamo ampia soluzione di tre locali con interessante possibilità di trasformazione in quadrilocale. Attualmente l'immobile è composto da: ingresso nel disimpegno, cucina abitabile con balcone, soggiorno, corridoio che accompagna alla zona notte con due ampie camere (una dotata di balcone), servizio finestrato e comodo ripostiglio. Porta blindata, pavimentazione in ceramica, laminato di parquet in camera matrimoniale, riscaldamento autonomo. Completano la proprietà la cantina e la possibilità di acquisto del vano autorimessa posto al piano terreno dello stabile ad € 30.000,00. Soluzione ideale per chi cerca la comodità del centro città e la vicinanza delle strade di collegamento e della stazione.

LEGGI TUTTO

CONDIVIDI SUI SOCIAL

DATI PRINCIPALI

Riferimento
131947
Contratto
Vendita
Tipologia
Appartamento
Superficie
115 mq
Locali
3
Camere da letto
2
Cucina
Abitabile
Bagni
1
Piano
1 °
Totale piani
3
Box/Posto auto
Singolo

CARATTERISTICHE

Ascensore

COSTI

Prezzo
€ 245.000,00
Spese condominiali
€ 160,00 / mese

EFFICIENZA ENERGETICA

Stato
Da ristrutturare
Anno costruzione
1950
Riscaldamento
Autonomo
Classe energetica
E
IPE
130,03 kWh/m²a

A+

A

B

C

D

130,03 kWh/m²a | Classe energetica E

E

F

G

MAPPA

Monza comune della Bassa Brianza Centrale Sud

ANNUNCI SIMILI

VENDITA 20
€ 190.000
Appartamento in Vendita a Monza (Monza e Brianza)
  • Trilocale
  • 90 mq
  • 1 bagno
VENDITA 20
€ 318.000
Appartamento in Vendita a Monza (Monza e Brianza)
  • Quadrilocale
  • 102 mq
  • 2 bagni
VENDITA 20
€ 385.000
Appartamento in Vendita a Monza (Monza e Brianza)
  • Trilocale
  • 125 mq
  • 2 bagni