MONZA - SAN CARLO/FS: ampio quadrilocale di 146 mq VENDITA

Piazza Generale Armando Diaz 1 - Monza (Monza e Brianza)
€ 340.000
  • Quadrilocale
  • 146 mq
  • 2 bagni

Appartamento in Vendita a Monza

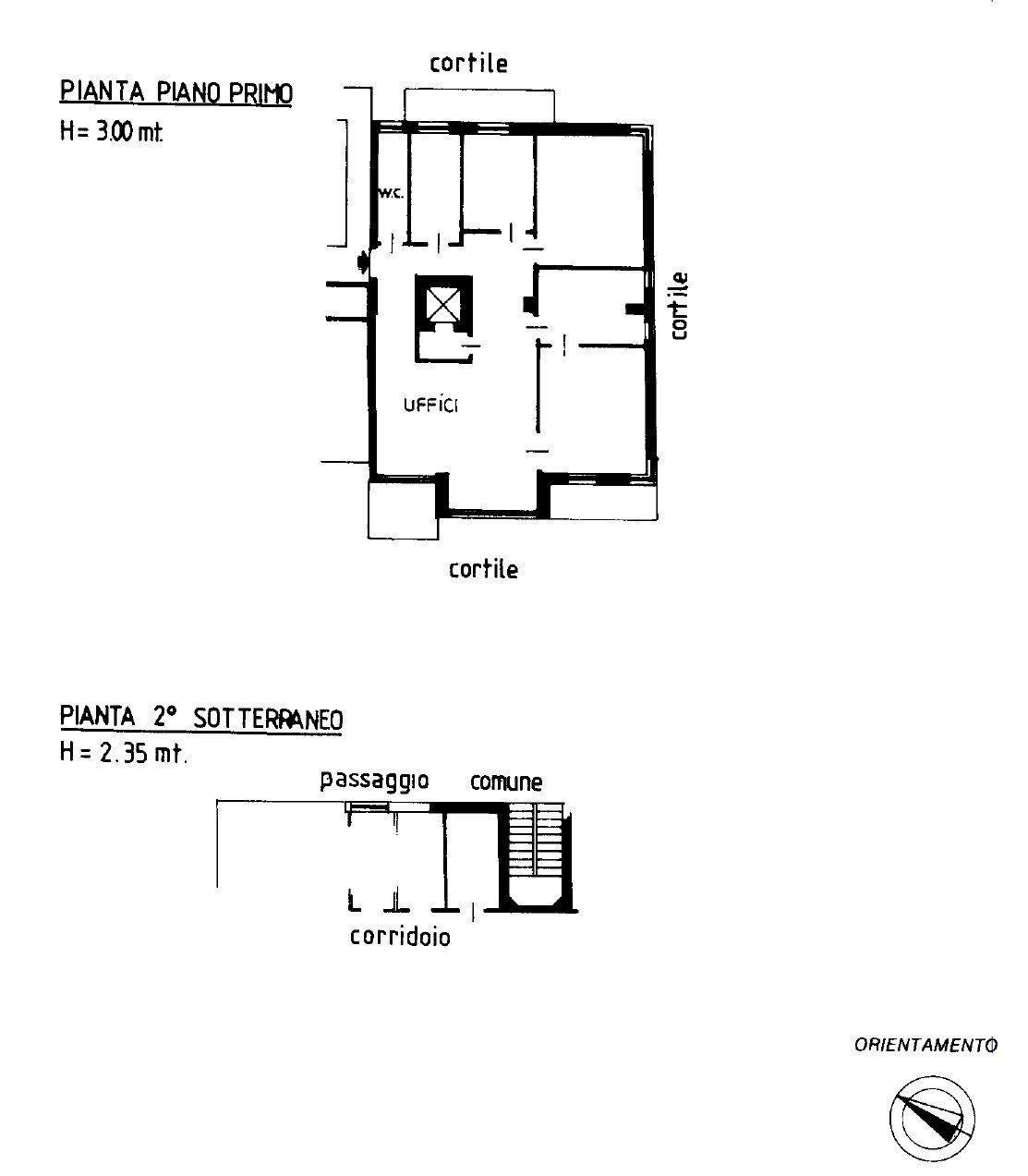
MONZA - SAN CARLO: in uno stabile signorile in PIAZZA DIAZ 1, ROYAL IMMOBILI & INVESTIMENTI propone un elegante immobile uso ufficio di 146 mq trasformabile in un QUADRILOCALE con doppi servizi.
L'immobile è inserito al primo piano di un contesto condominiale degli anni '70 dotato di portineria full time e doppio ascensore.
Con una ristrutturazione si può ottenere un immobile con doppio ingresso, grande cucina abitabile con balcone, salone con terrazzino, tre camere da letto (di cui 2 matrimoniali) e doppi servizi entrambi finestrati.
Internamente al momento presenta pavimenti in legno posato su marmo, serramenti PVC - doppio vetri, impianto di aria condizionata, tapparelle elettriche e porta blindata.
Completa la proprietà una cantina di pertinenza.
Rappresenta la soluzione ideale per chi cerca un immobile di ampia metratura ed ampi spazi, molto luminoso con tripla esposizione, ampiamente personalizzabile ed in un quartiere privilegiato per la vicinanza alla stazione FS ed al centro storico.
LIBERO SUBITO.

LEGGI TUTTO

CONDIVIDI SUI SOCIAL

DATI PRINCIPALI

Riferimento
131964
Contratto
Vendita
Tipologia
Appartamento
Superficie
146 mq
Locali
4
Camere da letto
3
Cucina
Abitabile
Bagni
2
Piano
1 °
Totale piani
6

CARATTERISTICHE

Ascensore

COSTI

Prezzo
€ 340.000,00
Spese condominiali
€ 670,00 / mese

EFFICIENZA ENERGETICA

Stato
Da ristrutturare
Anno costruzione
1970
Riscaldamento
Centralizzato
Climatizzazione
Si
Classe energetica
G
IPE
270,03 kWh/m²a

A+

A

B

C

D

E

F

270,03 kWh/m²a | Classe energetica G

G

MAPPA

Monza comune della Bassa Brianza Centrale Sud

ANNUNCI SIMILI

VENDITA 20
€ 549.000
Appartamento in Vendita a Monza, Zona Centro Storico
  • Più di 5 locali
  • 193 mq
  • 2 bagni
VENDITA 20
€ 420.000
Appartamento in Vendita a Monza, Zona Centro Storico
  • Quadrilocale
  • 140 mq
  • 1 bagno
VENDITA 20
€ 318.000
Appartamento in Vendita a Monza (Monza e Brianza)
  • Quadrilocale
  • 102 mq
  • 2 bagni
VENDITA 20
€ 480.000
Appartamento in Vendita a Monza, Zona Centro Storico
  • Quadrilocale
  • 116 mq
  • 2 bagni
VENDITA 20
€ 480.000
Appartamento in Vendita a Monza, Zona Centro Storico
  • Più di 5 locali
  • 172 mq
  • 2 bagni
VENDITA 20
€ 515.000
Appartamento in Vendita a Monza, Zona San Biagio
  • Più di 5 locali
  • 160 mq
  • 2 bagni