€ 380.000
  • Più di 5 locali
  • 168 mq
  • 2 bagni

Appartamento in Vendita a Seveso

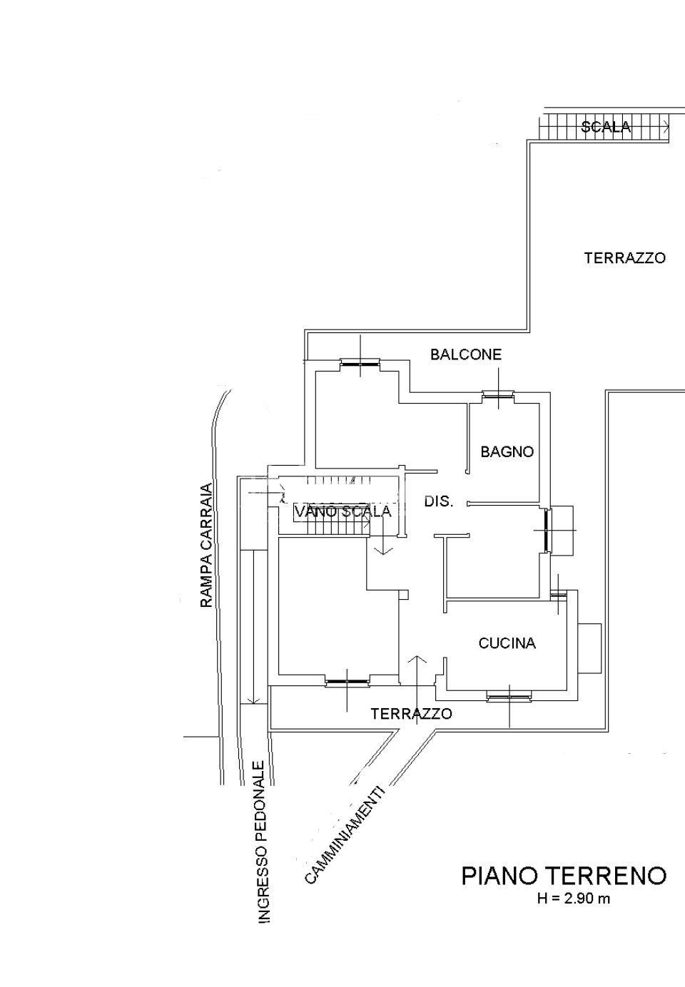
Rif: V0243 - si propone in vendita Due porzioni di villa situate nella tranquilla e verdeggiante zona residenziale dell’Altopiano di Seveso, ideali per chi cerca comfort, indipendenza e ampi spazi.

Ogni unità, una al piano terra e una al piano primo, si sviluppa su una superficie generosa di 80 mq, con tagli funzionali e ambienti ben distribuiti. Entrambe le porzioni sono composte da:

Ampia zona giorno con soggiorno, cucina e salotto separabili o open space, perfetti per momenti di convivialità;
Due camere matrimoniali spaziose, ideali per famiglie o per chi desidera uno studio o stanza ospiti;
Bagno finestrato, comodo e ben rifinito.
La porzione al piano terra è arricchita da un giardino privato, perfetto per chi ama vivere all’aperto o desidera uno spazio verde riservato da 1000 mq

La porzione al piano primo gode invece di un terrazzo di ben 30 mq, ideale per cene estive, zona relax o area giochi.

Entrambe le porzioni di villa presentano alcuni lavori di ristrutturazione da considerare, soprattutto a livello di finiture e impianti, ma si trovano in condizioni comunque abitabili e utilizzabili sin da subito.

Attualmente, gli immobili sono venduti a reddito, già locati con regolare contratto, rappresentando così un’interessante opportunità di investimento per chi desidera una rendita immediata.

Soluzioni ideali sia per famiglie che per investitori, inserite in un contesto residenziale riservato e ben servito nella zona dell’Altopiano di Seveso.

LEGGI TUTTO

CONDIVIDI SUI SOCIAL

DATI PRINCIPALI

Riferimento
127425
Contratto
Vendita
Tipologia
Appartamento
Superficie
168 mq
Locali
Più di 5
Camere da letto
2
Cucina
Abitabile
Bagni
2
Piano
Piano terra
Totale piani
2
Box/Posto auto
Doppio

CARATTERISTICHE

Ascensore

COSTI

Prezzo
€ 380.000,00

EFFICIENZA ENERGETICA

Stato
Da ristrutturare
Anno costruzione
1980
Riscaldamento
Autonomo
Classe energetica
F
IPE
247,75 kWh/m²a

A+

A

B

C

D

E

247,75 kWh/m²a | Classe energetica F

F

G

MAPPA

Seveso comune della Bassa Brianza Occidentale

ANNUNCI SIMILI

VENDITA 20
€ 370.000
Appartamento in Vendita a Cesano Maderno (Monza e Brianza)
  • Più di 5 locali
  • 240 mq
  • 3 bagni
VENDITA 15
€ 199.000
Appartamento in Vendita a Bovisio Masciago (Monza e Brianza)
  • Più di 5 locali
  • 170 mq
  • 2 bagni
VENDITA 20
€ 550.000
Appartamento in Vendita a Seregno (Monza e Brianza)
  • Più di 5 locali
  • 194 mq
  • 2 bagni
VENDITA 20
€ 380.000
Appartamento in Vendita a Seregno (Monza e Brianza)
  • Più di 5 locali
  • 211 mq
  • 3 bagni
VENDITA 20
€ 750.000
Appartamento in Vendita a Varedo (Monza e Brianza)
  • Più di 5 locali
  • 450 mq
  • 4 bagni