€ 392.000
  • Trilocale
  • 115 mq
  • 2 bagni

Appartamento in Vendita a Seregno

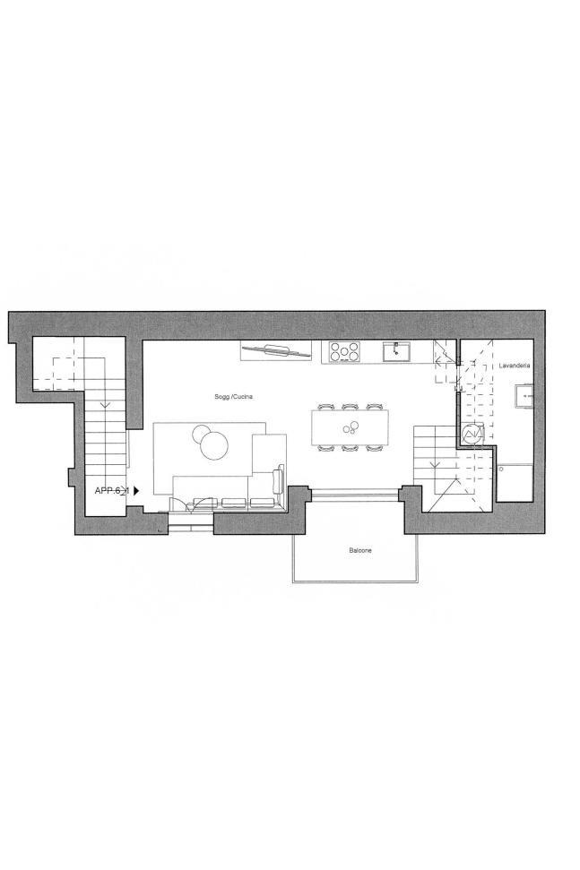
Centro. Vendita ad imposta di registro. "Residenza Sciesa 24". In contesto di nove famiglie, appartamento di mq. 115 ca. disposto su due livelli. Al piano primo, ingresso, soggiorno con cucina a vista, bagno, balcone - al secondo piano, 2 camere, bagno, 2 balconi. Possibilità posto auto € 15.000,00. Completamente ristrutturato. Facciata ad intonaco con isolamento termico a cappotto. Riscaldamento con pannelli radianti a pavimento. Serramenti in alluminio/legno con doppi vetri. Oscuramento garantito da avvolgibili in plastica pesante motorizzati. Porta primo ingresso blindata. Porte interne in legno a battente. Pavimentazione in ceramica nella zona giorno e parquet essenza Rovere nella zona notte. Sanitari sospesi Ideal Standard con miscelatori. Impianto videocitofonico. Predisposizione impianto climatizzazione. Predisposizione impianto allarme volumetrico e perimetrale. Impianto fotovoltaico per le parti comuni. Ascensore. Classe A. (I render degli interni sono indicativi).

La presente scheda non costituisce forma di contratto, le informazioni qui contenute (comprese alcune immagini) sono da ritenersi del tutto indicative e non potranno essere utilizzate come parte integrante in un eventuale contratto di vendita o locazione della proprietà. La presente non vincola in alcun modo le parti.

LEGGI TUTTO

CONDIVIDI SUI SOCIAL

DATI PRINCIPALI

Riferimento
126719
Contratto
Vendita
Tipologia
Appartamento
Superficie
115 mq
Locali
3
Camere da letto
2
Cucina
A vista
Bagni
2
Piano
1 °
Totale piani
3
Box/Posto auto
Singolo

CARATTERISTICHE

Ascensore

COSTI

Prezzo
€ 392.000,00
Spese condominiali
€ 20,00 / mese

EFFICIENZA ENERGETICA

Stato
Ristrutturato
Anno costruzione
2024
Riscaldamento
Autonomo
Climatizzazione
Predisposizione
Classe energetica
A2
IPE
351,00 kWh/m²a

A4

A3

351,00 kWh/m²a | Classe energetica A2

A2

A1

B

C

D

E

F

G

MAPPA

Seregno comune della Bassa Brianza Centrale Sud

ANNUNCI SIMILI

VENDITA 20
€ 479.000
Appartamento in Vendita a Seregno (Monza e Brianza)
  • Quadrilocale
  • 140 mq
  • 2 bagni
VENDITA 20
€ 380.000
Appartamento in Vendita a Seregno (Monza e Brianza)
  • Più di 5 locali
  • 211 mq
  • 3 bagni
VENDITA 20
€ 380.000
Appartamento in Vendita a Seregno (Monza e Brianza)
  • Più di 5 locali
  • 235 mq
  • 3 bagni
VENDITA 20
€ 145.000
Appartamento in Vendita a Seregno (Monza e Brianza)
  • Trilocale
  • 90 mq
  • 1 bagno
VENDITA 19
€ 395.000
Appartamento in Vendita a Seregno (Monza e Brianza)
  • Trilocale
  • 130 mq
  • 2 bagni
VENDITA 20
€ 280.000
Appartamento in Vendita a Seregno (Monza e Brianza)
  • Trilocale
  • 105 mq
  • 2 bagni
VENDITA 20
€ 550.000
Appartamento in Vendita a Seregno (Monza e Brianza)
  • Più di 5 locali
  • 194 mq
  • 2 bagni