CANZO PROSSIMA REALIZZAZIONE IN A3 VENDITA

VIA MARTIRI DELLA LIBERTA' - Canzo (Como)
€ 282.000
  • Trilocale
  • 85 mq
  • 2 bagni

Appartamento in Vendita a Canzo

Scopri il tuo nuovo appartamento a Canzo!
In prossima realizzazione, proponiamo eleganti appartamenti con finiture di alta qualità e possibilità di personalizzazione.
Tutti gli appartamenti sono dotati di:
- Terrazzo o giardino
- Autorimessa
- Classe energetica A3 (valore di progetto 33,87 kWh/m2a)
- Serramenti in PVC a taglio termico con tapparelle motorizzate in alluminio coibentato
- Portoncino blindato antisfondamento
- Impianto di riscaldamento a pavimento con pompa di calore aria/acqua
- Predisposizione per la climatizzazione estiva con raffrescamento a pavimento
- Impianto fotovoltaico
- Impianto di trattamento aria (VMC)
- Impianto induzione per uso domestico
- Impianto videocitofono
- Predisposizione impianto allarme
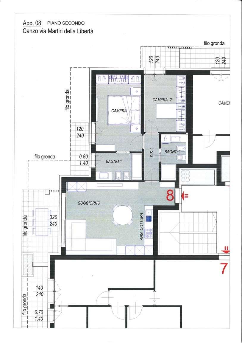
TIPOLOGIA TRILOCALE PIANO SECONDO 08: ingresso, soggiorno con cucina a vista e uscita sul terrazzo, disimpegno notte, camera matrimoniale con bagno privato, seconda camera, secondo bagno, 2 balconi sulle camere. Autorimessa. Prezzo: €. 282.000,00 + iva.
Contattaci per scoprire di più e prenotare la tua visita, non perderti questa occasione!

LEGGI TUTTO

CONDIVIDI SUI SOCIAL

DATI PRINCIPALI

Riferimento
131822
Contratto
Vendita
Tipologia
Appartamento
Superficie
85 mq
Locali
3
Camere da letto
2
Cucina
A vista
Bagni
2
Piano
2 °
Totale piani
2
Box/Posto auto
Singolo

CARATTERISTICHE

Ascensore

COSTI

Prezzo
€ 282.000,00

EFFICIENZA ENERGETICA

Classe energetica
A3
IPE
33,87 kWh/m²a

A4

33,87 kWh/m²a | Classe energetica A3

A3

A2

A1

B

C

D

E

F

G

MAPPA

Canzo comune dell'Alta Brianza Comasca

ANNUNCI SIMILI

VENDITA 8
€ 282.000
Appartamento in Vendita a Canzo (Como)
  • Trilocale
  • 85 mq
  • 2 bagni
VENDITA 6
€ 275.000
Appartamento in Vendita a Canzo (Como)
  • Trilocale
  • 82 mq
  • 2 bagni
VENDITA 8
€ 282.000
Appartamento in Vendita a Canzo (Como)
  • Trilocale
  • 85 mq
  • 2 bagni
VENDITA 18
€ 108.000
Appartamento in Vendita a Canzo (Como)
  • Trilocale
  • 105 mq
  • 1 bagno
VENDITA 16
€ 55.000
Appartamento in Vendita a Canzo (Como)
  • Trilocale
  • 75 mq
  • 1 bagno
VENDITA 20
€ 60.000
Appartamento in Vendita a Canzo (Como)
  • Trilocale
  • 61 mq
  • 1 bagno
VENDITA 20
€ 163.000
Appartamento in Vendita a Canzo (Como)
  • Trilocale
  • 100 mq
  • 1 bagno
VENDITA 20
€ 195.000
Appartamento in Vendita a Canzo (Como)
  • Trilocale
  • 115 mq
  • 2 bagni
VENDITA 20
€ 95.000
Appartamento in Vendita a Canzo (Como)
  • Più di 5 locali
  • 218 mq
  • 3 bagni
VENDITA 20
€ 25.000
Appartamento in Vendita a Canzo (Como)
  • Più di 5 locali
  • 114 mq
  • 2 bagni