CABIATE CENTRO BILOCALE RISTRUTTURATO SENZA SPESE VENDITA

Via Filippo Corridoni - Cabiate (Como)
€ 99.000
  • Bilocale
  • 57 mq
  • 1 bagno

Appartamento in Vendita a Cabiate

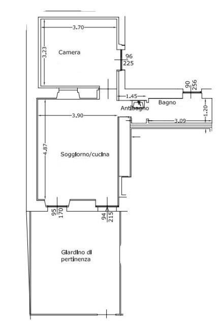
**Appartamento in Vendita a Cabiate - Rif. Cabiate b. 11 a-b** Scopri questo incantevole appartamento situato nel cuore di Cabiate, in una zona centrale e comoda, a pochi passi da tutti i servizi essenziali e dalla stazione Trenord. Questo immobile, parte di una palazzina di sole quattro unità abitative, offre un'ottima opportunità per chi cerca un investimento senza spese condominiali. L'appartamento, di circa 57 mq, è attualmente in fase di totale ristrutturazione e si trova al piano terra con ingresso indipendente. La disposizione degli spazi è perfetta: un luminoso soggiorno con cucina a vista, un disimpegno, un antibagno, un bagno e una spaziosa camera matrimoniale. Inoltre, il giardinetto esterno rappresenta un angolo di relax ideale per godere delle belle giornate. Le finiture sono di alta qualità, con infissi a doppio vetro, tapparelle elettriche e un impianto elettrico domotico che garantisce comfort e sicurezza. La pavimentazione in gres effetto parquet dona un tocco di eleganza all'ambiente. Non manca l'aria condizionata per affrontare le calde estati. Questo appartamento è venduto locato, rendendolo perfetto per un investimento immediato. Il posto auto comune è incluso nel prezzo di 125.000 euro. Non perdere l'occasione di visitarlo! Classe energetica B€ 99.000 (Rif. CABIATE B.11 A-B) (altre proposte su www.riboldicase.it)

LEGGI TUTTO

CONDIVIDI SUI SOCIAL

DATI PRINCIPALI

Riferimento
128582
Contratto
Vendita
Tipologia
Appartamento
Superficie
57 mq
Locali
2
Camere da letto
1
Cucina
A vista
Bagni
1
Piano
Piano terra
Totale piani
1
Box/Posto auto
Singolo

CARATTERISTICHE

Ascensore

COSTI

Prezzo
€ 99.000,00

EFFICIENZA ENERGETICA

Stato
Ristrutturato
Anno costruzione
2023
Riscaldamento
Autonomo
Climatizzazione
Si
Classe energetica
B
IPE
351,00 kWh/m²a

A+

A

351,00 kWh/m²a | Classe energetica B

B

C

D

E

F

G

MAPPA

Cabiate comune della Bassa Brianza Comasca

ANNUNCI SIMILI

VENDITA 9
€ 135.000
Appartamento in Vendita a Cabiate (Como)
  • Trilocale
  • 75 mq
  • 1 bagno
VENDITA 20
€ 289.000
Appartamento in Vendita a Cabiate (Como)
  • Trilocale
  • 102 mq
  • 2 bagni
VENDITA 20
€ 250.600
Appartamento in Vendita a Cabiate (Como)
  • Trilocale
  • 90 mq
  • 2 bagni
VENDITA 20
€ 385.450
Appartamento in Vendita a Cabiate (Como)
  • Trilocale
  • 135 mq
  • 2 bagni
VENDITA 20
€ 404.600
Appartamento in Vendita a Cabiate (Como)
  • Quadrilocale
  • 145 mq
  • 2 bagni
VENDITA 11
€ 175.000
Appartamento in Vendita a Cabiate (Como)
  • Quadrilocale
  • 100 mq
  • 1 bagno
VENDITA 20
€ 309.000
Appartamento in Vendita a Cabiate (Como)
  • Trilocale
  • 103 mq
  • 2 bagni
VENDITA 20
€ 314.000
Appartamento in Vendita a Cabiate (Como)
  • Trilocale
  • 103 mq
  • 2 bagni
VENDITA 20
€ 293.000
Appartamento in Vendita a Cabiate (Como)
  • Trilocale
  • 95 mq
  • 2 bagni
VENDITA 20
€ 429.500
Appartamento in Vendita a Cabiate (Como)
  • Quadrilocale
  • 144 mq
  • 2 bagni
VENDITA 20
€ 293.000
Appartamento in Vendita a Cabiate (Como)
  • Trilocale
  • 95 mq
  • 2 bagni