Bilocale con posto auto VENDITA

Via dei Tre Re - Verderio (Lecco)
€ 139.000
  • Bilocale
  • 70 mq
  • 1 bagno

Appartamento in Vendita a Verderio

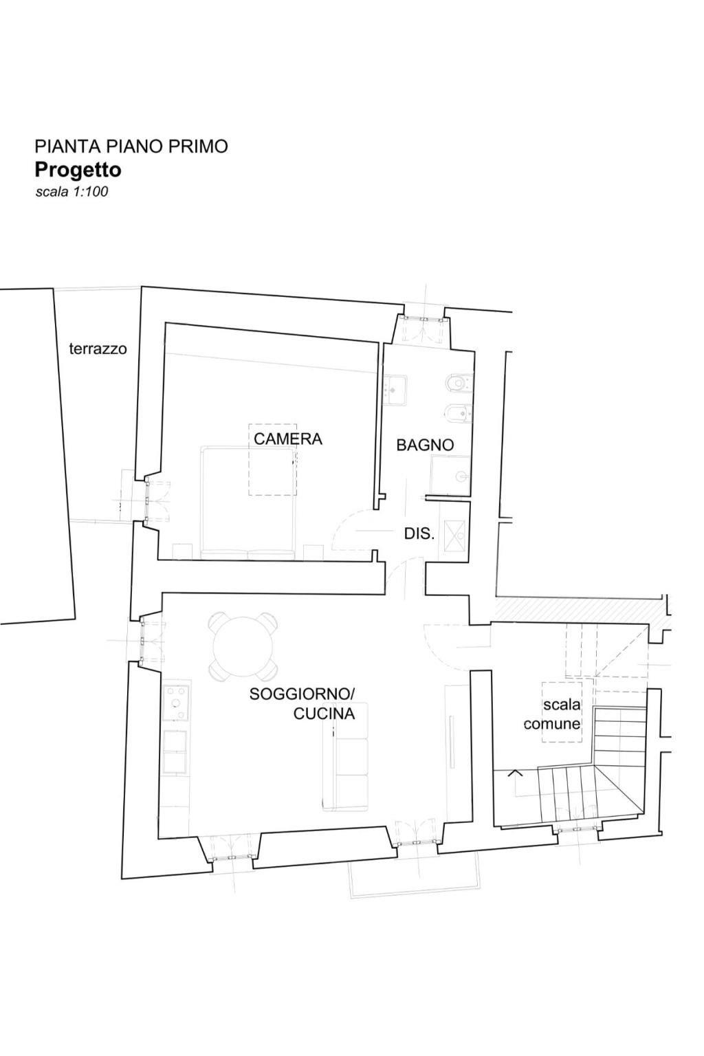
In corte storica in corso di riqualificazione, proponiamo bilocale a piano primo, ideale per chi cerca un ambiente moderno e funzionale senza rinunciare al fascino del passato.
La soluzione, frutto di una ristrutturazione attenta e curata, si distingue per spazi luminosi e ben distribuiti.

L'appartamento è così composto: l'ingresso si apre sul soggiorno/cucina esposto a sud e servito da balcone.
Il disimpegno conduce alla camera matrimoniale, con accesso al terrazzino, e al bagno, elegante e funzionale.
Il tetto, con legno a vista e lucernari, ha una doppia altezza e permette la realizzazione di un soppalco.

L'immobile è stato progettato per offrire il massimo comfort ed efficienza energetica.
E' infatti dotato di infissi in legno a teglio termico, impianto di riscaldamento con pompa di calore; aria condizionata, impianto fotovoltaico e antifurto sono predisposti.
Posto auto scoperto in vendita a 6.000 euro.
Finiture personalizzabili.
Consegna: Estate 2026.
E' ubicato nel cuore del centro storico di Verderio, con la possibilità di fruire facilmente di tutti i principali servizi.

Per maggiori informazioni: Tel. 039 511409 - www.ametiacase.it per tante altre soluzioni con un click.
Il presente annuncio ha valore indicativo e non costituisce elemento contrattuale.
Le fotografie interne sono esemplificative e si riferiscono ad altro appartamento simile ultimato.

LEGGI TUTTO

CONDIVIDI SUI SOCIAL

DATI PRINCIPALI

Riferimento
131586
Contratto
Vendita
Tipologia
Appartamento
Superficie
70 mq
Locali
2
Camere da letto
1
Cucina
Angolo cottura
Bagni
1
Piano
1 °
Totale piani
2
Box/Posto auto
Singolo

CARATTERISTICHE

Ascensore

COSTI

Prezzo
€ 139.000,00

EFFICIENZA ENERGETICA

Stato
Ristrutturato
Anno costruzione
2025
Riscaldamento
Autonomo
Climatizzazione
Predisposizione
Classe energetica
B
IPE
351,00 kWh/m²a

A+

A

351,00 kWh/m²a | Classe energetica B

B

C

D

E

F

G

MAPPA

Verderio comune della Brianza Meratese

ANNUNCI SIMILI

VENDITA 9
€ 165.000
Appartamento in Vendita a Verderio (Lecco)
  • Trilocale
  • 78 mq
  • 1 bagno
VENDITA 19
€ 99.000
Appartamento in Vendita a Verderio (Lecco)
  • Bilocale
  • 56 mq
  • 2 bagni