Bilocale con giardino vicino alla stazione di Desio VENDITA

Via Umberto Tagliabue 68 - Desio (Monza e Brianza)
€ 178.000
  • Bilocale
  • 56 mq
  • 1 bagno

Appartamento in Vendita a Desio

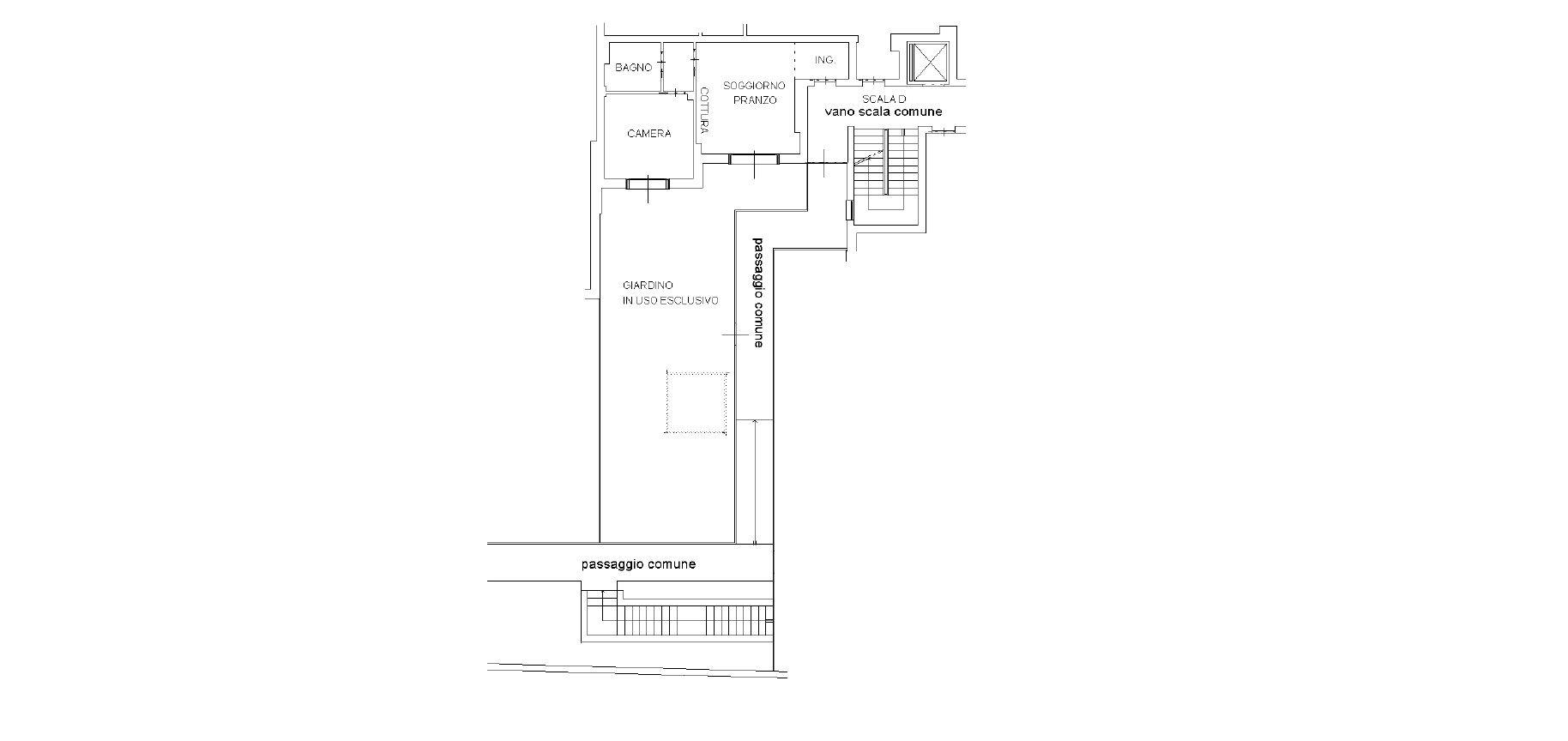
Proponiamo in vendita a Desio, in contesto residenziale tranquillo e ben servito, grazioso bilocale al piano terra con ampio giardino privato.

L’appartamento, di circa 50 mq, è composto da soggiorno con cucina a vista, bagno e camera matrimoniale. Sia la zona giorno che la camera da letto affacciano direttamente sul giardino di proprietà di circa 60 mq, ideale per chi desidera uno spazio verde riservato.

L’immobile si trova in una palazzina di recente costruzione (2015) e si presenta in buone condizioni, pronto per essere abitato.

Completano la soluzione un box singolo e una cantina al piano interrato.

La posizione è particolarmente strategica: l’appartamento è comodo con tutti i principali servizi e, soprattutto, con la stazione ferroviaria di Desio, facilmente raggiungibile, rendendolo ideale anche per chi si sposta quotidianamente.

Ottima soluzione per single, coppie o come investimento.

LEGGI TUTTO

CONDIVIDI SUI SOCIAL

DATI PRINCIPALI

Riferimento
129032
Contratto
Vendita
Tipologia
Appartamento
Superficie
56 mq
Locali
2
Camere da letto
1
Cucina
Angolo cottura
Bagni
1
Piano
Piano terra
Totale piani
2
Box/Posto auto
Singolo

CARATTERISTICHE

Ascensore

COSTI

Prezzo
€ 178.000,00
Spese condominiali
€ 120,00 / mese

EFFICIENZA ENERGETICA

Stato
Abitabile
Anno costruzione
2015
Riscaldamento
Autonomo
Climatizzazione
Si
Classe energetica
A
IPE
25,67 kWh/m²a

A+

25,67 kWh/m²a | Classe energetica A

A

B

C

D

E

F

G

MAPPA

Desio comune della Bassa Brianza Centrale Sud