Desio - Due con giardino privato in classe energetica B VENDITA

Via Umberto Tagliabue 68 - Desio (Monza e Brianza)
Trattativa Riservata
  • Bilocale
  • 74 mq
  • 1 bagno

Appartamento in Vendita a Desio

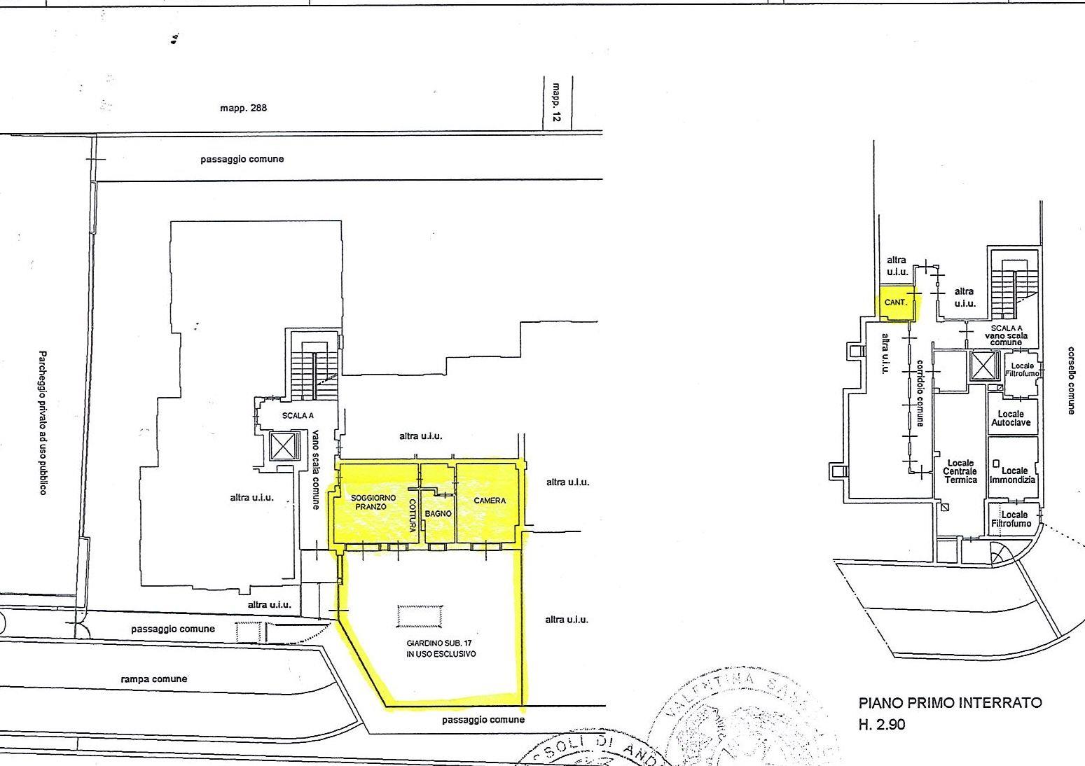
VENDUTO - In gradevole e recente contesto edificato nel 2012, situato in posizione strategica a pochi minuti dal centro cittadino e dalla stazione ferroviaria, con collegamenti rapidi per Milano e Hinterland, proponiamo in vendita elegante appartamento di due locali al piano terra con giardino privato, in classe energetica B e in ottime condizioni manutentive.

L’abitazione si compone di ingresso, luminoso soggiorno con cucina a vista dotato di due ampie portefinestre con accesso diretto al giardino privato (una doppia e una tripla), disimpegno, servizio (finestrato) e camera matrimoniale anch’essa con ampia portafinestra (doppia) e uscita sul giardino. Il giardino privato rappresenta un valore aggiunto importante, ideale per momenti di relax all’aperto o per chi desidera uno spazio verde riservato.

Completano la proprietà il vano cantina e l’ampia autorimessa singola, compresa nel prezzo.

L’immobile è dotato di riscaldamento a pavimento, impianto di ventilazione meccanica, predisposizione per l’impianto di climatizzazione, predisposizione domotica e predisposizione per impianto d’allarme.

Soluzione ideale per chi è alla ricerca di comfort moderno, efficienza energetica e comodità nei collegamenti.

Per informazioni e appuntamenti:
Tiziano Riva
Cell. 335 1453992
info@immobiliare-arcore.it
www.immobiliarearcore.it

LEGGI TUTTO

CONDIVIDI SUI SOCIAL

DATI PRINCIPALI

Riferimento
130539
Contratto
Vendita
Tipologia
Appartamento
Superficie
74 mq
Locali
2
Camere da letto
1
Cucina
A vista
Bagni
1
Piano
Piano terra
Totale piani
2
Box/Posto auto
Singolo

CARATTERISTICHE

Ascensore

COSTI

Prezzo
Trattativa Riservata
Spese condominiali
€ 50,00 / mese

EFFICIENZA ENERGETICA

Stato
Ristrutturato
Anno costruzione
2012
Riscaldamento
Centralizzato
Climatizzazione
Predisposizione
Classe energetica
B
IPE
66,52 kWh/m²a

A+

A

66,52 kWh/m²a | Classe energetica B

B

C

D

E

F

G

MAPPA

Desio comune della Bassa Brianza Centrale Sud

ANNUNCI SIMILI

VENDITA 20
€ 150.000
Appartamento in Vendita a Desio (Monza e Brianza)
  • Trilocale
  • 95 mq
  • 1 bagno
VENDITA 14
€ 199.000
Appartamento in Vendita a Desio (Monza e Brianza)
  • Trilocale
  • 109 mq
  • 2 bagni