APPARTAMENTO LOFT OPEN - SPACE VENDITA

Via Lanzi - Cornate d'Adda (Monza e Brianza)
€ 155.000
  • Trilocale
  • 126 mq
  • 2 bagni

Appartamento in Vendita a Cornate d'Adda

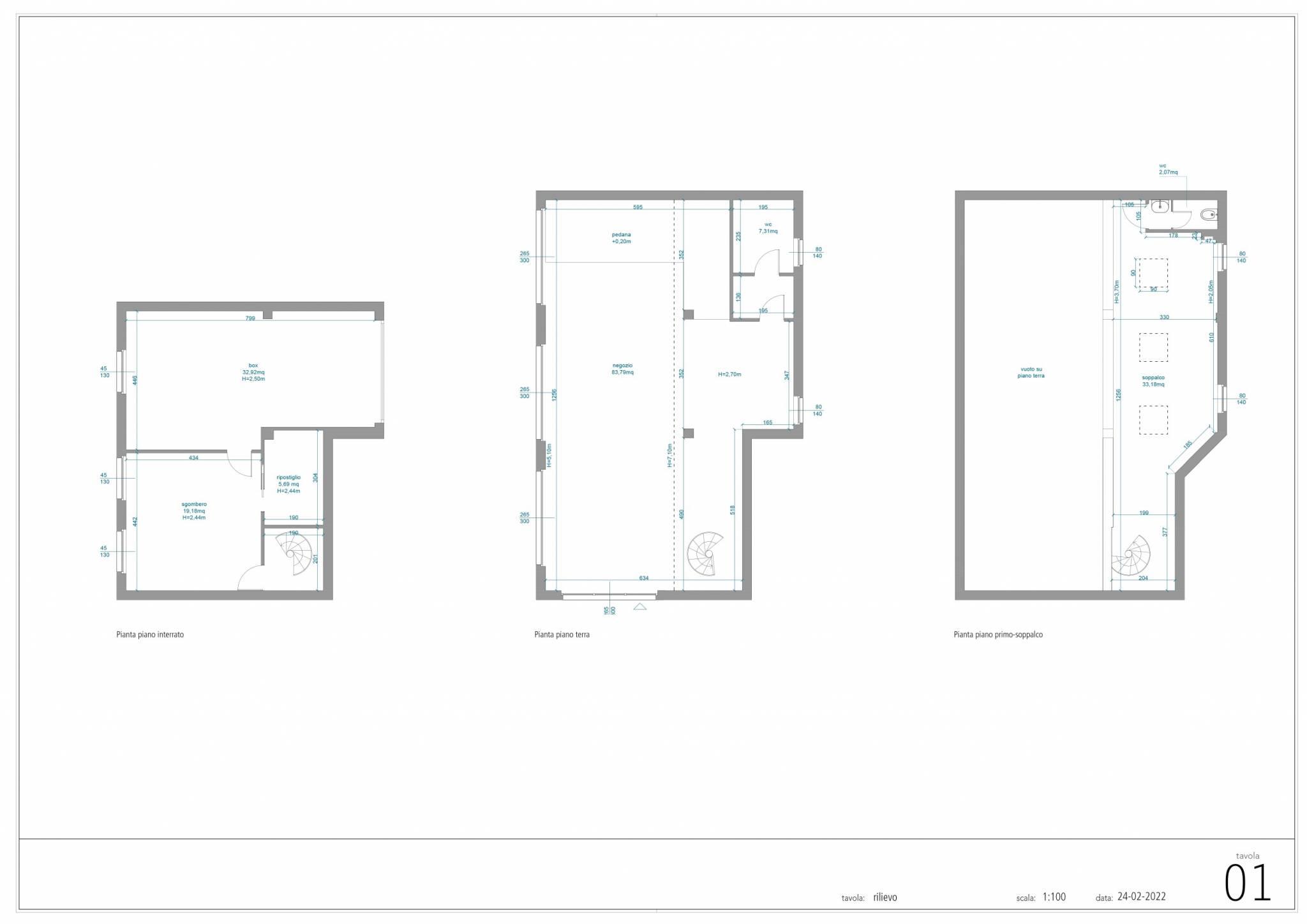
In centro paese, comodo con i servizi di primaria necessità, le scuole e i mezzi di trasporto,
proponiamo in vendita ottima soluzione di loft open-space unica nel suo genere, attualmente ad uso commerciale con possibilità di cambio destinazione d’uso in residenziale e così composta: ingresso indipendente al piano terra di 90mq ca., molto luminoso grazie alle 4 vetrate, dove poter creare un’enorme zona giorno, con antibagno e bagno camera da letto. Per mezzo di scala raggiungiamo il piano primo dove troviamo un soppalco di 40mq ca da adibire a seconda camera e un ulteriore bagno. Al piano interrato abbiamo una taverna con ripostiglio e un box da 32mq con doppio accesso carraio, sia sul fronte che sul retro.

Le immagini sono a scopo illustrativo come ipotesi di progetto; in base alle esigenze del committente si potrà creare una soluzione ad hoc da un nostro professionista che potrà seguirvi nella realizzazione dell’intervento; esiste la possibilità di creare un terrazzino interno alla superficie dell’immobile previa autorizzazione condominiale.

Assolutamente da vedere!

LEGGI TUTTO

CONDIVIDI SUI SOCIAL

DATI PRINCIPALI

Riferimento
130780
Contratto
Vendita
Tipologia
Appartamento
Superficie
126 mq
Locali
3
Camere da letto
2
Cucina
A vista
Bagni
2
Piano
1 °
Totale piani
3
Box/Posto auto
Doppio

CARATTERISTICHE

Ascensore

COSTI

Prezzo
€ 155.000,00
Spese condominiali
€ 45,00 / mese

EFFICIENZA ENERGETICA

Stato
Abitabile
Anno costruzione
1985
Riscaldamento
Autonomo
Climatizzazione
Si
Classe energetica
F
IPE
57,53 kWh/m²a

A+

A

B

C

D

E

57,53 kWh/m²a | Classe energetica F

F

G

MAPPA

Cornate d'Adda comune della Bassa Brianza Orientale o Vimercatese

ANNUNCI SIMILI

VENDITA 20
€ 175.000
Appartamento in Vendita a Cornate d'Adda (Monza e Brianza)
  • Trilocale
  • 125 mq
  • 2 bagni
VENDITA 17
€ 130.000
Appartamento in Vendita a Cornate d'Adda (Monza e Brianza)
  • Trilocale
  • 105 mq
  • 1 bagno