QUADRILOCALE SU DUE PIANI A CORNATE D'ADDA VENDITA

Via Martiri delle Foibe 22 - Cornate d'Adda (Monza e Brianza)
€ 279.000
  • Quadrilocale
  • 215 mq
  • 2 bagni

Appartamento in Vendita a Cornate d'Adda

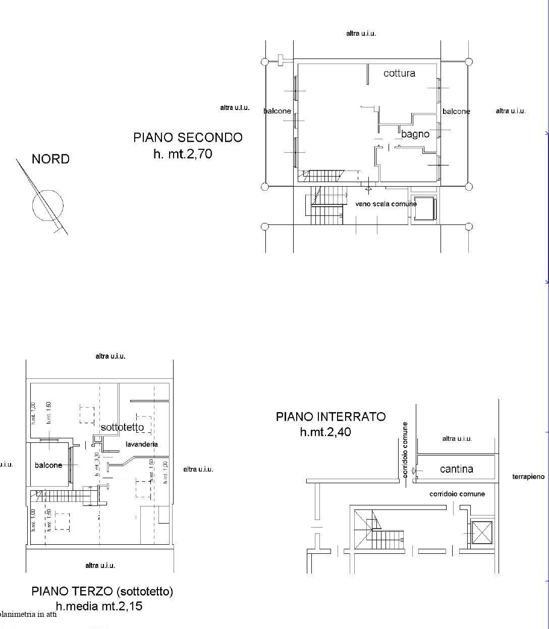
A Cornate d'Adda, in zona tranquilla fuori dal caos cittadino, proponiamo quadrilocale su due livelli in mini palazzine di sole 6 unità a scala, così composto: al piano secondo ingresso in ampio soggiorno con predisposizione canna fumaria per camino e con accesso al balcone, ampia cucina abitabile con un secondo balcone, ripostiglio, bagno con doccia e cameretta/studio con accesso al balcone.
Al piano sottotetto: due camere da letto, studio, bagno con doccia idromassaggio e grande vasca da bagno, terrazzino di 6 mq.
Dotazioni dell'immobile:
- Parquet in tutta la casa
- Riscaldamento a pavimento con caldaia a condensazione
- Tende da sole
- Grate di sicurezza
- Impianto di condizionamento
- Velux elettriche con tapparella oscurante esterna
- Zone di riscaldamento divise tra piano secondo e sottotetto
- Predisposizione canna fumaria per caminetto
- Videocitofono
- Ascensore (da piano box)
Completa la proprietà il box doppio in larghezza con doppia basculante di mq. 40.
Libero al rogito.
Ottima posizione, nelle vicinanze di importanti centri commerciali, supermercati, scuole, farmacia.

LEGGI TUTTO

CONDIVIDI SUI SOCIAL

DATI PRINCIPALI

Riferimento
129359
Contratto
Vendita
Tipologia
Appartamento
Superficie
215 mq
Locali
4
Camere da letto
3
Cucina
Abitabile
Bagni
2
Piano
2 °
Totale piani
2
Box/Posto auto
Doppio

CARATTERISTICHE

Ascensore

COSTI

Prezzo
€ 279.000,00
Spese condominiali
€ 180,00 / mese

EFFICIENZA ENERGETICA

Stato
Abitabile
Anno costruzione
2010
Riscaldamento
Autonomo
Climatizzazione
Si
Classe energetica
C
IPE
95,00 kWh/m²a

A+

A

B

95,00 kWh/m²a | Classe energetica C

C

D

E

F

G

MAPPA

Cornate d'Adda comune della Bassa Brianza Orientale o Vimercatese

ANNUNCI SIMILI

VENDITA 20
€ 238.000
Appartamento in Vendita a Busnago (Monza e Brianza)
  • Quadrilocale
  • 139 mq
  • 2 bagni
VENDITA 20
€ 187.000
Appartamento in Vendita a Aicurzio (Monza e Brianza)
  • Più di 5 locali
  • 152 mq
  • 2 bagni