Appartamento di tre locali a Bernareggio VENDITA

Via Dante Alighieri 30 - Bernareggio (Monza e Brianza)
€ 83.000
  • Trilocale
  • 83 mq
  • 2 bagni

Appartamento in Vendita a Bernareggio

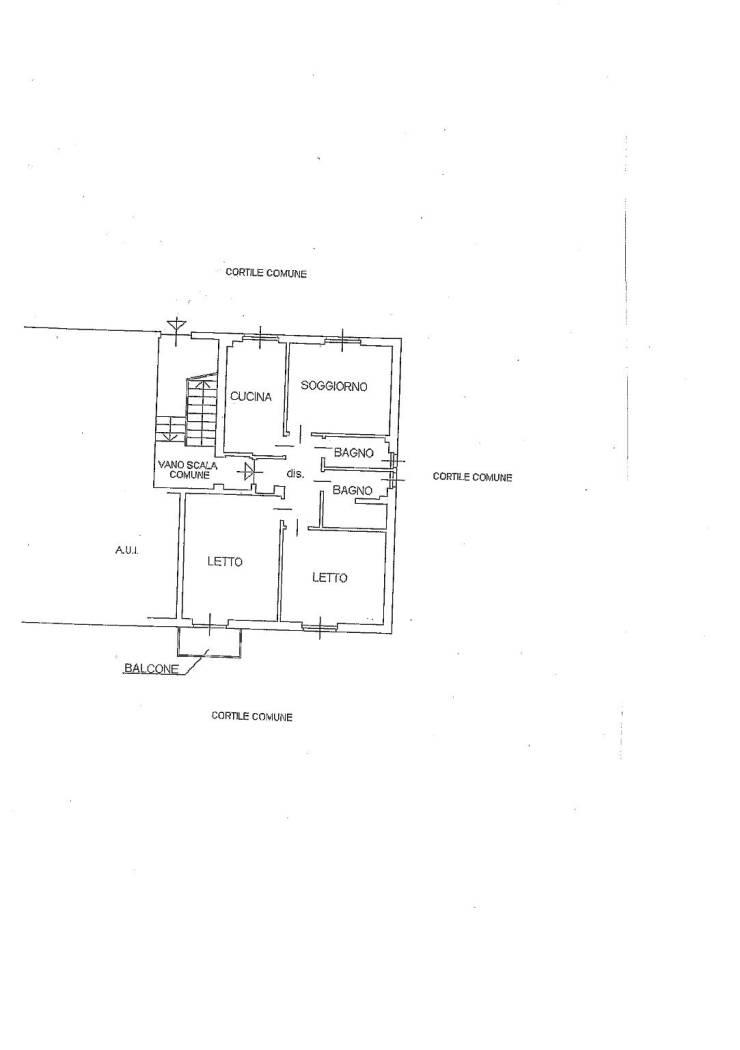
Bernareggio, a pochi passi dal centro, in una zona servita, proponiamo in vendita questo appartamento di 76 metri quadrati al piano rialzato di una palazzina costruita nel 1957 e di poche unità abitative. La palazzina si trova in una posizione strategica, comoda per raggiungere tutti i servizi e i principali mezzi di trasporto. Negli anni 80 la fusione di due bilocali ha permesso di trasformare questo appartamento in un tre locali con doppi servizi e una tripla esposizione; gli impianti: elettrico, sanitario e idrico sono del periodo di costruzione; le piastrelle della zona giorno sono in ceramica anni 80, gli infissi sono in alluminio. L'immobile si presenta in ordine allo stato originario e libero a rogito.
La cucina abitabile e spaziosa si affaccia sul cortile interno così come il soggiorno. La zona notte è composta da due camere da letto matrimoniali di cui una con balcone, due bagni: uno con vasca, il secondo con doccia, entrambi finestrati per garantire una buona aerazione. L'appartamento è dotato di un impianto di riscaldamento centralizzato a metano con radiatori in ghisa; Le spese di riscaldamento sono contabilizzate in base al proprio consumo, derivante dal contacalorie e termovalvole poste su ogni calorifero.
Completano la proprietà due cantine una di mq. 16 e la seconda di mq. 9. All'interno del cortile delimitato da un cancello elettrico sono presentì dei posti auto scoperti non di proprietà, utili per parcheggiare comodamente la propria vettura. Le spese condominiali ammontano a circa 150 euro al mese e comprendono le spese ordinarie di acqua, luce delle parti comuni, pulizia, amministratore, manutenzione delle parti comuni.
Ideale per chi cerca una casa funzionale, luminosa e in una posizione comoda, vicina a scuole, palestre, supermercato, posta e negozi.
Non esitate a contattarci per maggiori informazioni o per prenotare una visita.

LEGGI TUTTO

CONDIVIDI SUI SOCIAL

DATI PRINCIPALI

Riferimento
128737
Contratto
Vendita
Tipologia
Appartamento
Superficie
83 mq
Locali
3
Camere da letto
2
Cucina
Abitabile
Bagni
2
Piano
Piano rialzato
Totale piani
3
Box/Posto auto
Doppio

CARATTERISTICHE

Ascensore

COSTI

Prezzo
€ 83.000,00
Spese condominiali
€ 150,00 / mese

EFFICIENZA ENERGETICA

Stato
Da ristrutturare
Anno costruzione
1957
Riscaldamento
Centralizzato
Classe energetica
F
IPE
295,92 kWh/m²a

A+

A

B

C

D

E

295,92 kWh/m²a | Classe energetica F

F

G

MAPPA

Bernareggio comune della Bassa Brianza Orientale o Vimercatese

ANNUNCI SIMILI

VENDITA 20
€ 180.000
Appartamento in Vendita a Bernareggio (Monza e Brianza)
  • Trilocale
  • 95 mq
  • 2 bagni
VENDITA 20
€ 139.000
Appartamento in Vendita a Bernareggio (Monza e Brianza)
  • Trilocale
  • 98 mq
  • 1 bagno
VENDITA 20
€ 110.000
Appartamento in Vendita a Bernareggio (Monza e Brianza)
  • Trilocale
  • 85 mq
  • 1 bagno
VENDITA 20
€ 299.000
Appartamento in Vendita a Bernareggio (Monza e Brianza)
  • Quadrilocale
  • 182 mq
  • 2 bagni
VENDITA 15
€ 80.000
Appartamento in Vendita a Bernareggio (Monza e Brianza)
  • Trilocale
  • 74 mq
  • 1 bagno