Appartamento 3 locali doppi servizi con box VENDITA

Via San Bartolomeo 50 - Bernareggio (Monza e Brianza)
€ 120.000
  • Trilocale
  • 104 mq
  • 2 bagni

Appartamento in Vendita a Bernareggio

Appartamento 3 locali di 100 mq
In una tranquilla e caratteristica corte di Villanova, frazione di Bernareggio, proponiamo in vendita soluzione indipendente, ideale per famiglie o per chi cerca una casa con spazi flessibili e personalizzabili.

Cosi composto:
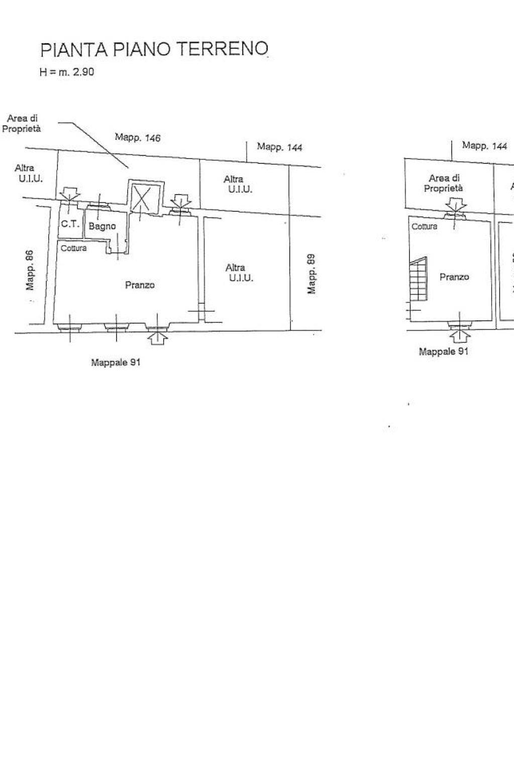
Piano terra(50 mq):
Ingresso
Soggiorno con cucina a vista
Bagno finestrato
Ascensore
Tramite un'ascensore privato si accede al Piano Primo (50 mq ) dove troviamo:
Disimpegno
Ripostiglio
Due camere da letto
Bagno
Balcone

L’abitazione negli anni è stata oggetto di vari lavori di ristrutturazione.
La caldaia a condensazione è stata sostituita nel 2025.

All'interno della corte è presente un box di 53 mq. da acquistare obbligatoriamente ad € 35.000, così composto:
ingresso su locale open-space completo di basculante automatizzata e scala interna in muratura, che collega al soprastante locale di 53 mq. anch'esso open-space, con possibilità di effettuare il cambio di destinazione d'uso e renderlo un ulteriore appartamento di 3 locali doppi servizi.

Soluzione ideale per investimento, famiglie o giovani coppie.

Senza spese condominiali.

Prezzo totale richiesto abitazione + box € 155.000

-Rif. 1575

LEGGI TUTTO

CONDIVIDI SUI SOCIAL

DATI PRINCIPALI

Riferimento
128648
Contratto
Vendita
Tipologia
Appartamento
Superficie
104 mq
Locali
3
Camere da letto
2
Cucina
A vista
Bagni
2
Piano
1 °
Totale piani
1
Box/Posto auto
Doppio

CARATTERISTICHE

Ascensore

COSTI

Prezzo
€ 120.000,00

EFFICIENZA ENERGETICA

Stato
Abitabile
Anno costruzione
1995
Riscaldamento
Autonomo
Classe energetica
F
IPE
305,00 kWh/m²a

A+

A

B

C

D

E

305,00 kWh/m²a | Classe energetica F

F

G

MAPPA

Bernareggio comune della Bassa Brianza Orientale o Vimercatese

ANNUNCI SIMILI

VENDITA
€ 165.000
Appartamento in Vendita a Bernareggio (Monza e Brianza)
  • Trilocale
  • 90 mq
  • 2 bagni
VENDITA 20
€ 165.000
Appartamento in Vendita a Bernareggio (Monza e Brianza)
  • Trilocale
  • 96 mq
  • 1 bagno