4 locali, ultimo piano con terrazzo VENDITA

via Fratelli Cervi, 47 - Trezzano Rosa (Milano)
€ 338.000
  • Quadrilocale
  • 180 mq
  • 3 bagni

Appartamento in Vendita a Trezzano Rosa

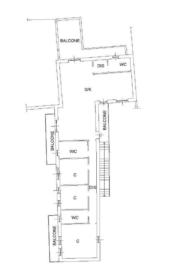
Ultimo piano con terrazzo! L'appartamento in vendita nel comune di Trezzano Rosa è una graziosa residenza con 4 locali, tre bagni e un terrazzo che si estende su una superficie di 168 mq oltre ai balconi. Ubicata in una zona tranquilla e ben servita, la proprietà offre spazi ampi e luminosi, perfetti per ospitare una famiglia numerosa o per chi desidera avere più spazio a disposizione. L'ingresso è indipendente dal piano terra con accesso a una corte privata e la scala privata conduce all'appartamento al primo e ultimo piano.

L'abitazione si presenta in ottime condizioni, con finiture di pregio e cura dei dettagli che conferiscono un'atmosfera accogliente e raffinata: gres porcellanato nel soggiorno, parquet nella zona notte, sanitari sospesi, soffitto con travi in ​​legno a vista, aria condizionata, antifurto, videocitofono, ecc...
Gli ambienti sono distribuiti in modo funzionale: la zona giorno è ampia e luminosa e vi è accesso al terrazzo, comodo per pranzi e cene all'aperto. L'ampia cucina è a vista e vi è anche una zona pranzo in prossimità del terrazzo. Nella zona giorno si trova il primo bagno. La zona notte è composta da 3 ampie e confortevoli camere da letto, altri due bagni (di cui uno adibito a lavanderia) e due balconi.

La classe energetica C garantisce un buon livello di efficienza e comfort abitativo, mentre il prezzo di 338.000 euro rappresenta un ottimo investimento per chi cerca un immobile di grandi dimensioni e di qualità a un prezzo accessibile.
Non mancano inoltre servizi e comodità nel comune di Trezzano Rosa, che rendono questo appartamento la scelta ideale per chi desidera vivere in un contesto tranquillo e ben collegato al resto della città.
Le spese condominiali rappresentano un grande vantaggio poiché ammontano a circa 2500 euro annui, che comprendono anche i consumi come il riscaldamento, l'acqua ecc.
Completa la proprietà un box doppio al piano interrato.
Consegna entro dicembre 2025

In riferimento al DPR 138/98 vi informiamo che la superficie catastale complessiva è di 180 mq

Rimani aggiornato e clicca Mi piace sulla nostra pagina Facebook!!
Case in vendita a Trezzano Rosa, quadrilocali, 4 vani.
Classe energetica C - ipe 102,01 kWh/m² anno

Rif. A3518, €338.000,00

LEGGI TUTTO

CONDIVIDI SUI SOCIAL

DATI PRINCIPALI

Riferimento
131232
Contratto
Vendita
Tipologia
Appartamento
Superficie
180 mq
Locali
4
Camere da letto
3
Cucina
Abitabile
Bagni
3
Piano
1 °
Totale piani
1
Box/Posto auto
Doppio

CARATTERISTICHE

Ascensore

COSTI

Prezzo
€ 338.000,00
Spese condominiali
€ 210,00 / mese

EFFICIENZA ENERGETICA

Stato
Ristrutturato
Anno costruzione
2012
Riscaldamento
Centralizzato
Climatizzazione
Si
Classe energetica
C
IPE
102,01 kWh/m²a

A+

A

B

102,01 kWh/m²a | Classe energetica C

C

D

E

F

G

MAPPA

Trezzano Rosa comune del Territorio Trezzese

ANNUNCI SIMILI

VENDITA 20
€ 260.000
Appartamento in Vendita a Basiano (Milano)
  • Quadrilocale
  • 155 mq
  • 2 bagni
VENDITA 20
€ 207.000
Appartamento in Vendita a Basiano (Milano)
  • Quadrilocale
  • 150 mq
  • 2 bagni
VENDITA 20
€ 700.000
Appartamento in Vendita a Vimodrone (Milano)
  • Più di 5 locali
  • 149 mq
  • 3 bagni
VENDITA 20
€ 250.000
Appartamento in Vendita a Cologno Monzese (Milano)
  • Quadrilocale
  • 120 mq
  • 2 bagni
VENDITA 20
€ 250.000
Appartamento in Vendita a Cologno Monzese (Milano)
  • Quadrilocale
  • 120 mq
  • 2 bagni
VENDITA 20
€ 337.000
Appartamento in Vendita a Vimodrone (Milano)
  • Più di 5 locali
  • 133 mq
  • 2 bagni