• Quadrilocale
  • 120 mq
  • 2 bagni

Appartamento in Vendita a Cologno Monzese

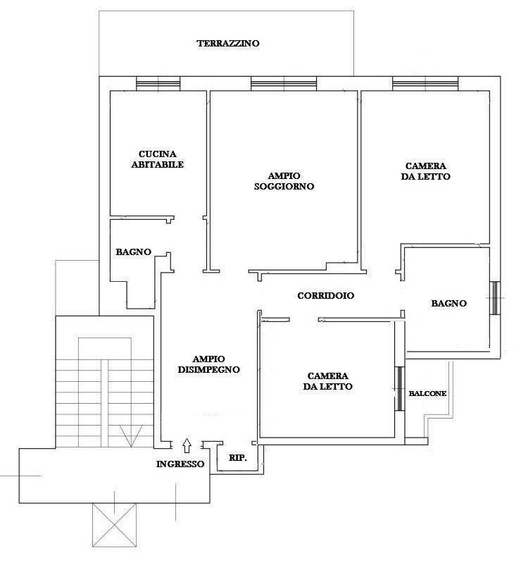
cologno monzese centro quartiere “ammiraglie”, a 5 minuti a piedi dalla metropolitana, vendesi ampio 3 locali con cantina e box (a parte) con reale possibilita’ di creare un comodo 4 locali (allegati 2 prospetti).

l’immobile e’ cosi suddiviso internamente:

zona giorno con ingresso, ampio disipegno con ripostiglio, bagno, cucina abitabile e ampio soggiorno con terrazzino comunicante;

zona notte composta da 2 grandi camere da letto matrimoniali, bagno e balcone.

completa la proprieta’ una cantina e la possibilita' di un box singolo all’interno del condominio ad euro 20.000.

libero da subito.

il presente testo e’ esclusivamente a scopo illustrativo e pubblicitario e potrebbe includere errori e/o omissioni; per l’eventuale visione dell’immobile si rende noto che le misure presenti sono puramente indicative, approssimative e non precise. tale annuncio non costituisce vincolo contrattuale.

LEGGI TUTTO

CONDIVIDI SUI SOCIAL

DATI PRINCIPALI

Riferimento
131157
Contratto
Vendita
Tipologia
Appartamento
Superficie
120 mq
Locali
4
Camere da letto
2
Cucina
Abitabile
Bagni
2
Piano
1 °
Totale piani
8
Box/Posto auto
Singolo

CARATTERISTICHE

Ascensore

COSTI

Prezzo
€ 250.000,00
Spese condominiali
€ 400,00 / mese

EFFICIENZA ENERGETICA

Stato
Da ristrutturare
Anno costruzione
1982
Riscaldamento
Centralizzato
Climatizzazione
Si
Classe energetica
D
IPE
175,00 kWh/m²a

A+

A

B

C

175,00 kWh/m²a | Classe energetica D

D

E

F

G

MAPPA

Cologno Monzese comune della Brianza Milanese

ANNUNCI SIMILI

VENDITA 20
€ 250.000
Appartamento in Vendita a Cologno Monzese (Milano)
  • Quadrilocale
  • 120 mq
  • 2 bagni
VENDITA 20
€ 700.000
Appartamento in Vendita a Vimodrone (Milano)
  • Più di 5 locali
  • 149 mq
  • 3 bagni
VENDITA 20
€ 337.000
Appartamento in Vendita a Vimodrone (Milano)
  • Più di 5 locali
  • 133 mq
  • 2 bagni