3 locali - ideale anche come investimento VENDITA

Via Rota, 12 - Monza (Monza e Brianza)
€ 198.000
  • Trilocale
  • 100 mq
  • 1 bagno

Appartamento in Vendita a Monza

In contesto con spese condominiali minime, proponiamo in vendita affascinante appartamento ad uso abitativo composto da 3 locali e servizio, situato alle porte del centro storico. L'immobile, arredato, offre una superficie di 89 mq oltre due solai di complessivi 34 mq.
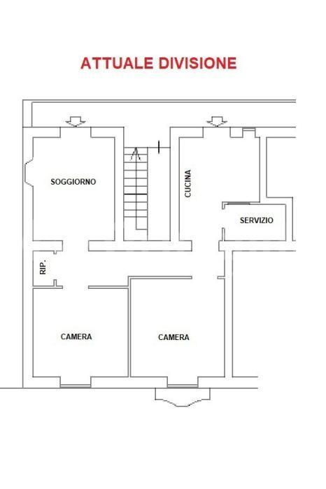
Al secondo ed ultimo piano di in un edificio d'epoca, l'appartamento è così suddiviso: doppio ingresso, soggiorno living, cucina abitabile, due ampie camere, servizio e ripostiglio. La doppia esposizione garantisce luminosità e ariosità agli ambienti.
La vicinanza ai mezzi di trasporto, alla stazione ferroviaria Monza Sobborghi e ai servizi essenziali come bar, ristoranti, farmacie e ufficio postale, rende questa proprietà una soluzione ideale per chi desidera vivere in un contesto comodo e ben servito.

Ideale anche come investimento data l'estrema vicinanza alla stazione (fronte edificio) e al centro storico raggiungibile in pochissimi minuti a piedi

€ 198.000,00

LEGGI TUTTO

CONDIVIDI SUI SOCIAL

DATI PRINCIPALI

Riferimento
131012
Contratto
Vendita
Tipologia
Appartamento
Superficie
100 mq
Locali
3
Camere da letto
2
Cucina
Abitabile
Bagni
1
Piano
3 °
Totale piani
2

CARATTERISTICHE

Ascensore

COSTI

Prezzo
€ 198.000,00
Spese condominiali
€ 50,00 / mese

EFFICIENZA ENERGETICA

Stato
Abitabile
Anno costruzione
1930
Riscaldamento
Autonomo
Classe energetica
G
IPE
421,99 kWh/m²a

A+

A

B

C

D

E

F

421,99 kWh/m²a | Classe energetica G

G

MAPPA

Monza comune della Bassa Brianza Centrale Sud

ANNUNCI SIMILI

VENDITA 20
€ 595.000
Appartamento in Vendita a Monza (Monza e Brianza)
  • Quadrilocale
  • 210 mq
  • 3 bagni