Monza – Via Bergamo, Centro Storico VENDITA

Via Bergamo 26 - Monza (Monza e Brianza)
€ 235.000
  • Trilocale
  • 75 mq
  • 1 bagno

Appartamento in Vendita a Monza

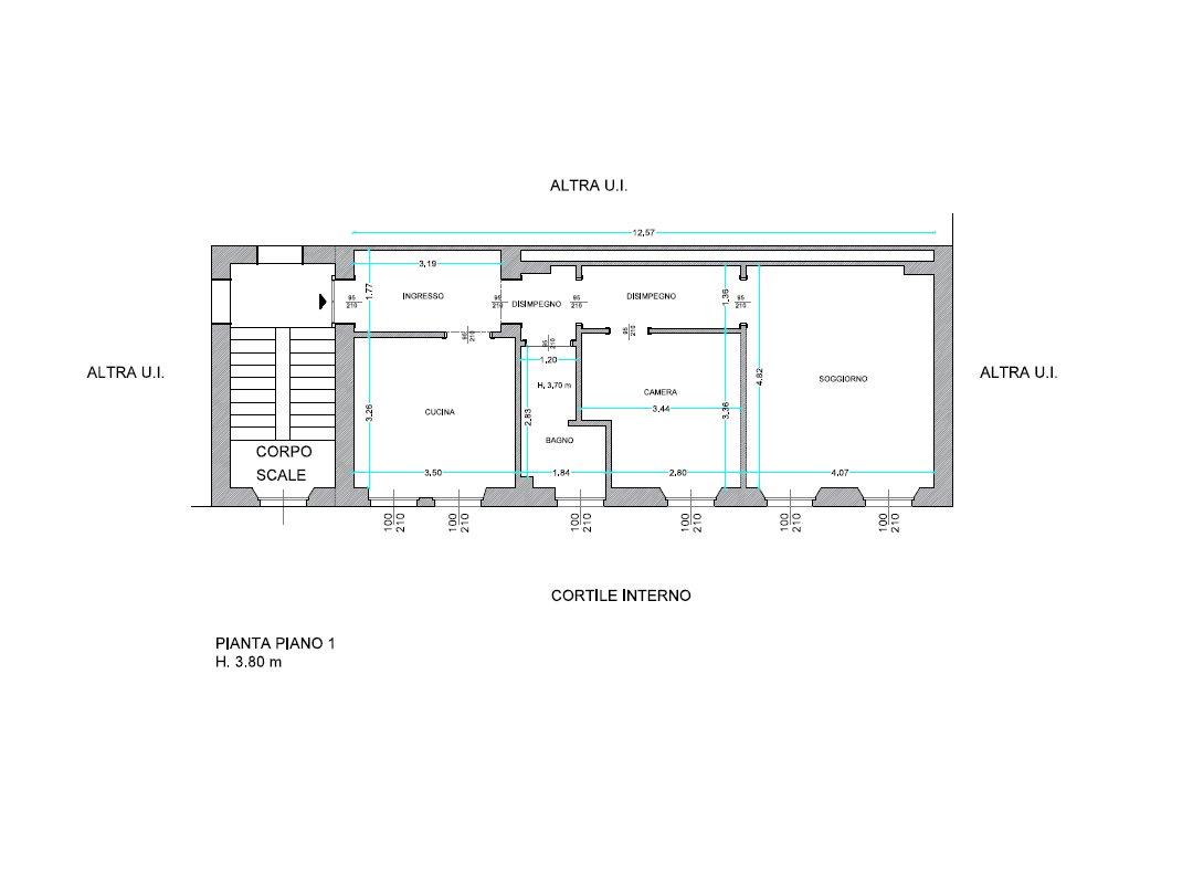
Per gli amanti delle case d’epoca dal fascino senza tempo. Nel centro storico di Borgo Bergamo - In contesto dei primi del ‘900, proponiamo in vendita un ampio bilocale di 75 mq. facilmente trasformabile in trilocale. L’appartamento, situato al primo piano, conserva tutto il carattere delle abitazioni storiche: soffitti alti, porte a doppio battente, stanze passanti e ambienti ariosi che trasmettono un autentico sapore classico. La nuova disposizione del trilocale da realizzare può prevedere un ingresso sul soggiorno con cucina a vista, il disimpegno con bagno finestrato, cameretta e ampia camera matrimoniale. Le altezze interne superiori alla media donano luminosità e permettono la realizzazione di zone soppalcate, ideali per valorizzare ulteriormente gli spazi. Il riscaldamento è autonomo con basse spese condominiali. Completa la proprietà un ampio box in acquisto a parte sito nello stesso contesto condominiale. La posizione è strategica: tutti i servizi sotto casa — supermercati, scuole, palestre, aree verdi, fermate autobus — e stazioni FS Sobborghi e Centrale raggiungibili in pochi minuti a piedi. A 15 minuti l’ingresso del Parco di Monza e della Villa Reale. Una casa perfetta per chi ama il fascino delle dimore d’epoca, con la possibilità di personalizzare gli ambienti e vivere nel cuore più autentico di Monza.

LEGGI TUTTO

CONDIVIDI SUI SOCIAL

DATI PRINCIPALI

Riferimento
126516
Contratto
Vendita
Tipologia
Appartamento
Superficie
75 mq
Locali
3
Camere da letto
2
Cucina
A vista
Bagni
1
Piano
1 °
Totale piani
2
Box/Posto auto
Singolo

CARATTERISTICHE

Ascensore

COSTI

Prezzo
€ 235.000,00
Spese condominiali
€ 80,00 / mese

EFFICIENZA ENERGETICA

Stato
Da ristrutturare
Anno costruzione
1930
Riscaldamento
Autonomo
Climatizzazione
Si
Classe energetica
D
IPE
175,00 kWh/m²a

A+

A

B

C

175,00 kWh/m²a | Classe energetica D

D

E

F

G

MAPPA

Monza comune della Bassa Brianza Centrale Sud

ANNUNCI SIMILI

VENDITA 20
€ 360.000
Appartamento in Vendita a Monza (Monza e Brianza)
  • Quadrilocale
  • 127 mq
  • 1 bagno