2 locali, all'ultimo piano, ristrutturato. VENDITA

Via Milano 77 - Cesano Maderno (Monza e Brianza)
€ 135.000
  • Bilocale
  • 50 mq
  • 1 bagno

Appartamento in Vendita a Cesano Maderno

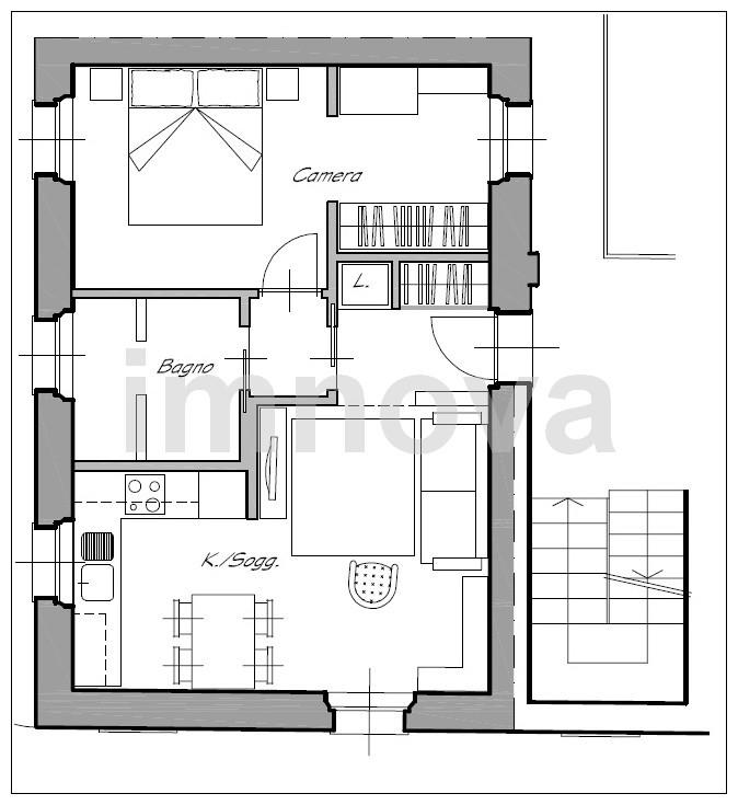
In zona comoda con i principali servizi, proponiamo 2 locali completamente ristrutturato a nuovo posto al piano primo ed ultimo in un contesto senza spese condominiali. L'appartamento è composto dall'ingresso, soggiorno con angolo cottura, camera matrimoniale con cabina armadio e bagno. La soluzione è in fase di completa ristrutturazione: riscaldamento a pavimento con pompe di calore, pannelli fotovoltaici da 1,6 kw e infissi PVC doppio vetro. Possibilità di scelta capitolato. Posto auto interno comune. Classe Energetica ipotizzata A1.

CONDIVIDI SUI SOCIAL

DATI PRINCIPALI

Riferimento
130231
Contratto
Vendita
Tipologia
Appartamento
Superficie
50 mq
Locali
2
Camere da letto
1
Cucina
Angolo cottura
Bagni
1
Piano
1 °
Totale piani
1

CARATTERISTICHE

Ascensore

COSTI

Prezzo
€ 135.000,00

EFFICIENZA ENERGETICA

Stato
Ristrutturato
Riscaldamento
Autonomo
Climatizzazione
Predisposizione
Classe energetica
A
IPE
175,00 kWh/m²a

A+

175,00 kWh/m²a | Classe energetica A

A

B

C

D

E

F

G

MAPPA

Cesano Maderno comune della Bassa Brianza Occidentale

ANNUNCI SIMILI