3 locali con giardino Nuova costruzione VENDITA

Via Alessandro Manzoni 12 - Cesano Maderno (Monza e Brianza)
€ 289.000
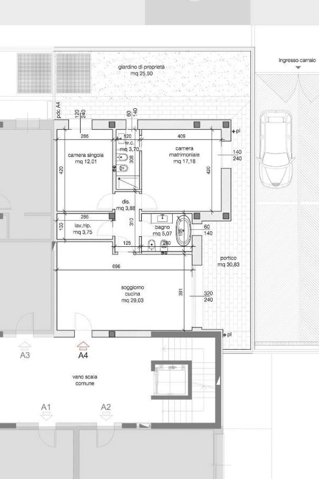
  • Trilocale
  • 114 mq
  • 2 bagni

Appartamento in Vendita a Cesano Maderno

Scopri la tua nuova casa: appartamento di nuova costruzione in classe A4!

Sogni un ambiente spazioso e luminoso dove ogni dettaglio sia pensato per il tuo benessere? Non cercare oltre! Ti presentiamo un esclusivo appartamento di tre locali, progettato per offrire comfort e stile.

– Ampie metrature: Ogni stanza è stata studiata per garantirti il massimo della vivibilità. Gli spazi generosi ti permetteranno di arredare con gusto e funzionalità, creando un’atmosfera accogliente e personalizzata.

– Efficienza energetica: Classe energetica A4, questo appartamento è sinonimo di risparmio e rispetto per l’ambiente. Grazie alle tecnologie all’avanguardia, potrai goderti un comfort termico ottimale, riducendo i costi delle bollette e l’impatto ecologico.

– Doppi servizi: Dimentica le attese! Con due bagni a disposizione, ogni membro della famiglia avrà il proprio spazio, per una comodità quotidiana senza pari o semplicemente per dedicare un bagno ad uso per gli ospiti e uno da utilizzare per le proprie abitudini quotidiane.

– Giardino personalizzabile: Immagina di trascorrere giornate o serate indimenticabili sul tuo giardino privato. Qui hai la possibilità di personalizzare gli spazi all’aperto secondo le tue preferenze: crea il tuo angolo verde, una zona relax o un’area per cene all’aperto. Siamo qui per aiutarti a realizzare il tuo sfogo esterno dei tuoi sogni!

– Un investimento per il futuro: Scegliere un appartamento di nuova costruzione significa scegliere una casa sicura, moderna e funzionale. Non perdere l’occasione di viverci e di investire nel tuo futuro!

Riscaldamento a pavimento, termoautonomo con pompa di calore da 9 kw e impianto fotovoltaico da 1,6 dedicato alla tua unità (con possibilità di ampliamento), predisposizione raffrescamento canalizzato, ventilazione meccanizzata già istallata, predisposizione antifurto e tapparelle elettriche con comando centralizzato all’ingresso dell’appartamento sono solo alcuni confort di questa nuova costruzione.

Possibilità di box singolo o doppio oltre alla cantina.

Vasta gamma di scelta a livello di capitolati previsti.

Contattaci per maggiori informazioni o per prenotare una visita. Il tuo nuovo appartamento ti aspetta: non lasciarti sfuggire questa opportunità unica!

CONSEGNA AUTUNNO 2026

LEGGI TUTTO

CONDIVIDI SUI SOCIAL

DATI PRINCIPALI

Riferimento
128246
Contratto
Vendita
Tipologia
Appartamento
Superficie
114 mq
Locali
3
Camere da letto
2
Cucina
A vista
Bagni
2
Piano
Piano terra
Totale piani
2
Box/Posto auto
Singolo

CARATTERISTICHE

Ascensore

COSTI

Prezzo
€ 289.000,00

EFFICIENZA ENERGETICA

Stato
Nuovo/In costruzione
Anno costruzione
2026
Riscaldamento
Autonomo
Climatizzazione
Predisposizione
Classe energetica
A4
IPE
32,54 kWh/m²a
32,54 kWh/m²a | Classe energetica A4

A4

A3

A2

A1

B

C

D

E

F

G

MAPPA

Cesano Maderno comune della Bassa Brianza Occidentale

ANNUNCI SIMILI