VIVERE UNA FAVOLA, OGNI GIORNO VENDITA

Montevecchia (Lecco)
€ 442.000
  • Più di 5 locali
  • 305 mq
  • 3 bagni

Villetta a schiera in Vendita a Montevecchia

Porzione di Villa di Testa in Dimora Storica – Osnago (LC)
Nel cuore verde della Brianza, dove il tempo sembra essersi fermato, vi presentiamo una rara opportunità abitativa: una porzione di villa di testa inserita in una dimora storica interamente restaurata nel 1997 da impresa, dove l’eleganza del passato incontra il comfort del presente.
Questo complesso unico, sapientemente rifinito mantenendo il carattere storico e circondato da un'atmosfera fiabesca, nasce dall’attento recupero di una residenza d’epoca quale “Cascina Carolina”, mantenendo intatti il fascino e il prestigio originari.
Osnago: un luogo dove la storia è ancora viva
Il comune di Osnago custodisce nel suo tessuto urbano e nel paesaggio circostante importanti testimonianze storiche. Ville, Cascine e Cortili di altri tempi perfettamente mantenute. Le loro architetture, spesso caratterizzate da parchi secolari, portali in pietra e corti interne, rappresentano ancora oggi un segno indelebile di prestigio e raffinatezza.
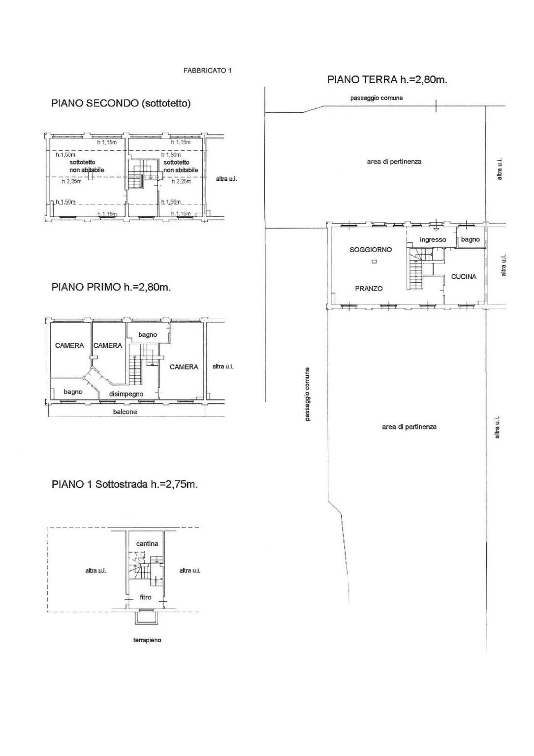
La proprietà
Disposta su tre piani fuori terra, ognuno da 83,00mq, per un totale di circa 250,00mq abitativi, la casa è incorniciata da un doppio spazio esterno:
• Giardino d’ingresso di 150 mq, perfetto per accogliere con charme
• Giardino riservato di 250 mq sul retro lato sud, ideale per il relax, pranzi all’aperto e momenti in famiglia
Piano Terra:
• Ampio soggiorno finestrato, esposto a sud ed a nord, con affaccio diretto su entrambi i giardini
• Cucina abitabile con uscita sul giardino lato sud
• Bagno di servizio
Primo Piano:
• Camera padronale con bagno e balcone
• Seconda camera matrimoniale con vista panoramica su “Montevecchia”
• Cameretta doppia anch’essa con vista su “Montevecchia”
• Secondo bagno completo con porta finestra sul balcone
• Balconata che percorre l’intera lunghezza della casa
Mansarda:
• Due grandi ambienti versatili, perfetti come ulteriori camere, studio o locali hobby
Piano Interrato:
• Cantina
• Lavanderia
• Due box (uno doppio e uno singolo) per un totale di 55,00mq
L’immobile presenta tetto già completamente rifatto, riscaldamento termo autonomo, infissi in legno con doppi vetri, inferiate.
Pavimentazione di tutta casa in piastrelle di Cotto d’Este attualmente ricoperto da pavimentazione in laminato in appoggio.
Una casa che unisce il fascino della storia alla funzionalità degli spazi moderni, immersa in un contesto esclusivo e riservato, ideale per chi desidera abitare in un luogo che racconti qualcosa in più.
Contattaci per maggiori informazioni e per prenotare la tua visita.
Lasciati incantare da un luogo senza tempo.
Propone: Ivan Zorzetto

LEGGI TUTTO

CONDIVIDI SUI SOCIAL

DATI PRINCIPALI

Riferimento
126786
Contratto
Vendita
Tipologia
Villetta a schiera
Superficie
305 mq
Locali
Più di 5
Camere da letto
5
Cucina
Abitabile
Bagni
3
Piano
2 °
Totale piani
3
Box/Posto auto
Doppio

CARATTERISTICHE

Ascensore

COSTI

Prezzo
€ 442.000,00
Spese condominiali
€ 125,00 / mese

EFFICIENZA ENERGETICA

Stato
Abitabile
Anno costruzione
1997
Riscaldamento
Autonomo
Classe energetica
F
IPE
205,37 kWh/m²a

A+

A

B

C

D

E

205,37 kWh/m²a | Classe energetica F

F

G

MAPPA

Montevecchia comune della Brianza Meratese

ANNUNCI SIMILI

VENDITA 20
€ 442.000
Villetta a schiera in Vendita a Cernusco Lombardone (Lecco)
  • Più di 5 locali
  • 305 mq
  • 3 bagni
VENDITA 20
€ 442.000
Villetta a schiera in Vendita a Osnago (Lecco)
  • Più di 5 locali
  • 305 mq
  • 3 bagni
VENDITA 20
€ 442.000
Villetta a schiera in Vendita a Merate (Lecco)
  • Più di 5 locali
  • 305 mq
  • 3 bagni
VENDITA 20
€ 442.000
Villetta a schiera in Vendita a Lomagna (Lecco)
  • Più di 5 locali
  • 305 mq
  • 3 bagni