€ 1.300.000
  • Più di 5 locali
  • 953 mq
  • 4 bagni

Villa in Vendita a Arcore

\Descrizione contesto
Nel cuore di un incantevole parco privato di circa 15.000 mq sorge questa straordinaria dimora di 500 mq.
Di grande interesse la possibilità di acquistare ad € 130.000 il meraviglioso terreno di circa 7.000 mq, già collegato all'attuale giardino, arricchito da meravigliosi laghetti e che consente di ottenere un ingresso da viale Brianza.
La villa, completamente ristrutturata nel 2010 su preciso progetto della proprietà, ha dato vita a una residenza unica, concepita con materiali naturali per armonizzarsi perfettamente con il paesaggio circostante. Ogni dettaglio è stato studiato per garantire non solo bellezza, ma anche un’elevata efficienza energetica: il riscaldamento e il raffrescamento a pavimento sono alimentati da un avanzato impianto geotermico, una scelta che assicura massimo comfort, riducendo significativamente i costi di gestione e l’impatto ambientale.
Attualmente l’immobile non è ultimato nelle sue finiture per offrire ai futuri proprietari la possibilità di personalizzare gli ultimi dettagli secondo il proprio gusto. Gran parte dei materiali sono già disponibili e pronti per l’installazione, rendendo la villa un'opportunità rara per chi desidera una casa esclusiva da modellare sulle proprie esigenze.

\Descrizione immobile
Un suggestivo vialetto d’ingresso attraversa il parco e conduce fino alla villa, elegantemente nascosta tra gli alberi. L’accesso avviene sia dall’ingresso principale che direttamente dall’ampio box, collegato internamente.
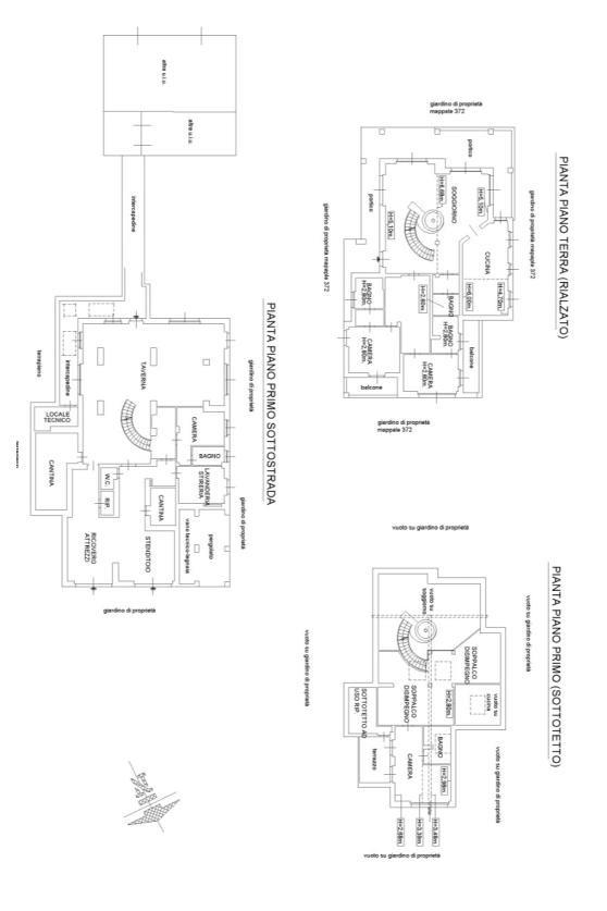
Varcando la soglia, al piano terra, si viene accolti da un magnifico living a tutta altezza con suggestivo camino FILIOFOCUS, circondato da ampie vetrate che creano un continuum tra interno ed esterno, regalando una vista impareggiabile sul verde circostante. La maestosa cucina si distingue per un sovrastante parallelepipedo a tutta altezza, rivestito in mattoni rossi a vista, che diventa un elemento architettonico di grande impatto. Su questo livello si trovano anche due spaziose camere matrimoniali, entrambe con bagno privato e zona guardaroba, oltre a un elegante bagno di cortesia per gli ospiti.
Salendo al piano superiore, si raggiunge un raffinato disimpegno a vista sulla zona giorno, da cui si accede alla suite padronale, un ambiente completamente riservato e indipendente. Questa esclusiva area comprende una camera di ampie dimensioni, un bagno privato e un delizioso terrazzino.
Il piano seminterrato, trovandosi fuori terra e circondato da portefinestre, è un ambiente pienamente abitabile, luminoso e versatile. Questo livello offre la possibilità di essere vissuto come una raffinata taverna, una zona hobby o una palestra con area spa. È inoltre presente un’area dedicata al personale di servizio, con camera e bagno privato. In alternativa, questo spazio può trasformarsi in un appartamento semi-indipendente, perfetto per i figli, con camere da letto, un secondo living e un locale multifunzionale.
A completare la proprietà, le ampie autorimesse, le cantine e i locali tecnici, caratterizzati da splendidi soffitti a volta in mattoni a vista, aggiungono ulteriore fascino e funzionalità alla residenza.
\Finiture interne
La villa è stata ristrutturata a nuovo nel 2010: le facciate, i rivestimenti dei muretti esterni, le fontane e tutte le finiture della parte esterna, inclusi i box, sono stati realizzati in pietra bianca delle cave del Brenta, materiale che garantisce durabilità e perfezione nel tempo. I soffitti della taverna, dei box e delle cantine presentano splendide volte in tavelle a vista, riprendendo le finiture dei soffitti ai piani superiori.
La progettazione ha tenuto conto delle più moderne esigenze ecosostenibili: l’impianto di riscaldamento e raffrescamento a pavimento, alimentato da un sistema geotermico, garantisce temperature ottimali in ogni stagione con un consumo energetico ridotto. Sono inoltre presenti tutte le predisposizioni per un impianto di allarme avanzato, oltre ad un camminamento che costeggia la proprietà per la vigilanza notturna

LEGGI TUTTO

CONDIVIDI SUI SOCIAL

DATI PRINCIPALI

Riferimento
126984
Contratto
Vendita
Tipologia
Villa
Superficie
953 mq
Locali
5
Camere da letto
4
Cucina
Abitabile
Bagni
4
Piano
Piano terra
Totale piani
1
Box/Posto auto
Doppio

CARATTERISTICHE

Ascensore

COSTI

Prezzo
€ 1.300.000,00
Spese condominiali
€ 1,00 / mese

EFFICIENZA ENERGETICA

Stato
Ristrutturato
Anno costruzione
2010
Riscaldamento
Autonomo
Climatizzazione
Predisposizione
Classe energetica
C
IPE
91,47 kWh/m²a

A+

A

B

91,47 kWh/m²a | Classe energetica C

C

D

E

F

G

MAPPA

Arcore comune della Bassa Brianza Orientale o Vimercatese

ANNUNCI SIMILI

VENDITA 20
€ 1.130.000
Villa in Vendita a Arcore (Monza e Brianza)
  • Più di 5 locali
  • 555 mq
  • 4 bagni
VENDITA 20
€ 1.090.000
Villa in Vendita a Arcore (Monza e Brianza)
  • Più di 5 locali
  • 482 mq
  • 4 bagni
VENDITA 20
€ 1.090.000
Villa in Vendita a Arcore (Monza e Brianza)
  • Più di 5 locali
  • 482 mq
  • 4 bagni