• Più di 5 locali
  • 264 mq
  • 4 bagni

Villa in Vendita a Agrate Brianza

\Descrizione Contesto
Ad Agrate Brianza, al confine con il Parco Aldo Moro, in una delle zone più tranquille e riservate del paese, si trova una villa di testa immersa nel verde, inserita in un contesto esclusivamente residenziale composto da sole ville.
Alle spalle della casa, il giardino si apre verso il parco, creando una continuità visiva con la natura e garantendo un’eccezionale sensazione di apertura e privacy: un angolo di quiete perfetto per chi desidera vivere immerso nella natura, pur restando a pochi minuti dal centro e dai principali servizi.
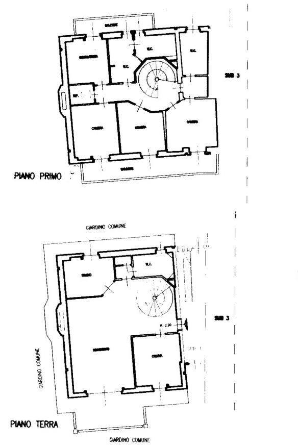
\Descrizione Immobile
La Villa, libera su tre lati e circondata da un giardino privato di circa 800 mq, si sviluppa su due livelli principali di circa 100 mq ciascuno, oltre a un ampio piano seminterrato finemente rifinito, di pari metratura. Nata originariamente come parte di un’unica grande residenza familiare, oggi è completamente autonoma con spazi ben separati dalle altre due porzioni.
Al piano terra, l’ingresso si apre su un elegante soggiorno doppio, caratterizzato da ampie superfici vetrate che dialogano con il verde esterno. A impreziosire ulteriormente l’ambiente, una splendida scala elicoidale che collega i piani superiori e una stufa antica in maiolica, elemento di grande fascino e calore, perfettamente integrata nel contesto. Completano il piano una sala da pranzo luminosa, la cucina abitabile, un comodo ripostiglio e un ampio bagno finestrato.
Il primo piano ospita quattro camere da letto, di cui tre matrimoniali e una singola dalle dimensioni generose. Una delle stanze principali è dotata di cabina armadio e bagno privato. Un secondo bagno, ampio e con finestra, serve la zona notte.
Il piano seminterrato sorprende per le dimensioni e per l’altezza interna: uno spazio versatile e accogliente dove trovano posto una taverna con lavanderia, un bagno completo e locali accessori. Un corridoio, condiviso esclusivamente per l’accesso alle autorimesse, collega internamente questa zona alla cantina e all’area box. La proprietà include un box doppio (per auto grande e auto piccola) e possibilità di un ulteriore box singolo, entrambi protetti da saracinesche automatizzate.
Infine, di grande interesse, la presenza del sottotetto attualmente allo stato grezzo ma già completo della predisposizione degli impianti.
\Finiture interne
La villa è perfettamente manutenuta ed è stata oggetto di interventi di ristrutturazione tra cui la sostituzione completa degli infissi al piano terra e piano primo nel 2024 , ad eccezione della taverna ove sono presenti infissi in classe A3 di sicurezza risalenti al 2016. Gli ambienti si distinguono per luminosità, ampiezza e qualità costruttiva: spazi pensati per accogliere famiglie numerose o per chi cerca indipendenza, eleganza e un contatto diretto con la natura. A completare le dotazioni della villa troviamo le zanzariere installate su tutti gli infissi, l'impianto di irrigazione nel giardino, il robot taglia erba e l'impianto di aspirazione canalizzato.

LEGGI TUTTO

CONDIVIDI SUI SOCIAL

DATI PRINCIPALI

Riferimento
124117
Contratto
Vendita
Tipologia
Villa
Superficie
264 mq
Locali
Più di 5
Camere da letto
4
Cucina
Abitabile
Bagni
4
Piano
Piano terra
Totale piani
1
Box/Posto auto
Doppio

CARATTERISTICHE

Ascensore

COSTI

Prezzo
€ 730.000,00
Spese condominiali
€ 1,00 / mese

EFFICIENZA ENERGETICA

Stato
Abitabile
Anno costruzione
1996
Riscaldamento
Autonomo
Climatizzazione
Si
Classe energetica
F
IPE
153,00 kWh/m²a

A+

A

B

C

D

E

153,00 kWh/m²a | Classe energetica F

F

G

MAPPA

Agrate Brianza comune della Bassa Brianza Orientale o Vimercatese

ANNUNCI SIMILI

VENDITA 20
€ 590.000
  • Più di 5 locali
  • 400 mq
  • 3 bagni
VENDITA 20
€ 820.000
  • Più di 5 locali
  • 320 mq
  • 3 bagni