VILLA SINGOLA IN OTTIMO STATO CON AMPIO GIARDINO BOX DOPPIO VENDITA

Via Giuseppe Verdi 8 - Cornate d'Adda (Monza e Brianza)
€ 300.000
  • Più di 5 locali
  • 264 mq
  • 2 bagni

Villa in Vendita a Cornate d'Adda

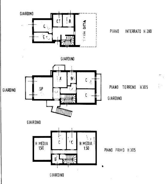
A Colnago, frazione di Cornate d’Adda, vicino al centro del paese ed a tutti i servizi di prima necessità, a poca distanza dal centro commerciale Globo e dalla stazione ferroviaria di Paderno d’Adda, proponiamo villa singola composta al piano rialzato da ingresso, ampio soggiorno, cucina abitabile, bagno con vasca e due camere da letto, tutti i vani hanno accesso ai balconi; al piano primo accessibile mediante scale interne troviamo due camere, bagno e due locali sottotetto posti alle estremità del corpo centrale dotati di abbaini; al piano seminterrato spaziosa lavanderia, locale caldaia, tavernetta, locale attrezzeria e box doppio di 33 mq. Circonda la proprietà il giardino privato di circa 430 mq con annessa casetta in legno. L’immobile è in ottimo stato conservativo, il tetto rifatto, gli infissi in triplo vetro e caldaia a condensazione sostituita da poco. Il piano rialzato è rifinito in parquet ad esclusione della cucina e del bagno, è presente l’impianto di condizionatore, zanzariere, tenda da sole sul balcone esposto a sud ed impianto di allarme. Per maggiori informazioni contattare Mara al 3402355630.

LEGGI TUTTO

CONDIVIDI SUI SOCIAL

DATI PRINCIPALI

Riferimento
105369
Contratto
Vendita
Tipologia
Villa
Superficie
264 mq
Locali
5
Camere da letto
4
Cucina
Abitabile
Bagni
2
Piano
1 °
Totale piani
3
Box/Posto auto
Doppio

CARATTERISTICHE

Ascensore

COSTI

Prezzo
€ 300.000,00

EFFICIENZA ENERGETICA

Stato
Ristrutturato
Anno costruzione
1964
Riscaldamento
Autonomo
Climatizzazione
Si
Classe energetica
D
IPE
351,00 kWh/m²a

A+

A

B

C

351,00 kWh/m²a | Classe energetica D

D

E

F

G

MAPPA

Cornate d'Adda comune della Bassa Brianza Orientale o Vimercatese

ANNUNCI SIMILI

VENDITA 20
€ 395.000
Villa in Vendita a Busnago (Monza e Brianza)
  • Più di 5 locali
  • 342 mq
  • 3 bagni
VENDITA 20
€ 650.000
Villa in Vendita a Bellusco (Monza e Brianza)
  • Più di 5 locali
  • 550 mq
  • 3 bagni