€ 890.000
  • Quadrilocale
  • 281 mq
  • 3 bagni

Villa in Vendita a Monza

Rif: 821 - LA CASA DEI TUOI SOGNI TI ASPETTA!

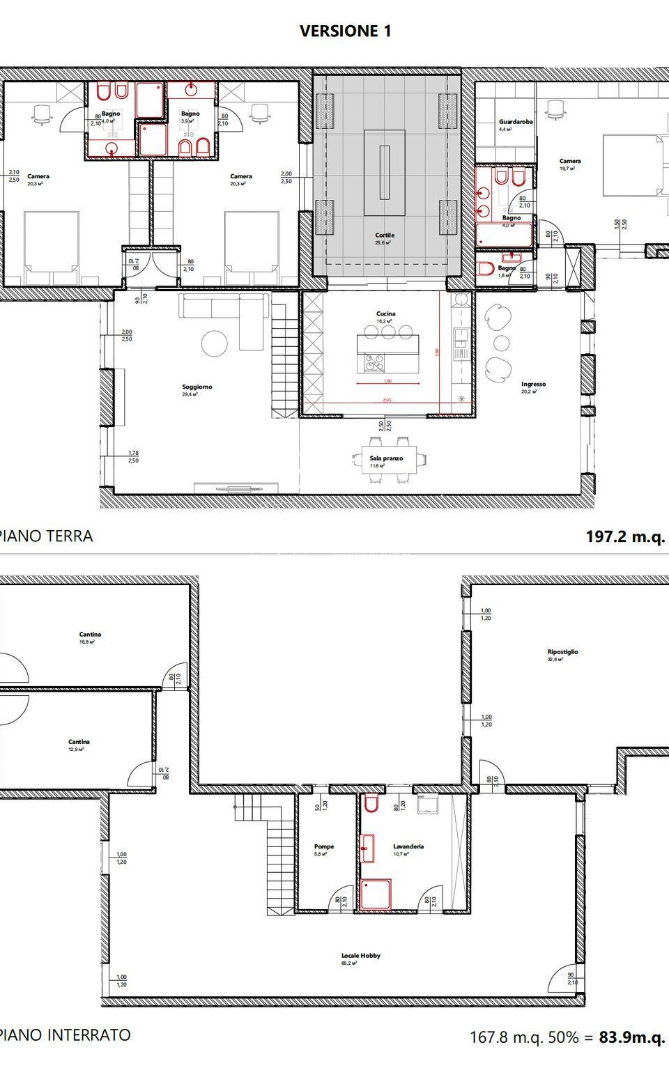
Immagina di aprire la porta di casa e sentire subito quel calore avvolgente che solo un'abitazione pensata per il tuo benessere può offrire. Questa splendida villetta di nuova costruzione, realizzata con materiali di pregio e tecnologie all’avanguardia, è pronta a regalarti il comfort che hai sempre desiderato.

Zona giorno da sogno
Varcata la soglia, ti accoglie un ampio open space dove il soggiorno si fonde armoniosamente con la sala da pranzo e una cucina moderna e abitabile. Un ambiente luminoso e arioso, perfetto per condividere momenti speciali con la tua famiglia e gli amici.

Zona notte intima e accogliente
Proseguendo, troviamo tre spaziose camere da letto, ideali per garantire privacy e relax, e tre eleganti bagni rifiniti con materiali di alta qualità, pensati per offrirti ogni comfort.

Un seminterrato versatile
Scendendo al piano inferiore, uno spazio tutto da vivere: ripostiglio, sala hobby e lavanderia. Qui potrai creare la tua palestra personale, una sala cinema o un’area giochi per i più piccoli.

Giardino e possibilità di piscina
L’esterno non è da meno. Il doppio giardino, sia frontale che sul retro, ti offre la possibilità di trascorrere piacevoli giornate all’aria aperta. E se desideri un tocco di esclusività in più, hai la possibilità di richiedere una piscina interrata per rendere il tuo angolo di paradiso ancora più unico.

Ampia area parcheggio
A completare questa meravigliosa soluzione, un box doppio e un posto auto esterno, così da non avere mai problemi di spazio per le tue auto.

Efficienza energetica al top
Questa villetta sarà certificata classe A3 e dotata di pannelli fotovoltaici, garantendoti il massimo del risparmio energetico e il rispetto per l’ambiente.

Tre buoni motivi per acquistarla:
Comfort e spazio per tutta la famiglia – Ambienti ampi e ben distribuiti, perfetti per vivere ogni momento in serenità.
Alte prestazioni energetiche – Classe A3 e pannelli fotovoltaici per un risparmio economico e un minore impatto ambientale.
Personalizzazione degli spazi – Possibilità di realizzare una piscina interrata e sfruttare il seminterrato come meglio desideri.
Questa casa è una perla rara: non lasciartela sfuggire! Vieni a vederla di persona e lasciati conquistare dal suo fascino. Contattaci subito per fissare un appuntamento.

Le informazioni della presente scheda sono puramente indicative e non costituiscono condizioni contrattuali.

LEGGI TUTTO

CONDIVIDI SUI SOCIAL

DATI PRINCIPALI

Riferimento
128307
Contratto
Vendita
Tipologia
Villa
Superficie
281 mq
Locali
4
Camere da letto
3
Cucina
Abitabile
Bagni
3
Piano
Piano terra
Totale piani
2
Box/Posto auto
Doppio

CARATTERISTICHE

Ascensore

COSTI

Prezzo
€ 890.000,00

EFFICIENZA ENERGETICA

Stato
Nuovo/In costruzione
Anno costruzione
2026
Riscaldamento
Autonomo
Climatizzazione
Si
Classe energetica
A+
IPE
175,00 kWh/m²a
175,00 kWh/m²a | Classe energetica A+

A+

A

B

C

D

E

F

G

MAPPA

Monza comune della Bassa Brianza Centrale Sud

ANNUNCI SIMILI

VENDITA 20
€ 650.000
Villa in Vendita a Monza (Monza e Brianza)
  • Più di 5 locali
  • 225 mq
  • 3 bagni