VILLA CON PISCINA - LURAGO D'ERBA VENDITA

Via Dei Ciliegi, 7 - Lurago d'Erba (Como)
€ 580.000
  • Più di 5 locali
  • 415 mq
  • 3 bagni

Villa in Vendita a Lurago d'Erba

Immagina la VILLA dei Tuoi Sogni con piscina, un ampio giardino, in una zona tranquilla e riservata




L'abbiamo trovata per te!

QUANDO E' POSSIBILE VEDERLA? SABATO 21 MARZO DURANTE L'OPEN HOUSE! CONTATTACI PER ORGANIZZARE LA TUA VISIONE!

La villa si trova a Lurago d'erba (CO), in una zona residenziale di sole ville,
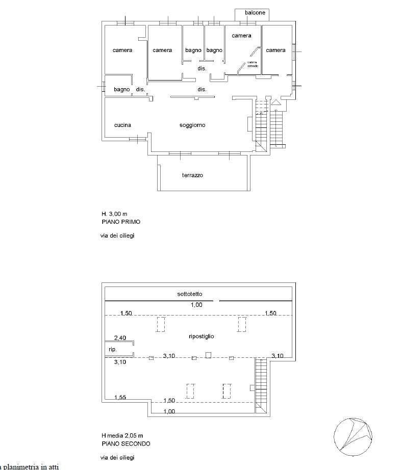
si sviluppa su un unico piano (per circa 190 mq), oltre al sottotetto (ad uso ripostiglio ma con eventuale possibilità recupero, previa modifiche e riscontro urbanistico) di pari metratura, con cantina al piano terra, box di 48 mq e GIARDINO di oltre 2300 mq!

L'abitazione si sviluppa su unico livello (al piano rialzato) raggiungibile da comoda scala dal giardino o dalla scala interna, direttamente dal box;

La zona giorno è composta da un ampio e luminoso soggiorno con cucina attualmente a vista (ma che si potrebbe rendere abitabile);
dal soggiorno si accede al terrazzo che affaccia sul meraviglioso giardino piantumato di 2180 mq con PISCINA interrata, per godere al meglio i momenti di relax!
La zona notte è composta da quattro camere da letto (di cui una con cabina armadio e balcone), e tre bagni con doccia.
Al piano interrato troviamo ampia cantina e locale sgombero, nonchè il BOX di 90 mq!

Il piano abitativo è stato completamente RISTRUTTURATO di recente.

NB: la metratura è quella commerciale, che comprende cioè, in quota, portico, parti interrate, box, giardino ecc...

VI E' ANCORA DELLA VOLUMETRIA RESIDUA PER circa 1200 mc (in fase di verifica)!!!

Per avere informazioni contattaci allo 02 - 67 165 80 44 (call center attivo da lun a ven dalle 8:30 alle 20:00 e sabato mattina dalle 9:00 alle 18:00) o visita il nostro sito: www.riferimentoimmobiliare.net

Trovate altre foto sul sito www.riferimentoimmobiliare.net

Agente di riferimento: Nicola Alfano
SCOPRI UN NUOVO MODO DI VEDERE L'AGENTE IMMOBILIARE! CON NOI E' POSSIBILE AVERE UN SOLO REFERENTE MA PIU' AGENZIE AL TUO SERVIZIO PER TROVARE O VENDERE CASA COLLABORANDO! CONTATTACI PER UN INCONTRO (GRATUITO!)

La Riferimento Immobiliare fa parte del Re Point Group, un gruppo di 20 agenzie dislocate da Milano alla provincia di Como, il cui obiettivo comune è quello di differenziarsi ed offrire un servizio di qualità ai clienti, collaborando e offrendo loro più possibilità di vendere o trovare casa. Semplici come un punto, forti come un gruppo è il nostro slogan! www.repointgroup.it

Grazie all'adesione al Gruppo Re Point e alla collaborazione instaurata negli anni con le agenzie della zona, punta ad essere il TUO RIFERIMENTO per vendere o comprare casa nella zona di Inverigo e paesi limitrofi (senza alcun limite)

Trovi i nostri immobili anche sul sito FIMAA www.trovacasacomo.it

LEGGI TUTTO

CONDIVIDI SUI SOCIAL

DATI PRINCIPALI

Riferimento
132026
Contratto
Vendita
Tipologia
Villa
Superficie
415 mq
Locali
5
Camere da letto
4
Cucina
A vista
Bagni
3
Piano
Piano rialzato
Totale piani
1

CARATTERISTICHE

Ascensore

COSTI

Prezzo
€ 580.000,00

EFFICIENZA ENERGETICA

Stato
Ristrutturato
Riscaldamento
Autonomo
Classe energetica
C
IPE
102,68 kWh/m²a

A+

A

B

102,68 kWh/m²a | Classe energetica C

C

D

E

F

G

MAPPA

Lurago d'Erba comune dell'Alta Brianza Comasca

ANNUNCI SIMILI

VENDITA 20
€ 230.000
Villa in Vendita a Lurago d'Erba (Como)
  • Più di 5 locali
  • 405 mq
  • 4 bagni
VENDITA 20
€ 595.000
Villa in Vendita a Inverigo (Como)
  • Più di 5 locali
  • 360 mq
  • 4 bagni
VENDITA 20
€ 580.000
Villa in Vendita a Carugo (Como)
  • Più di 5 locali
  • 250 mq
  • 3 bagni
VENDITA 20
€ 495.000
Villa in Vendita a Inverigo (Como)
  • Più di 5 locali
  • 296 mq
  • 3 bagni