€ 390.000
  • Più di 5 locali
  • 224 mq
  • 3 bagni

Villa in Vendita a Renate

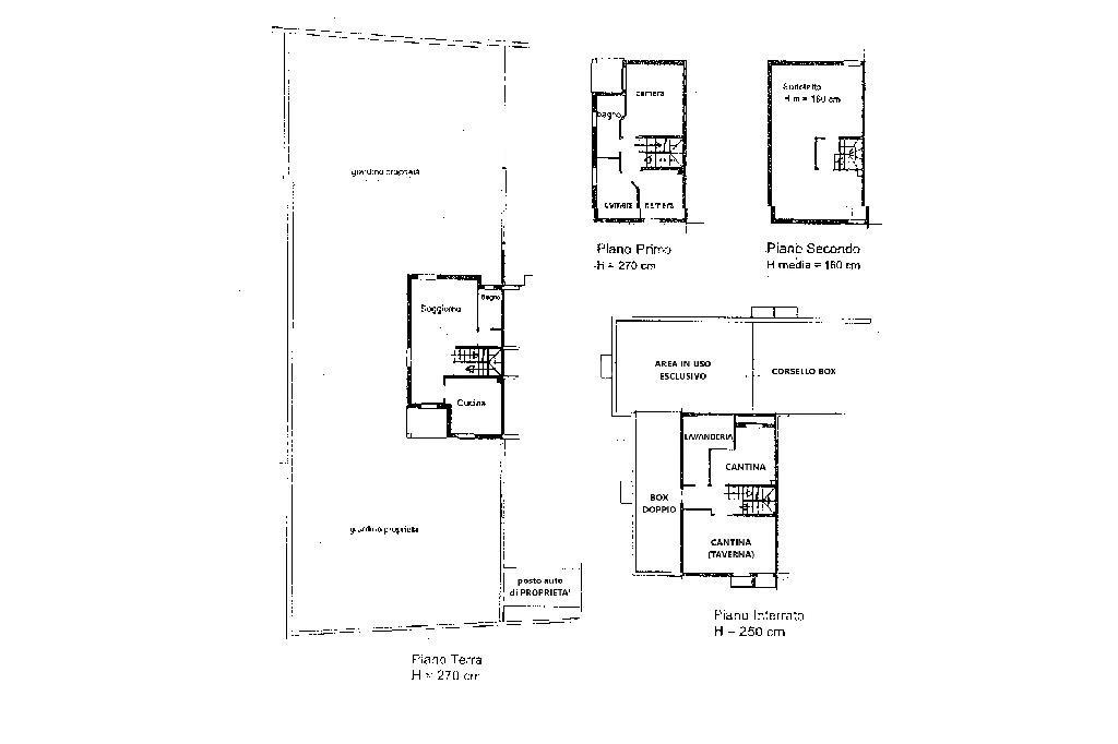
Nel comune di Renate, porzione di villa bifamiliare, ideale per chi cerca spazio e comfort. L'immobile, costruito nel 2002, si distingue per la sua ampia metratura e la disposizione funzionale dei suoi cinque locali. Al piano terra troviamo un ampio giardino pianeggiante con parte pavimentata, che offre uno spazio esterno perfetto per momenti di relax. La zona giorno si apre su un luminoso soggiorno, mentre la cucina abitabile è perfetta per condividere splendidi momenti in famiglia. La proprietà include tre camere da letto, tre bagni, una taverna e una mansarda divisa in 2 stanze finestrate. L'ottima esposizione e la vista panoramica arricchiscono l'unità abitativa. Situata in una zona tranquilla e residenziale, la casa è dotata di impianto di allarme e serramenti in doppio vetro. Le spese comuni sono solo la corrente elettrica del cancello e del corsello dei box.
Completano la proprietà box doppio con antistante area di proprietà di circa 30mq e un posto auto di proprietà.
Vicino a Besana in Brianza, Cassago, Cremella, Monticello, Veduggio e comodo con SS36.

LEGGI TUTTO

CONDIVIDI SUI SOCIAL

DATI PRINCIPALI

Riferimento
126223
Contratto
Vendita
Tipologia
Villa
Superficie
224 mq
Locali
5
Camere da letto
3
Cucina
Abitabile
Bagni
3
Totale piani
4
Box/Posto auto
Doppio

CARATTERISTICHE

Ascensore

COSTI

Prezzo
€ 390.000,00
Spese condominiali
€ 17,00 / mese

EFFICIENZA ENERGETICA

Stato
Abitabile
Anno costruzione
2002
Riscaldamento
Autonomo
Classe energetica
E
IPE
265,56 kWh/m²a

A+

A

B

C

D

265,56 kWh/m²a | Classe energetica E

E

F

G

MAPPA

Renate comune della Bassa Brianza Centrale Nord

ANNUNCI SIMILI

VENDITA 20
€ 490.000
Villa in Vendita a Briosco (Monza e Brianza)
  • Più di 5 locali
  • 280 mq
  • 2 bagni
VENDITA 20
€ 640.000
Villa in Vendita a Briosco (Monza e Brianza)
  • Più di 5 locali
  • 285 mq
  • 4 bagni