€ 365.000
  • Quadrilocale
  • 190 mq
  • 3 bagni

Villa in Vendita a Trezzo sull'Adda

VILLA In vendita a Trezzo sull'Adda,

proponiamo una splendida VILLA NUOVA


POSSIBILITA' DI PERMUTA DIRETTA


Il PROJECT CONCEPT è stato curato in ogni dettaglio, con materiali costruttivi di standard elevato, in concerto con l’impiantistica di ultima generazione, all’insegna del RISPARMIO ENERGETICO e del massimo rispetto per l’ambiente, questa villa si presenta con ampi spazi ben ditribuiti come un'opportunità unica per chi desidera vivere in un'abitazione MODERNA e CONFORTEVOLE.

La proprietà si estende su una superficie totale di 190 M², di cui 180 M² calpestabili, locali spaziosi, luminosi e si estende su tre livelli.

P. terra PORTA BLINDATA, ingresso con ampia zona living ideale per ospitare sia la tua famiglia che gli ospiti. , disimpegno, bagno e cucina abitabile,

una scala comoda interna si accede al piano primo con ingresso ad una zona studio e cameretta con accesso al balcone, bagno e camera da letto patronale.
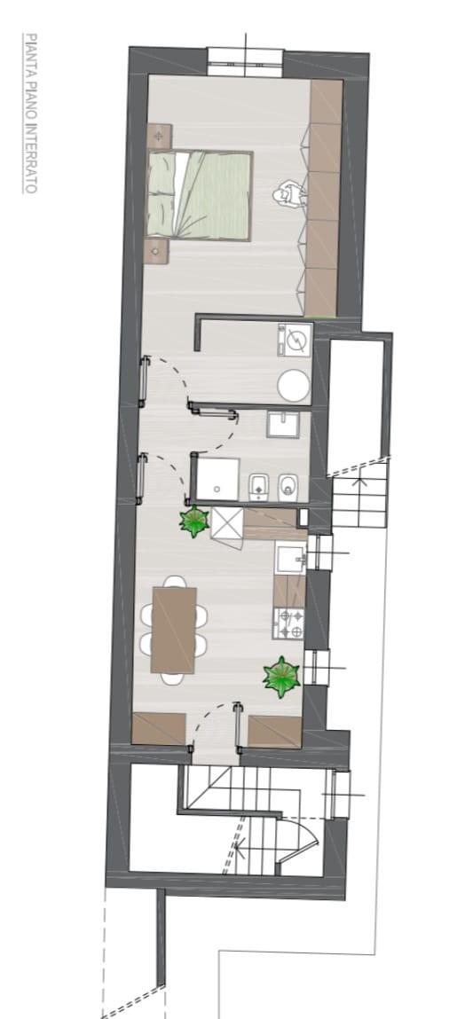
Dalla scala interna si accede al pano seminterrato zona TAVERNA con ingresso in cucina, disimpegno, locale caldaia, bagno e camera.

Gli infissi e le finestre sono in TRIPLO VETRO PVC e TAPPARELLE MOTORIZZATE di sicurezza, garanzia di un isolamento termico e acustico eccellente.
Pavimento in gres porcellanato effetto legno, riscalamento e raffrescamento a VENTILCONVETTORI A pavimento DAIKIN, ventilazione meccanica in taverna, fotovoltaico con BATTERIA di ACCUMULO da 30KW

Inoltre, la villa dispone di 2 POSTI AUTO COPERTI da gazebo in ferro con rete antigrandine, CANTINA e locale rifiuti.

Il riscaldamento è autonomo, permettendoti di gestire in modo autonomo la temperatura della tua casa.

Non perdere l'opportunità di trasferirti in questa meravigliosa villa , libero al rogito.

Contattaci per maggiori informazioni e per organizzare una visita.

PER INFORMAZIONI E VISIONE CONTATTATECI AL NUMERO DIRETTO 02/38236174 - 339/2955559
EMAIL: immobil.go@gmail.com
PER VALUTARE LE NOSTRE OFFERTE CONSULTATE IL SITO INTERNET : www.immobilgo.net

LEGGI TUTTO

CONDIVIDI SUI SOCIAL

DATI PRINCIPALI

Riferimento
131096
Contratto
Vendita
Tipologia
Villa
Superficie
190 mq
Locali
4
Camere da letto
3
Cucina
Abitabile
Bagni
3
Piano
Piano terra
Totale piani
1
Box/Posto auto
Doppio

CARATTERISTICHE

Ascensore

COSTI

Prezzo
€ 365.000,00

EFFICIENZA ENERGETICA

Stato
Nuovo/In costruzione
Anno costruzione
2025
Riscaldamento
Autonomo
Climatizzazione
Si
Classe energetica
A4
IPE
351,00 kWh/m²a
351,00 kWh/m²a | Classe energetica A4

A4

A3

A2

A1

B

C

D

E

F

G

MAPPA

Trezzo sull'Adda comune del Territorio Trezzese

ANNUNCI SIMILI

VENDITA 20
€ 874.000
Villa in Vendita a Vaprio d'Adda (Milano)
  • Più di 5 locali
  • 338 mq
  • 3 bagni
VENDITA 20
€ 413.000
Villa in Vendita a Trezzano Rosa (Milano)
  • Quadrilocale
  • 220 mq
  • 3 bagni
VENDITA 20
€ 620.000
Villa in Vendita a Vimodrone (Milano)
  • Più di 5 locali
  • 177 mq
  • 2 bagni