VERDERIO – AMPIA E LUMINOSA VILLA SINGOLA IN CONTESTO ESCLUS VENDITA

Via 2 Giugno - Verderio (Lecco)
€ 610.000
  • Più di 5 locali
  • 330 mq
  • 3 bagni

Villa in Vendita a Verderio

In una tranquilla zona residenziale di Verderio, composta esclusivamente da ville, proponiamo in vendita una prestigiosa villa unifamiliare, circondata da circa 400 mq di giardino privato e arricchita da comodi porticati coperti.
La casa si presenta con uno stile elegante e accogliente: facciata in pietra naturale, archi armoniosi e spazi esterni ben organizzati rendono l’abitazione calda e riservata, perfettamente inserita nel verde circostante.

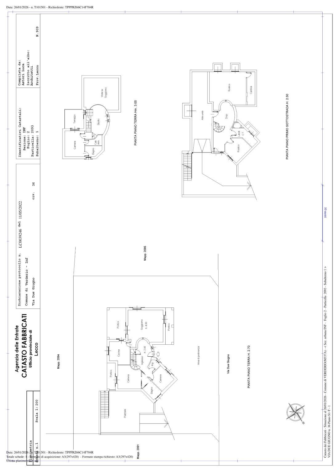
PIANO TERRA – SPAZI AMPI E BEN ORGANIZZATI
L’ingresso introduce in un grande disimpegno centrale, impreziosito da un caratteristico vano scala a sviluppo ellittico, che collega con eleganza i vari livelli della villa.
Da qui si accede al grande soggiorno, vero cuore della casa: un ambiente luminoso e accogliente, dotato di camino e direttamente collegato al giardino e ai porticati esterni.
La disposizione degli spazi permette di vivere la zona giorno in modo fluido e funzionale, con aree dedicate al relax e alla convivialità.
La cucina abitabile, spaziosa e ben organizzata, ha accesso diretto al portico, soluzione perfetta per pranzi e cene all’aperto.
Sempre al piano terra troviamo una comoda zona notte composta da due camere di generosa metratura, un bagno finestrato e un pratico locale ripostiglio.
Gli ambienti del piano terra sono valorizzati dalla pratica pavimentazione in gres porcellanato posate in diagonale, che dona eleganza e movimento agli spazi

PIANO SUPERIORE – AREA RISERVATA E PANORAMICA
Salendo la scenografica scala si raggiunge un’ampia zona living soppalcata con affaccio sul salone sottostante, uno spazio versatile che può essere utilizzato come studio, area relax o zona lettura.
Da qui si accede a un terrazzo privato di circa 15 mq, piacevole e riservato.
Il piano ospita inoltre una spaziosa camera matrimoniale con cabina armadio e bagno dedicato, creando una vera e propria area padronale indipendente.
Questo livello è impreziosito da caldi pavimenti in parquet e da suggestivi soffitti in legno a vista, che rendono gli ambienti particolarmente accoglienti.

PIANO SEMINTERRATO – SPAZI DA VIVERE
Il livello inferiore rappresenta un grande valore aggiunto della proprietà: una taverna ampia e perfettamente fruibile, dotata di camino in adiacenza a quello del soggiorno sovrastante, ideale per cene con amici o momenti di relax.
Completano il piano un locale hobby, una lavanderia attrezzata, un ulteriore bagno e la cantina.
L’autorimessa, capace di ospitare comodamente tre auto, è collegata all’abitazione e accessibile tramite rampa carrabile esterna.

Una villa pensata per chi cerca spazi generosi, ambienti confortevoli e massima indipendenza, in un contesto tranquillo e riservato.
La casa ideale per famiglie che desiderano qualità della vita e ambienti da vivere ogni giorno.

LEGGI TUTTO

CONDIVIDI SUI SOCIAL

DATI PRINCIPALI

Riferimento
132185
Contratto
Vendita
Tipologia
Villa
Superficie
330 mq
Locali
5
Camere da letto
3
Cucina
Abitabile
Bagni
3
Piano
Piano terra
Totale piani
1
Box/Posto auto
Doppio

CARATTERISTICHE

Ascensore

COSTI

Prezzo
€ 610.000,00

EFFICIENZA ENERGETICA

Stato
Ristrutturato
Anno costruzione
2000
Riscaldamento
Autonomo
Climatizzazione
Si
Classe energetica
F
IPE
351,00 kWh/m²a

A+

A

B

C

D

E

351,00 kWh/m²a | Classe energetica F

F

G

MAPPA

Verderio comune della Brianza Meratese

ANNUNCI SIMILI

VENDITA 11
€ 620.000
Villa in Vendita a Robbiate (Lecco)
  • Più di 5 locali
  • 269 mq
  • 4 bagni
VENDITA 11
€ 580.000
Villa in Vendita a Robbiate (Lecco)
  • Più di 5 locali
  • 243 mq
  • 4 bagni
VENDITA 20
€ 335.000
Villa in Vendita a Merate (Lecco)
  • Più di 5 locali
  • 205 mq
  • 2 bagni
VENDITA 20
€ 325.000
Villa in Vendita a Robbiate (Lecco)
  • Più di 5 locali
  • 250 mq
  • 3 bagni
VENDITA 19
€ 440.000
Villa in Vendita a Lomagna (Lecco)
  • Più di 5 locali
  • 225 mq
  • 2 bagni