Tavernerio- Villa a schiera con giardino e box in classe "C" VENDITA

Via Salvo D'Acquisto 80 - Tavernerio (Como)
€ 399.000
  • Quadrilocale
  • 167 mq
  • 2 bagni

Villetta a schiera in Vendita a Tavernerio

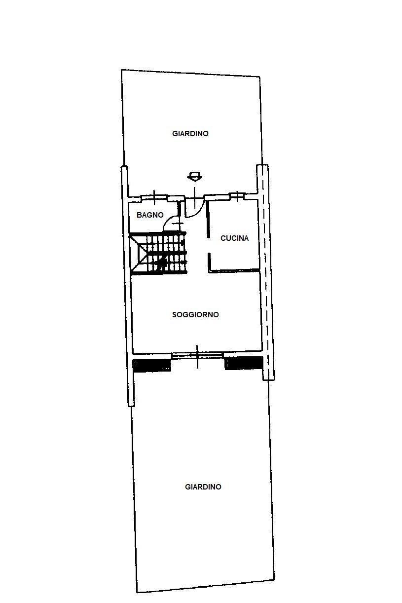
Tavernerio – Urago, in zona tranquilla ma prossima ai principali servizi, proponiamo villetta a schiera con giardino, taverna e box, in classe energetica "C".
La villetta, finemente ristrutturata, è così disposta: al piano terra troviamo: ingresso, cucina abitabile con accesso al giardino, ampio soggiorno con camino e accesso al giardino e bagno finestrato con sanitari sospesi; al piano superiore si sviluppa la zona notte composta da tre camere da letto di cui due con accesso al balcone loggiato e bagno finestrato con vasca, doccia, doppio lavabo e accesso al balconcino.
La soluzione dispone di una mansarda direttamente collegata all'abitazione, di una taverna al piano seminterrato composta da due locali di circa 15 mq ciascuno e di un'ampia lavanderia.
Presenta pavimentazione in ceramica nella zona giorno e nei bagni, in parquet nella zona notte; infissi in legno/doppio vetro, porta blindata, predisposizione aria condizionata, videocitofono, videosorveglianza ed è dotata di impianto fotovoltaico che garantisce un importante risparmio energetico installato nel 2025.
Completano la soluzione il box auto direttamente collegato all'abitazione, due giardini di circa 30 mq e 55 mq.

BUONI MOTIVI PER ACQUISTARLA:
1- Ampia metratura;
2- Classe energetica;
3- Giardino;
4- Box auto;
5- Balconi;
6- Doppi servizi;
7- Accessori.

Per ulteriori informazioni o per fissare un appuntamento puoi chiamarci al numero 031/5477974, mandarci un messaggio su WhatsApp al 328/1992187 oppure passa a trovarci in via Provinciale per Lecco 758 Lipomo. Orari di Apertura: Lunedì – Venerdì: 09:00 – 13:00 / 14:30 – 20:30 Sabato: 09:00 – 13:00 / 14:30 – 17:30. Se fosse interessato ad una valutazione GRATUITA e SENZA IMPEGNO del Suo immobile, siamo a Sua completa disposizione! Le ricordiamo, inoltre, che la nostra struttura offre CONSULENZE DI MUTUO GRATUITE CON TASSI AGEVOLATI.
La presente scheda non vincola in alcun modo l'agenzia immobiliare non costituisce forma di contratto, le informazioni qui contenute sono da ritenersi del tutto indicative e non potranno essere utilizzate come parte integrante in un eventuale contratto di vendita o locazione della proprietà.

LEGGI TUTTO

CONDIVIDI SUI SOCIAL

DATI PRINCIPALI

Riferimento
127581
Contratto
Vendita
Tipologia
Villetta a schiera
Superficie
167 mq
Locali
4
Camere da letto
3
Cucina
Abitabile
Bagni
2
Piano
Piano terra
Totale piani
1
Box/Posto auto
Singolo

CARATTERISTICHE

Ascensore

COSTI

Prezzo
€ 399.000,00
Spese condominiali
€ 33,00 / mese

EFFICIENZA ENERGETICA

Stato
Ristrutturato
Anno costruzione
1998
Riscaldamento
Autonomo
Climatizzazione
Predisposizione
Classe energetica
C
IPE
94,23 kWh/m²a

A+

A

B

94,23 kWh/m²a | Classe energetica C

C

D

E

F

G

MAPPA

Tavernerio comune dell'Alta Brianza Comasca

ANNUNCI SIMILI

VENDITA 20
€ 320.000
Villetta a schiera in Vendita a Cantù (Como)
  • Quadrilocale
  • 220 mq
  • 4 bagni
VENDITA 20
€ 355.000
Villetta a schiera in Vendita a Cantù (Como)
  • Più di 5 locali
  • 235 mq
  • 3 bagni
VENDITA 20
€ 239.000
Villetta a schiera in Vendita a Cantù (Como)
  • Quadrilocale
  • 127 mq
  • 3 bagni
VENDITA 20
€ 345.000
Villetta a schiera in Vendita a Monguzzo (Como)
  • Quadrilocale
  • 180 mq
  • 2 bagni
VENDITA 20
€ 239.000
Villetta a schiera in Vendita a Cantù (Como)
  • Quadrilocale
  • 150 mq
  • 3 bagni
VENDITA 20
€ 355.000
Villetta a schiera in Vendita a Erba (Como)
  • Quadrilocale
  • 168 mq
  • 2 bagni
VENDITA 20
€ 435.000
Villetta a schiera in Vendita a Carugo (Como)
  • Quadrilocale
  • 123 mq
  • 2 bagni
VENDITA 20
€ 430.000
Villetta a schiera in Vendita a Carugo (Como)
  • Quadrilocale
  • 133 mq
  • 2 bagni
VENDITA 20
€ 398.000
Villetta a schiera in Vendita a Carugo (Como)
  • Quadrilocale
  • 124 mq
  • 2 bagni