SPLENDIDA VILLA A SAN DAMIANO VENDITA

Via Montello - Brugherio (Monza e Brianza)
€ 475.000
  • Trilocale
  • 223 mq
  • 3 bagni

Villa in Vendita a Brugherio

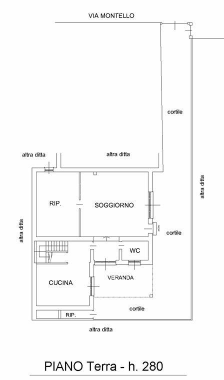
Rif: 01131 - Nel quartiere di San Damiano, a pochi minuti da Monza, proponiamo in vendita una splendida villa di 223 mq inserita in un contesto tranquillo e residenziale, ma al tempo stesso perfettamente collegato e servito da tutte le principali comodità: scuole, negozi, supermercati e mezzi di trasporto sono facilmente raggiungibili, rendendo questa soluzione ideale per famiglie che desiderano vivere in un ambiente riservato senza rinunciare alla praticità quotidiana. Attraversando il pratico vialetto privato veniamo accolti dall’ingresso che si apre sull’ampio e luminoso soggiorno, vero cuore della casa. La tripla porta finestra al piano terra inonda l’ambiente di luce naturale e crea una piacevole continuità con l’esterno. Il soffitto ribassato, impreziosito dall’installazione di luci LED, dona un tocco moderno e valorizza ulteriormente gli spazi, rendendoli caldi e accoglienti. Proseguendo sullo stesso livello incontriamo il bagno di servizio, completo di vasca, funzionale e ben rifinito. Accanto si sviluppa l’ampia cucina, ambiente ideale per la vita familiare, che si affaccia direttamente sulla veranda privata: uno spazio riservato e versatile, perfetto per momenti di relax o convivialità all’aperto. Salendo l’elegante scala si accede al primo piano, dove un luminoso disimpegno ci conduce al terrazzino, piacevole sfogo esterno che regala ulteriore ariosità al piano. La zona notte si compone di due camere da letto ben proporzionate, tra cui la camera padronale che dispone di un bagno privato completo sia di vasca sia di moderna doccia walk-in, pensato per garantire il massimo comfort. Un ulteriore bagno finestrato con box doccia serve il piano, assicurando funzionalità per tutta la famiglia. Completa il livello un’ulteriore stanza, estremamente versatile, ideale come studio, zona hobby o cameretta in base alle esigenze. Dal punto di vista impiantistico, l’immobile è dotato di caldaia a condensazione sostituita nel 2020. Al primo piano è presente l’impianto di aria condizionata con funzione caldo/freddo, mentre al piano terra è già predisposto. Sempre al primo piano sono installate le inferiate, elemento che aggiunge un ulteriore livello di sicurezza e tranquillità. Una soluzione elegante, spaziosa e curata nei dettagli, perfetta per chi desidera indipendenza, comfort e qualità abitativa. N.B.:LE IMMAGINI PUBBLICATE SONO STATE DIGITALMENTE RIELABORATE PER OFFRIRE UNA RAPPRESENTAZIONE CHIARA E REALISTICA DELLA DISPOSIZIONE DEGLI AMBIENTI. Contattaci per maggiori informazioni. I nostri orari di apertura sono: Dal lunedì al venerdì: 9.00 - 13.00 e 14.30 – 20.30 Sabato: 9.00 - 13.00 e 14.30 - 18.00.Contattateci al numero 3761753474 o allo 0399610008 per maggiori dettagli e per programmare una visita. Seguici su Instagram "tempocasabrugherio" per essere sempre aggiornati sulle nostre proposte in anteprima. Offriamo valutazioni personalizzate gratuite e senza impegno.

LEGGI TUTTO

CONDIVIDI SUI SOCIAL

DATI PRINCIPALI

Riferimento
128520
Contratto
Vendita
Tipologia
Villa
Superficie
223 mq
Locali
3
Camere da letto
2
Cucina
Abitabile
Bagni
3
Piano
Piano rialzato
Totale piani
1

CARATTERISTICHE

Ascensore

COSTI

Prezzo
€ 475.000,00

EFFICIENZA ENERGETICA

Stato
Ristrutturato
Anno costruzione
2005
Riscaldamento
Autonomo
Classe energetica
F
IPE
3,51 kWh/m²a

A+

A

B

C

D

E

3,51 kWh/m²a | Classe energetica F

F

G

MAPPA

Brugherio comune della Bassa Brianza Centrale Sud

ANNUNCI SIMILI