PORZIONI DI BIFAMILIARE CON AMPIO GIARDINO VENDITA

via Monte Grappa - Seveso (Monza e Brianza)
€ 360.000
  • Quadrilocale
  • 140 mq
  • 2 bagni

Villa in Vendita a Seveso

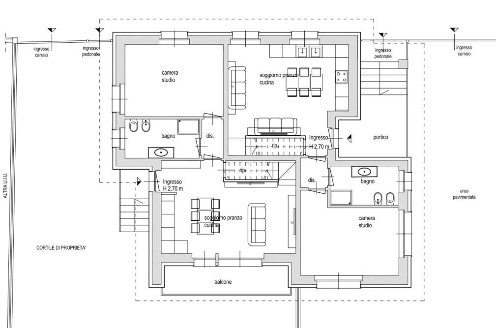
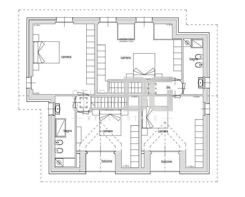
Seveso Centro, proponiamo in vendita due porzioni di villa bifamiliare di nuova costruzione, progettate con particolare attenzione al comfort abitativo e all’efficienza energetica.
Ogni unità è composta da quattro locali oltre doppi servizi e balcone, con ambienti ampi e luminosi, studiati per garantire funzionalità e vivibilità quotidiana. La zona giorno si apre su spazi accoglienti e ben distribuiti, mentre la zona notte offre camere confortevoli ideali per famiglie.
Le abitazioni sono inserite in contesto tranquillo e riservato, perfetto per chi desidera privacy e qualità della vita, pur rimanendo comode ai principali servizi, scuole, negozi e collegamenti.
Punto di forza di ciascuna porzione è il giardino privato di circa 700 mq, ideale per momenti di relax all’aperto, per famiglie con bambini o per chi ama vivere gli spazi esterni. Completa le proprietà un posto auto doppio coperto.
Soluzioni moderne, personalizzabili nelle finiture, con consegna prevista per primavera 2028.
Un’opportunità unica per chi cerca una casa nuova, indipendente e immersa nella tranquillità senza rinunciare alla comodità dei servizi.
Oppure vieni a trovarci nel nostro studio in via Matteotti 22, Cesano Maderno (MB)

LEGGI TUTTO

CONDIVIDI SUI SOCIAL

DATI PRINCIPALI

Riferimento
128917
Contratto
Vendita
Tipologia
Villa
Superficie
140 mq
Locali
4
Camere da letto
3
Cucina
A vista
Bagni
2
Piano
Piano rialzato
Totale piani
1

CARATTERISTICHE

Ascensore

COSTI

Prezzo
€ 360.000,00

EFFICIENZA ENERGETICA

Stato
Ristrutturato
Anno costruzione
2026
Riscaldamento
Autonomo
Climatizzazione
Si
Classe energetica
A4
Classe energetica A4

A4

A3

A2

A1

B

C

D

E

F

G

MAPPA

Seveso comune della Bassa Brianza Occidentale

ANNUNCI SIMILI

VENDITA 20
€ 525.000
Villa in Vendita a Seveso (Monza e Brianza)
  • Più di 5 locali
  • 300 mq
  • 4 bagni
VENDITA 10
€ 359.000
Villa in Vendita a Seveso (Monza e Brianza)
  • Quadrilocale
  • 140 mq
  • 2 bagni
VENDITA 20
€ 520.000
Villa in Vendita a Seveso (Monza e Brianza)
  • Più di 5 locali
  • 450 mq
  • 4 bagni