NUOVA VILLA BIFAMILIARE CON PISCINA VENDITA

Via Luciano Brenna - Mariano Comense (Como)
€ 645.000
  • Quadrilocale
  • 206 mq
  • 3 bagni

Villa in Vendita a Mariano Comense

Mariano C.se, NUOVO PROGETTO di VILLA BIFAMILIARE con PISCINA.
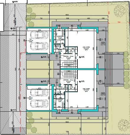
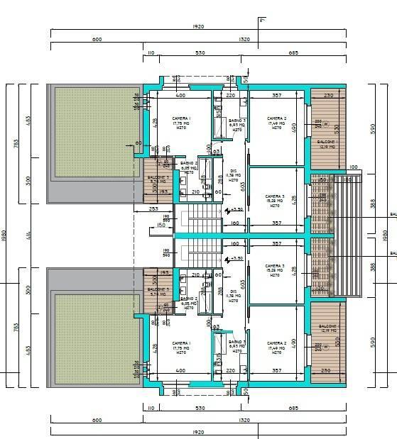
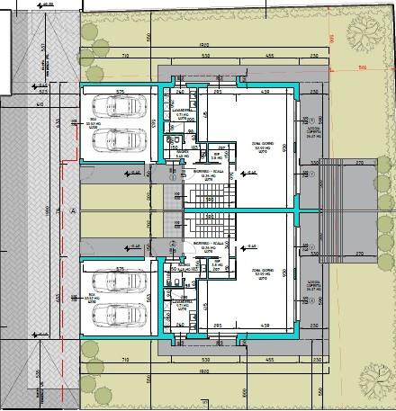
NUOVA VILLA COMPLETAMENTE INDIPENDENTE di AMPIA METRATURA in zona residenziale dotate di IMPIANTO FOTOVOLTAICO , GIARDINO PRIVATO,PISCINA e BOX DOPPIO in larghezza. Al Piano terra troviamo un AMPIA ZONA LIVING con cucina a vista con affaccio al GIARDINO PRIVATO, RIPOSTIGLIO e bagno di servizio/LAVANDERIA. Al piano primo: 3 CAMERE MATRIMONIALI con affaccio al BALCONE e 2 BAGNI FINESTRATI !!
Potete personalizzare gli interni in base alle vostre esigenze, scegliendo anche le varie finiture da un RICCO CAPITOLATO.
RISCALDAMENTO A PAVIMENTO E RAFFRESCAMENTO.
CONSEGNA: giugno 2026
Per ulteriori informazioni e/o visione contattare il n 0362852098 o direttamente il 3298876782.
La presente scheda non costituisce forma di contratto, le informazioni qui contenute sono da ritenersi del tutto indicative e non potranno essere utilizzate come parte integrante di un eventuale contratto di vendita o locazione della proprietà. La presente non vincola in alcun modo la società

LEGGI TUTTO

CONDIVIDI SUI SOCIAL

DATI PRINCIPALI

Riferimento
130018
Contratto
Vendita
Tipologia
Villa
Superficie
206 mq
Locali
4
Camere da letto
3
Cucina
A vista
Bagni
3
Piano
Piano terra
Totale piani
2
Box/Posto auto
Doppio

CARATTERISTICHE

Ascensore

COSTI

Prezzo
€ 645.000,00

EFFICIENZA ENERGETICA

Stato
Nuovo/In costruzione
Anno costruzione
2025
Riscaldamento
Autonomo
Climatizzazione
Predisposizione
Classe energetica
A4
IPE
351,00 kWh/m²a
351,00 kWh/m²a | Classe energetica A4

A4

A3

A2

A1

B

C

D

E

F

G

MAPPA

Mariano Comense comune della Bassa Brianza Comasca

ANNUNCI SIMILI

VENDITA 4
€ 460.000
Villa in Vendita a Mariano Comense (Como)
  • Quadrilocale
  • 250 mq
  • 4 bagni
VENDITA 20
€ 550.000
Villa in Vendita a Mariano Comense (Como)
  • Più di 5 locali
  • 355 mq
  • 3 bagni