Monza Via Mozart - Villa in contesto esclusivo VENDITA

Via Wolfgang Amadeus Mozart 13 - Monza, Zona Parco
€ 1.220.000
  • Più di 5 locali
  • 245 mq
  • 3 bagni

Villa in Vendita a Monza

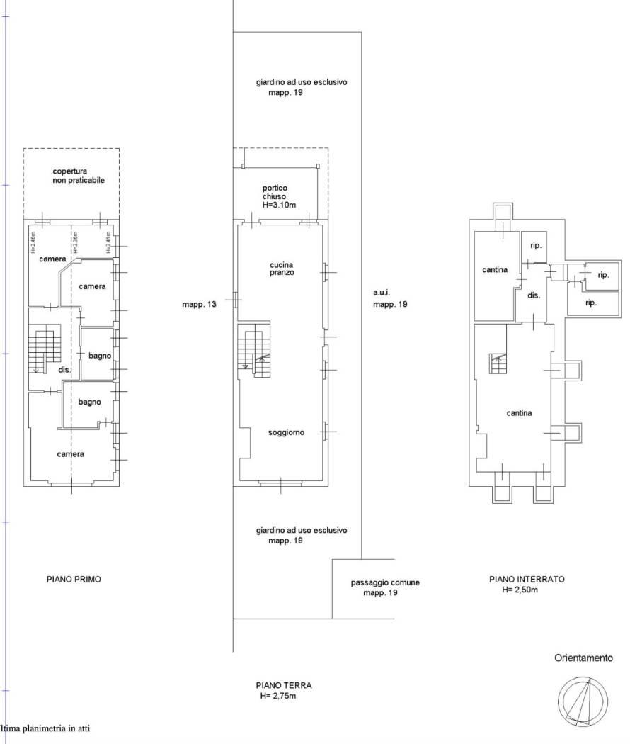
Monza Parco / Musicisti - in elegante e riservato contesto condominiale di sole cinque unità, proponiamo in vendita villa singola con area esterna ad uso esclusivo. Disposta su due livelli oltre piano interrato, è composta da ampio open space al piano terra, zona notte al piano primo e taverna con locali accessori al piano interrato; il tutto collegato da comoda scala interna a vista. La zona living al piano terra è un unico grande spazio composto dal soggiorno e dalla grande cucina a vista dotata di arredi e di isola centrale; le numerose finestre, su tre lati del perimetro, creano una calda atmosfera grazie alla luce naturale. Una spaziosa veranda, in continuità con la cucina, conduce alla porzione del giardino sul retro. L’area esterna è accessibile da tutte le zone del piano terra. Al piano primo troviamo la camera matrimoniale con cabina armadio a vista e un bagno en-suite dotato di doppia doccia. Due grandi portefinestre garantiscono una splendida luce sin dalle prime ore del mattino. Presenti altre due camere ed un ulteriore bagno con vasca. Al piano interrato, ampia taverna con locali accessori e lavanderia, ideale per locale hobby, zona studio, area cinema etc. Finiture di pregio, pavimentazione in parquet, porte Rimadesio e dettagli esterni come i mattoncini a vista che richiamano agli antichi fienili; gli spazi verdi del complesso e la posizione interna consentono un completo isolamento dal contesto urbano. L'abitazione è stata completamente ristrutturata nel 2009; è termoautonoma e dotata di aria condizionata. Parzialmente arredata, se gradito. Completa la proprietà un'autorimessa tripla al piano interrato (valore addizionale pari a € 85.000). Mandato in co-esclusiva con What&If

LEGGI TUTTO

CONDIVIDI SUI SOCIAL

DATI PRINCIPALI

Riferimento
133311
Contratto
Vendita
Tipologia
Villa
Superficie
245 mq
Locali
5
Camere da letto
3
Cucina
A vista
Bagni
3
Piano
1 °
Totale piani
3
Box/Posto auto
Doppio

CARATTERISTICHE

Ascensore

COSTI

Prezzo
€ 1.220.000,00
Spese condominiali
€ 500,00 / mese

EFFICIENZA ENERGETICA

Stato
Ristrutturato
Riscaldamento
Autonomo
Climatizzazione
Si
Classe energetica
G
IPE
179,00 kWh/m²a

A+

A

B

C

D

E

F

179,00 kWh/m²a | Classe energetica G

G

MAPPA

Monza comune della Bassa Brianza Centrale Sud

ANNUNCI SIMILI

VENDITA 20
Trattativa Riservata
Villa in Vendita a Monza, Zona San Biagio
  • Più di 5 locali
  • 374 mq
  • 4 bagni
VENDITA 20
€ 650.000
Villa in Vendita a Monza (Monza e Brianza)
  • Più di 5 locali
  • 225 mq
  • 3 bagni
VENDITA 20
€ 650.000
Villa in Vendita a Monza, Zona San Biagio
  • Più di 5 locali
  • 232 mq
  • 3 bagni
VENDITA 20
€ 730.000
Villa in Vendita a Monza, Zona Taccona
  • Più di 5 locali
  • 215 mq
  • 3 bagni
VENDITA 20
€ 1.090.000
Villa in Vendita a Monza (Monza e Brianza)
  • Più di 5 locali
  • 235 mq
  • 4 bagni